Продажа квартир в Печерском районе Киева
2 902 предложения
Сначала проверенные
Сначала проверенные
Сначала дешевые
Сначала дешевые за м²
Сначала новые
Сначала дорогие
Сначала дорогие за м²
- DIM.RIA
- ✔Продажа квартир
- Киевская область
- Киев
- Печерский
Ваши объявления в этом поиске
0
Отобрали объявления, заслуживающие большего внимания
269 000 $ 1 390 $ за м²
В избранное
2 комнаты
193.5 м²
30 этаж из 31
Пентхаус с панорамным видом на Днепр | ЖК Delmar | Центр Киева
Предлагается к продаже двухуровневый пентхаус в премиальном жилом комплексе Delmar, расположенном в центральной части Киева.
Квартира занимает 3031 поверх и имеет открытый панорамный вид на Днепр и город.
94 000 $ 1 987 $ за м²
В избранное
2 комнаты
47.3 м²
8 этаж из 9
Ексклюзив
Тихий двор
Престижный район
Очень светлая и уютная квартира, готова к заселению. Метро Печерская 3 мин. пешком, улица Евгена Коновальца 37, 2-комнатная чешка, 8/9-этажного кирпичного дома, 55/30/7, комнаты отдельные 22 и 11м кв., большая застекленная лоджия, санузел раздельный.
850 000 $ 4 015 $ за м²
В избранное
1 комната
211.7 м²
1 этаж из 3
Красивый вид
Престижный район
Укрытие в доме
ПЕЧЕРСКИЙ | 225 м² | ВИДОВА КВАРТИРА
Просторная квартира премиум-класса в самом центре Печерска для тех, кто ценит уровень, приватность и качество жизни.
128 000 $ 2 415 $ за м²
В избранное
2 комнаты
53 м²
4 этаж из 8
В центре
Рядом с парком
Укрытие в доме
Владелец!! Продажа ул. Великая Васильковская 111/113, сталинка, 2 комнатная, 53 кв.м, 3 м.
Еще
5 предложений
этого объекта
Перевірені квартири від перевірених ріелторів
Як це працює?
325 000 $ 7 629 $ за м²
В избранное
1 комната
42.6 м²
5 этаж из 24
Продается 3-комнатная квартира в ЖК бизнес-класса Central Park Печерский район Киева
С террасой и автономностью (генератор в доме)
Про квартиру
Просторная и стильная 3-комнатная квартира площадью 107м2 на 10 этаже в престижном жилом комплексе бизнес-класса Central Park идеальный вариант для ком.
Татьяна Урсаки
Перевірений рієлтор
Поиск по комнатности
Особенности квартиры
142 000 $ 2 582 $ за м²
В избранное
2 комнаты
55 м²
3 этаж из 5
В центре
Тихий двор
Укрытие в доме
Без комиссии! 2-комнатная квартира в самом центре Киева. Круглоуниверситетская 2/1. 3 этаж.
Выгодная инвестиция. Возможна перепланировка под ваш проект. Квартира без ремонта, что дает вам возможность создать интерьер по своему вкусу и желанию. Дом теплый, кирпичный. На этаже всего 2 квартиры.
Апарт-готель Circle hotel&apartments
В избранное
просп. Степана Бандери, 14Б·
Оболонський·
Київ
от 50 837 $ · 2 723 $ за м²
Апартаменти
14.7 м²
Посмотреть планировки
186 000 $ 2 862 $ за м²
В избранное
3 комнаты
65 м²
8 этаж из 12
Предлагается к продаже стильная и функциональная 3-комнатная квартира в престижном центре Киева, всего за 5 минут пешком до ул. Крещатик и станции метро «Дворец спорта». Локация сочетает деловую активность центра с тишиной уютного тупикового двора.
Еще
6 предложений
этого объекта
Квартиры в ЖК от застройщика
Также ищут
710 000 $ 3 087 $ за м²
В избранное
5 комнат
230 м²
5 этаж из 5
Оперативный показ
В центре
Престижный район
Продажа уникальной 5-комнатной квартиры в историческом центре Киева, Печерск (Звиринец)
Предлагается просторная двухэтажная квартира площадью 230 м² по адресу улица Андрия Верхогляда, 10/10, в престижном Печерском районе, микрорайон Звиринец.
Еще
1 предложение
этого объекта
394 425 $ 1 995 $ за м²
В избранное
6 комнат
197.75 м²
25 этаж из 26
Центр города
Скандинавский архитектурный стиль
Двор без чужих машин
Находитесь в поиске 6-комнатной квартиры от застройщика - обратите внимание на ЖК Nordica Residence.
Это современная новостройка в районе с развитой инфраструктурой - Киев, рн Печерский, Железнодорожное, 45А.
218 000 $ 4 067 $ за м²
В избранное
1 комната
53.6 м²
15 этаж из 31
Продажа 1-комнатной квартиры, площадь 53.6 кв.м.
Как найти: Киев, район Печерск, ЖК Jack House, Леси Украинки, 7В.
Квартира на 15 этаже. Видеонаблюдение на территории. Территория закрыта. Работает лифт. Консьерж в доме.
Отопление централизованное. В квартире индивидуальное отопление.
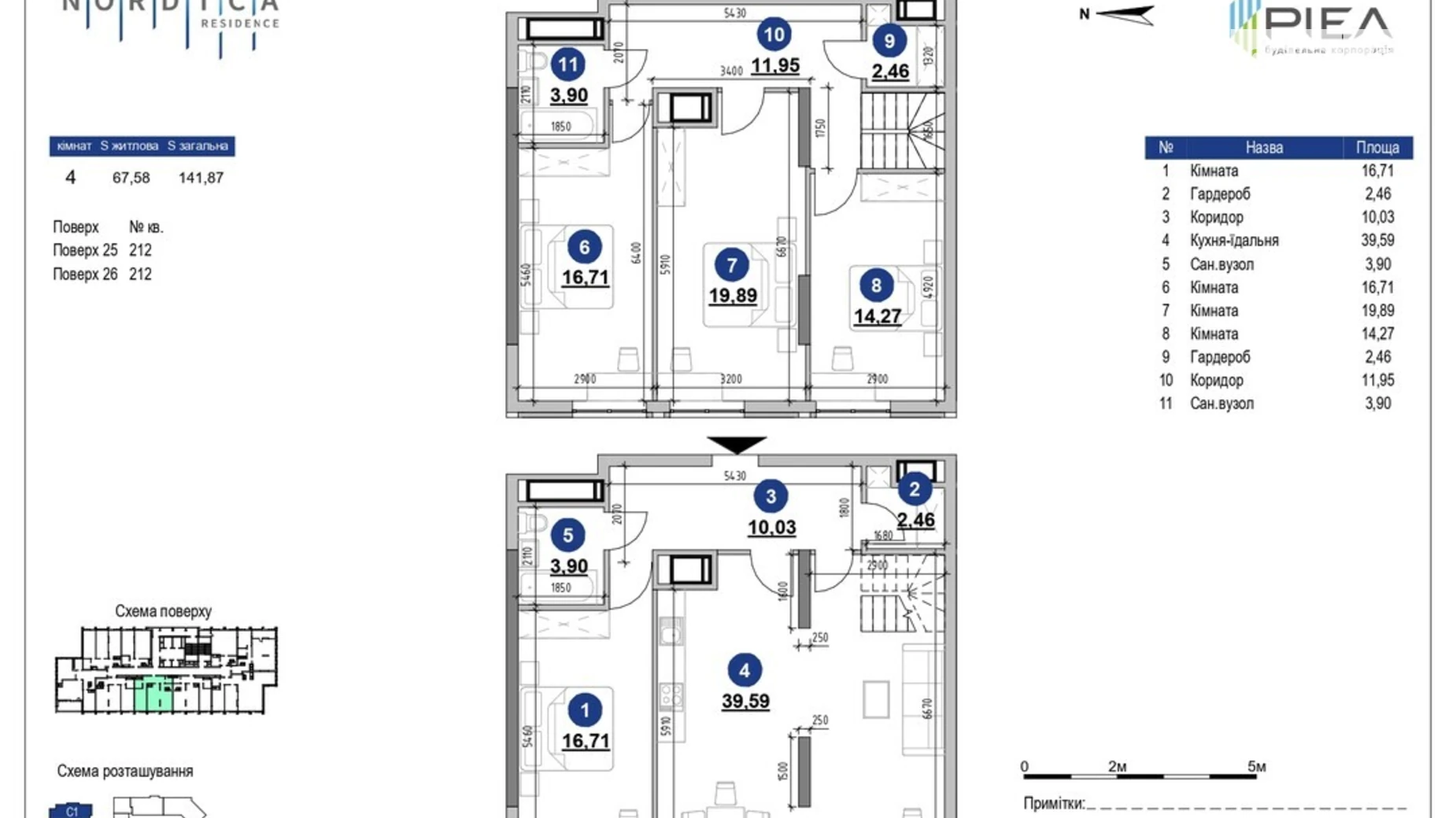
297 180 $ 2 094 $ за м²
В избранное
4 комнаты
141.9 м²
25 этаж из 26
Центр города
Скандинавский архитектурный стиль
Двор без чужих машин
Находитесь в поиске 4-комнатной квартиры от застройщика - обратите внимание на ЖК Nordica Residence.
Это современная новостройка в районе с развитой инфраструктурой - Киев, рн Печерский, Андрея Верхогляда, 30.
ЖК Maxima Residence
В избранное
вул. Коновальця Євгена(Щорса), 30·
Печерський·
Київ
от 118 520 $ · 1 966 $ за м²
1-кімнатні
49.95 м²
В наличии 44 квартиры
от 152 217 $ · 1 896 $ за м²
2-кімнатні
69.73 м²
В наличии 26 квартир
от 202 559 $ · 1 887 $ за м²
3-кімнатні
107.32 м²
В наличии 15 квартир
Полезные ссылки
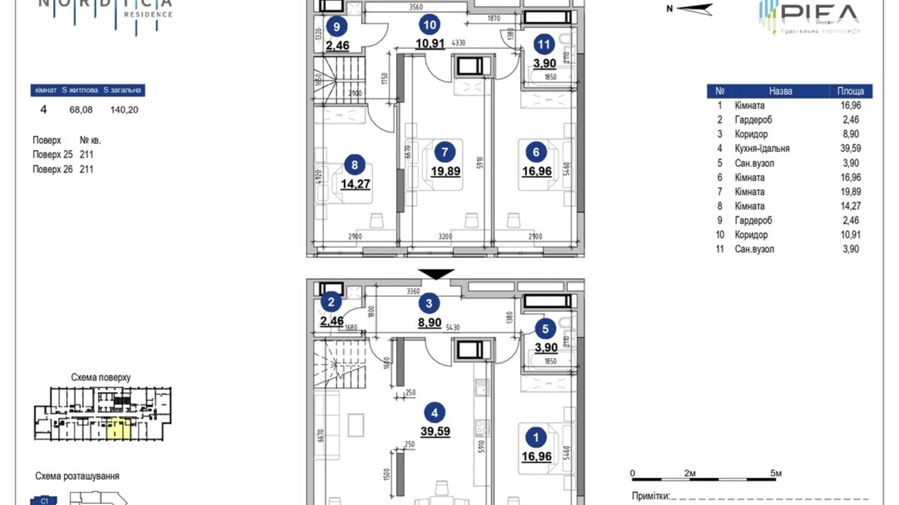
292 782 $ 2 094 $ за м²
В избранное
4 комнаты
139.8 м²
25 этаж из 26
Центр города
Скандинавский архитектурный стиль
Двор без чужих машин
Продается 4-комнатная квартира напрямую от застройщика - РИЕЛ. Функциональная комфортная планировка 4-комнатной квартиры отлично подойдет для вашего уюта и досуга.
Площадь 4-комнатной квартиры - 139.8 м². Квартира расположена на 25 этаже 26-и этажного дома.
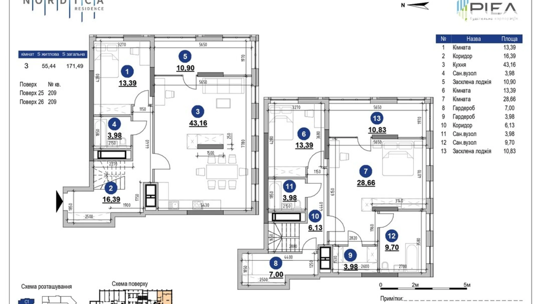
358 333 $ 2 094 $ за м²
В избранное
3 комнаты
171.1 м²
25 этаж из 26
Центр города
Скандинавский архитектурный стиль
Двор без чужих машин
Продается 3-комнатная квартира напрямую от застройщика - РИЕЛ. Функциональная комфортная планировка 3-комнатной квартиры отлично подойдет для вашего уюта и досуга.
Площадь 3-комнатной квартиры - 171.1 м². Квартира расположена на 25 этаже 26-и этажного дома.
Перевірені квартири від перевірених ріелторів
Як це працює?
399 000 $ 3 822 $ за м²
В избранное
3 комнаты
104.4 м²
8 этаж из 24
Предлагается квартира с большой террасой, площадью 105 м2 в ЖК "Central Park" (1 очередь),
Этаж 8, этажность 24.
Престижное расположение жилой комплекс Central Park в Киеве находится на Печерске, ул. Джона Маккейна (Ивана Кудрі).
Каріна Андріївна
Перевірений рієлтор
Без отзывов
285 243 $ 2 094 $ за м²
В избранное
4 комнаты
136.2 м²
25 этаж из 26
Центр города
Скандинавский архитектурный стиль
Двор без чужих машин
Находитесь в поиске 4-комнатной квартиры от застройщика - обратите внимание на ЖК Nordica Residence.
Это современная новостройка в районе с развитой инфраструктурой - Киев, рн Печерский, Андрея Верхогляда, 30.
172 000 $ 2 000 $ за м²
В избранное
2 комнаты
86 м²
22 этаж из 26
Без %, Продажа двухкомнатной квартиры ЖК Ndica Residence, Нордика, ул. Андрея Верхогляда 30, квартира в современном жк бизнес - класса в престижном Печерском районе. рядом Новопечерские Липки, центр, Бульвар Фонтанов, Taryan Towers. Метро Зверинецкая, Либідська.
325 453 $ 2 094 $ за м²
В избранное
5 комнат
155.4 м²
25 этаж из 26
Центр города
Скандинавский архитектурный стиль
Двор без чужих машин
Продается 5-комнатная квартира без посредников в ЖК Nordica Residence.
Эта современная комфортная планировка 5-комнатной квартиры с зонами для досуга и работы. Площадь 5-комнатной квартиры - 155.4 м².
Квартира расположена на 25 этаже 26-и этажного дома.
ЖК Nordica Residence
В избранное
Либідська·
шосе Залізничне, 45А·
Печерський·
Київ
от 160 214 $ · 2 244 $ за м²
1-кімнатні
71.4 м²
В наличии 2 квартиры
от 188 028 $ · 2 144 $ за м²
2-кімнатні
85.7 м²
В наличии 6 квартир
от 358 333 $ · 2 094 $ за м²
3-кімнатні
171.1 м²
В наличии 1 квартира
220 000 $ 3 152 $ за м²
В избранное
1 комната
69.8 м²
15 этаж из 30
Ексклюзив
Продается квартира в ЖК Delmar.
15 этажей. Дом охраняется. Территория закрыта. Работает лифт.
Квартира расположена в городе Киев, район Чёрная Гора, ЖК Delmar. По адресу: Драгомирова, 14А. Рядом метро Зверинецкая (Дружбы народов).
Общая площадь: 70 кв.м. Жилая площадь составляет 25 кв.м.
356 510 $ 2 244 $ за м²
В избранное
3 комнаты
158.88 м²
25 этаж из 26
Закрытая территория
Подземный паркинг
Индивидуальное отопление
Продается 3-комнатная квартира напрямую от застройщика - РИЕЛ. Функциональная комфортная планировка 3-комнатной квартиры отлично подойдет для вашего уюта и досуга.
Площадь 3-комнатной квартиры - 158.88 м². Квартира расположена на 25 этаже 26-и этажного дома.
439 287 $ 2 244 $ за м²
В избранное
3 комнаты
195.77 м²
25 этаж из 26
Закрытая территория
Подземный паркинг
Индивидуальное отопление
Продажа 3-комнатной квартиры от застройщика без посредников - 3-комнатная квартира в ЖК Maxima Residence.
Современная планировка площадью - 195.77 м² создана специально для комфорта и уюта.
Квартира расположена на 25 этаже 26-и этажного дома.
149 000 $ 1 588 $ за м²
В избранное
3 комнаты
93.8 м²
2 этаж из 3
В центре
Торг уместен
Продам 3-комнатную квартиру в сталинском доме по ул.Бойчука 1а второй этаж, высота потолка 3.4м, толщина стен 50см, 93.6/56.6/18, все раздельно, холл, 2балкона заселены и обшиты, кухня с двумя окнами, окно в ванной комнате, газовая колонка, медная проводка, деревянная столярка, дубовый паркет.
228 653 $ 2 244 $ за м²
В избранное
2 комнаты
101.9 м²
25 этаж из 26
Закрытая территория
Подземный паркинг
Индивидуальное отопление
Продается 2-комнатная квартира напрямую от застройщика - РИЕЛ. Функциональная комфортная планировка 2-комнатной квартиры отлично подойдет для вашего уюта и досуга.
Площадь 2-комнатной квартиры - 101.9 м². Квартира расположена на 25 этаже 26-и этажного дома.
Перевірені квартири від перевірених ріелторів
Як це працює?
385 000 $ 5 347 $ за м²
В избранное
1 комната
72 м²
2 этаж из 6
Выгодная цена
Престижный район
Эти апартаменты в элитном клубном доме Regent Hill на Печерске это воплощение роскоши и гармонии, расположенные на втором этаже сразу возле ботанического сада.
TheCapital Агентство
Перевірений рієлтор
ЖК Файна Таун
В избранное
Нивки·
вул. Салютна, 2Б·
Шевченківський·
Київ
от 69 384 $ · 1 770 $ за м²
1-кімнатні
39.2 м²
Посмотреть планировки
от 119 175 $ · 1 750 $ за м²
2-кімнатні
68.1 м²
Посмотреть планировки
от 165 126 $ · 1 740 $ за м²
3-кімнатні
92.2 м²
Посмотреть планировки
Динамика цен на квартиры в Печерском районе Киева за год
Стоимость квартир
1 комнатные
$ за м²
2 комнатные
$ за м²
3 комнатные
$ за м²
4 комнатные
$ за м²
Интересное про район Печерский
Инфраструктура района Печерский
Детские садики
22
Школы
30
Остановки транспорта
123
Медицинские учреждения
74
Зоны отдыха
14
Учебные заведения
22
Торговля
89
Детские площадки
4
6.1
Оценка района Печерский, Киев
по результатам опроса 220 пользователей DIM.RIA
6.4
Социальная инфраструктура
5.7
Зоны для отдыха
5
Экологическая среда
7
Транспортное соединение
6.2
Безопасность района
Отзывы о районе Печерский
от 28 пользователей DIM.RIA
Victor TheYard,
13 березня 2024
10
Общая оценка
Є все для комфортного проживання
Немає
Пользователь,
6 березня 2024
7.4
Общая оценка
Багато облаштованих зон відпочинку, близькість до станцій метро, багато елітних будинків.
Багато криміналу у центрі міста після 22:00.
Пользователь,
16 січня 2024
8.8
Общая оценка
Неймовірний район Ліпки, Урядовий Квартал , той , хто раз у житті пожив тут, навряд чи буде задоволений іншими районами .
Шум автотранспорту, вихлопні гази .
Вячеслав,
8 листопада 2022
9.8
Общая оценка
Тихо, удобно, мобильно.
Глиссада на аэропорт Жуляны
Андрей Шуба,
23 листопада 2021
10
Общая оценка
Центр, удобно добираться к работе, так как в основном там расположены все офисные помещения
-
Пользователь,
10 жовтня 2021
3.6
Общая оценка
Много ресторанов и магазинов.
Мусор. Как всегда куча бомжей в центре
Пользователь,
19 вересня 2021
3.2
Общая оценка
Красивый ландшафт.
Много маргиналов после 22.00
Пользователь,
19 вересня 2021
3.6
Общая оценка
Много магазинов и бутиков дизайнерской одежды.
Токсично воздуха от авто. Летом в конце рабочего дня невозможно выйти на улицу.
Пользователь,
19 вересня 2021
4
Общая оценка
Много достойных внимания заведений.
Дома как после бомбежки. Ободранные фасады, балконы с шифера. Возле таких даже припарковаться страшно.
Пользователь,
18 вересня 2021
1.2
Общая оценка
Метро
Экология
Марина,
14 вересня 2021
10
Общая оценка
Самый центр, отличная локация для любого бизнеса !
Нет
Пользователь,
20 липня 2021
2.6
Общая оценка
С рождения тут живу. Переезд был несколько раз в пределах Липок (которые возле Мариинского)
Застройка без парковок и хорошей придомовой территории, вырубленные деревья, стройки на старой канализации- соответственно вонь и затопления. Капец последнему стадиону, где можно было спортом заняться. Застроят Арсенал.
Популярные микрорайоны Киева
География Киева
Печерск — один из центральных и самый престижный район Киева. Цены на
квартиры Печерского района на вторичном рынке гораздо выше средних по городу, и жить здесь может себе позволить далеко не каждый. Тот же, кому посчастливится купить квартиру в Печерском районе, оценит всю прелесть делового и культурного центра столицы.
Однокомнатные квартиры с начала года здесь подешевели на 1,9 % (для сравнения, в среднем по Киеву падение цен на апартаменты такого формата достигает 6,1 %). При этом стоимость однокомнатных квартир, расположенных возле метро, практически не изменилась. А вот в массиве Нижний Печерск цена квадратного метра выросла на 5,9 %.
Двухкомнатные раздельные квартиры подешевели на 5 % (с среднем по городу — на 7,1 %). Приобрести двухкомнатные смежные апартаменты можно дешевле на 15,1 %. Квартиры возле метро подешевели на 4 %.
Раздельные трехкомнатные квартиры упали в цене на 13,5 % (в среднем по столице — на 11 %). Наибольшее снижение стоимости зафиксировано в Нижнем Печерске — аж на 30 %.
Если вы мечтаете о покупке квартиры в центре дешево, сейчас самый благоприятный период для осуществления ваших замыслов. По прогнозам экспертов, уже в начале следующего года стоимость квартир от хозяина может увеличиться. Учтите: кроме того, что квартиры в Печерске стали более доступны, в случае, если продать недвижимость требуется срочно, покупатель может получить дополнительную скидку.
На нашем сайте вы найдете объявления о продаже недвижимости недорого из всех регионов Украины. Фото, которые содержатся в большинстве публикаций, помогают получить первоначальное впечатление об объекте. Чтобы быстро найти объявление о продаже подходящего объекта, воспользуйтесь удобным поисковым фильтром.
В этом каталоге доступно 2 900+ объявлений о продаже квартир в Печерском районе без посредников по цене от 65 000 до 4 497 899 долларов. DIM.RIA — ваш лучший помощник в поиске недвижимости!































































































































