Продажа квартир в Тернополе на вторичном рынке — страница 3
2 802 предложения
Сначала проверенные
Сначала проверенные
Сначала дешевые
Сначала дешевые за м²
Сначала новые
Сначала дорогие
Сначала дорогие за м²
- DIM.RIA
- ✔Продажа квартир
- Тернопольская область
- Тернополь
Ваши объявления в этом поиске
0
Отобрали объявления, заслуживающие большего внимания
52 000 $ 813 $ за м²
В избранное
2 комнаты
64 м²
1 этаж из 10
Продается двухкомнатная квартира в новом современном ЖК на Львовской.
Планировка очень удобная, две отдельные комнаты, раздельный санузел и просторная кухня.
Полностью на всей площади и лоджии уложен теплый пол.
Цена ниже, чем у застройщика.
Добро пожаловать на осмотр этой квартиры.
75 000 $ 1 061 $ за м²
В избранное
2 комнаты
70.7 м²
4 этаж из 9
Продається без посередників (власник)
Агенції прошу не турбувати і не перевиставляти.
37 000 $ 843 $ за м²
В избранное
1 комната
43.9 м²
4 этаж из 10
Предлагается к продаже однокомнатная квартира по адресу: улица Иллєнко, район Северный, Тернополь. Общая площадь составляет 43, 9 м², из которых жилая 20 м², кухня 11 м². Квартира расположена на 4-м этаже 10-этажного кирпичного дома, построенного в 2021 году. Состояние помещения: без ремонта.
52 266 $ 925 $ за м²
В избранное
1 комната
56.5 м²
1 этаж из 10
Кирпичный дом
Энергосберегающие окна
Застекленные лоджии и балконы
Продается 1-комнатная квартира напрямую от застройщика - Тернополь Будконтроль. Функциональная комфортная планировка 1-комнатной квартиры отлично подойдет для вашего уюта и досуга.
Площадь 1-комнатной квартиры - 56.5 м². Квартира расположена на типовом этаже 10-и этажного дома.
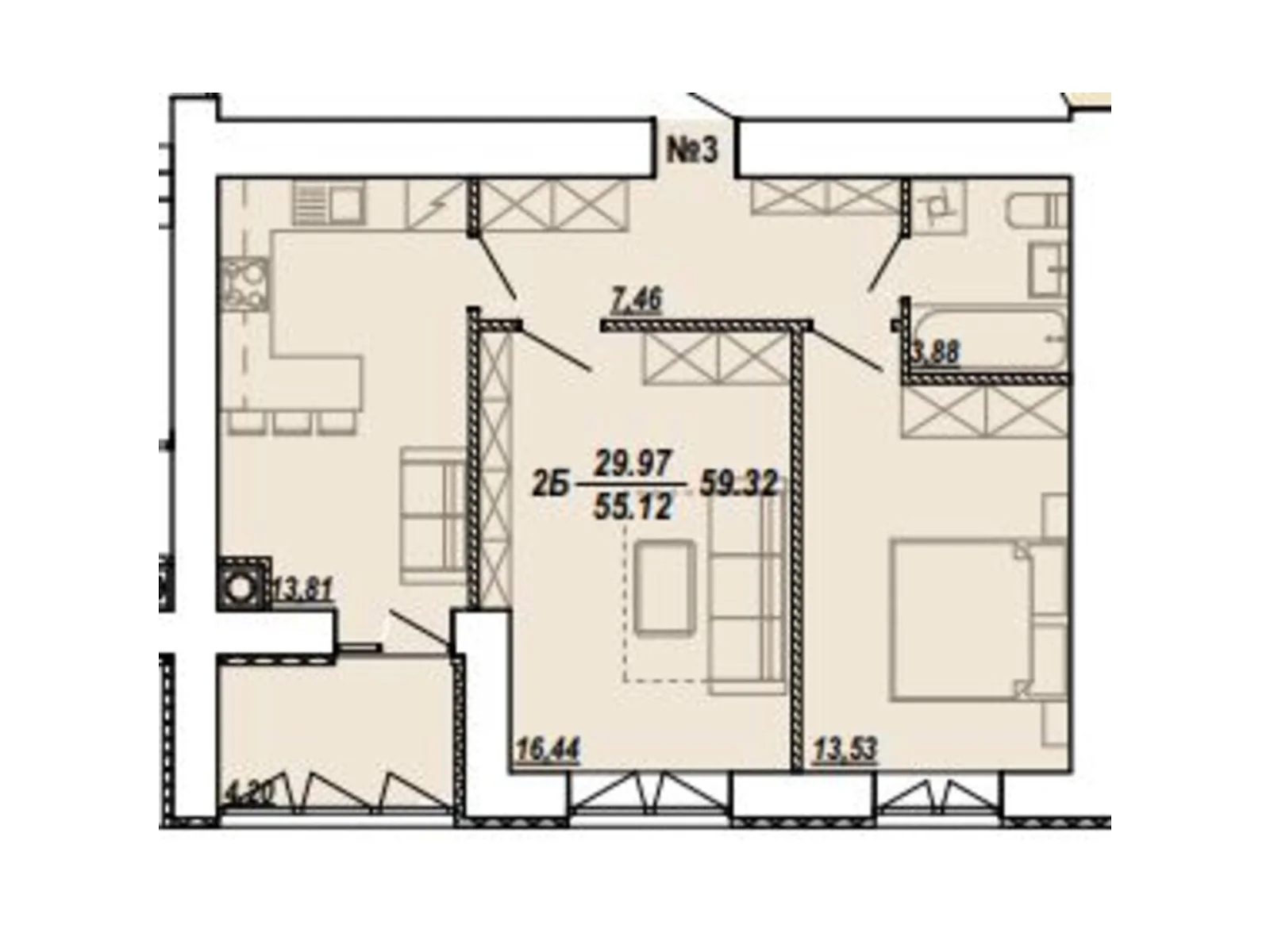
41 677 $ 703 $ за м²
В избранное
2 комнаты
59.32 м²
1 этаж из 8
Надежный застройщик
Качественные материалы
Низкая плотность застройки
Продается 2-комнатная квартира в ЖК Текстильная, 21. Продажа напрямую от застройщика - Технотернстрой.
Площадь жилья данной планировки 59.32 м².
Квартира расположена на типовом этаже 8-и этажного дома.
ЖК Текстильная, 21 расположен по адресу: Тернополь, Текстильная, 21.
ЖК Дружній Дім
В избранное
вул. Яреми, 18·
Північний·
Тернопіль
от 24 254 $ · 644 $ за м²
1-кімнатні
37.66 м²
В наличии 37 квартир
от 41 354 $ · 632 $ за м²
2-кімнатні
65.4 м²
В наличии 39 квартир
от 42 903 $ · 632 $ за м²
3-кімнатні
67.85 м²
В наличии 19 квартир
53 468 $ 925 $ за м²
В избранное
2 комнаты
57.8 м²
1 этаж из 10
Кирпичный дом
Энергосберегающие окна
Застекленные лоджии и балконы
Продажа 2-комнатной квартиры от застройщика без посредников - 2-комнатная квартира в ЖК Файне місто.
Современная планировка площадью - 57.8 м² создана специально для комфорта и уюта.
Квартира расположена на 1 этаже 10-и этажного дома.
72 000 $ 820 $ за м²
В избранное
2 комнаты
87.84 м²
1 этаж из 10
Подземный паркинг
Прилегающая парковка
Рекуператоры воздуха
Продается 2-комнатная квартира в ЖК по ул. Лучаковского-Троллейбусная. Продажа напрямую от застройщика - Тернополь Будконтроль.
Площадь жилья данной планировки 87.84 м².
Квартира расположена на типовом этаже 10-и этажного дома.
ЖК по ул.
258 $ 239 грн за м²
В избранное
1 комната
46 м²
8 этаж из 15
Элитная квартира в лучшем районе Тернополя в лесу возле озера, поблизости Центра, парка. Новостройка, есть/р, и/о, вся мебель, вся техника...Первая сдача.
37 000 $ 843 $ за м²
В избранное
1 комната
43.9 м²
4 этаж из 10
Продается однокомнатная квартира в кирпичном доме. Дом заселен. Разводка под индивидуальное отопление.
Еще
1 предложение
этого объекта
70 000 $ 1 037 $ за м²
В избранное
2 комнаты
67.5 м²
3 этаж из 4
Продается просторная 2-комнатная квартира в самом центре города по улице Пирогова. Идеальное расположение, удобный 3 этаж, индивидуальное отопление, 2 отдельные комнаты плюс большая кухня, квартира выходит на 2 стороны.
Звоните, организуем показ в удобное для Вас время.
ЖК Браво
В избранное
вул. Сахарова Андрія Академіка·
Тернопіль
от 59 777 $ · 656 $ за м²
3-кімнатні
91.16 м²
В наличии 2 квартиры
от 38 777 $ · 850 $ за м²
Комерційні
45.62 м²
В наличии 7 квартир
67 000 $ 993 $ за м²
В избранное
2 комнаты
67.5 м²
3 этаж из 4
Предлагаю к продаже двухкомнатную квартиру площадью 67 квадратных метров с современным евроремонтом в очень удобном месте.
Квартира расположена на третьем этаже четырехэтажного дома.
Установлено индивидуальное отопление, полностью заменена электропроводка.
45 112 $ 597 $ за м²
В избранное
3 комнаты
75.54 м²
1 этаж из 10
Паркинг, как укрытие
Заказ улучшенной комплектации квартир
Подземный паркинг
Продается 3-комнатная квартира в ЖК Freedom. Продажа напрямую от застройщика - ARTE Development.
Площадь жилья данной планировки 75.54 м².
Квартира расположена на 1 этаже 10-и этажного дома.
ЖК Freedom расположен по адресу: Тернополь, Микулинецкая, 116.
38 746 $ 597 $ за м²
В избранное
2 комнаты
64.88 м²
10 этаж из 10
Паркинг, как укрытие
Заказ улучшенной комплектации квартир
Подземный паркинг
Продажа 2-комнатной квартиры от застройщика без посредников - 2-комнатная квартира в ЖК Freedom.
Современная планировка площадью - 64.88 м² создана специально для комфорта и уюта.
Квартира расположена на 10 этаже 10-и этажного дома.
38 148 $ 597 $ за м²
В избранное
2 комнаты
63.88 м²
10 этаж из 10
Паркинг, как укрытие
Заказ улучшенной комплектации квартир
Подземный паркинг
Продается 2-комнатная квартира в ЖК Freedom. Продажа напрямую от застройщика - ARTE Development.
Площадь жилья данной планировки 63.88 м².
Квартира расположена на 10 этаже 10-и этажного дома.
ЖК Freedom расположен по адресу: Тернополь, Микулинецкая, 116.
47 106 $ 597 $ за м²
В избранное
3 комнаты
78.88 м²
1 этаж из 10
Паркинг, как укрытие
Заказ улучшенной комплектации квартир
Подземный паркинг
Продается многоуровневая квартира без посредников в ЖК Freedom.
Эта современная комфортная планировка многоуровневой квартиры с зонами для досуга и работы. Площадь многоуровневой квартиры - 78.88 м².
Квартира расположена на типовом этаже 10-и этажного дома.
ЖК Спортивний
В избранное
вул. Спортивна, 8·
Північний·
Тернопіль
от 22 752 $ · 621 $ за м²
1-кімнатні
36.66 м²
В наличии 145 квартир
от 40 650 $ · 609 $ за м²
2-кімнатні
66.76 м²
В наличии 59 квартир
от 64 464 $ · 609 $ за м²
3-кімнатні
105.87 м²
В наличии 2 квартиры
45 327 $ 597 $ за м²
В избранное
3 комнаты
75.9 м²
1 этаж из 10
Паркинг, как укрытие
Заказ улучшенной комплектации квартир
Подземный паркинг
Продается многоуровневая квартира в ЖК Freedom. Продажа напрямую от застройщика - ARTE Development.
Площадь жилья данной планировки 75.9 м².
Квартира расположена на типовом этаже 10-и этажного дома.
ЖК Freedom расположен по адресу: Тернополь, Микулинецкая, 116.
46 688 $ 597 $ за м²
В избранное
3 комнаты
78.18 м²
1 этаж из 10
Паркинг, как укрытие
Заказ улучшенной комплектации квартир
Подземный паркинг
Продается 3-комнатная квартира в ЖК Freedom. Продажа напрямую от застройщика - ARTE Development.
Площадь жилья данной планировки 78.18 м².
Квартира расположена на 1 этаже 10-и этажного дома.
ЖК Freedom расположен по адресу: Тернополь, Микулинецкая, 116.
41 361 $ 597 $ за м²
В избранное
3 комнаты
69.26 м²
1 этаж из 10
Паркинг, как укрытие
Заказ улучшенной комплектации квартир
Подземный паркинг
Продается многоуровневая квартира напрямую от застройщика - ARTE Development. Функциональная комфортная планировка многоуровневой квартиры отлично подойдет для вашего уюта и досуга.
Площадь многоуровневой квартиры - 69.26 м². Квартира расположена на типовом этаже 10-и этажного дома.
67 028 $ 504 $ за м²
В избранное
5 комнат
133.12 м²
1 этаж из 10
Паркинг, как укрытие
Заказ улучшенной комплектации квартир
Подземный паркинг
Находитесь в поиске многоуровневой квартиры от застройщика - обратите внимание на ЖК Freedom.
Это современная новостройка в районе с развитой инфраструктурой - Тернополь, Микулинецкая, 116.
38 244 $ 597 $ за м²
В избранное
2 комнаты
64.04 м²
10 этаж из 10
Паркинг, как укрытие
Заказ улучшенной комплектации квартир
Подземный паркинг
Продажа 2-комнатной квартиры от застройщика без посредников - 2-комнатная квартира в ЖК Freedom.
Современная планировка площадью - 64.04 м² создана специально для комфорта и уюта.
Квартира расположена на 10 этаже 10-и этажного дома.
ЖК на Стецька
В избранное
вул. Стецька Ярослава, 20Б·
Тернопіль
от 43 990 $ · 830 $ за м²
1-кімнатні
43.99 м²
В наличии 20 квартир
от 53 289 $ · 900 $ за м²
2-кімнатні
59.21 м²
В наличии 28 квартир
от 56 430 $ · 1 500 $ за м²
Комерційні
37.62 м²
В наличии 8 квартир





















































































