О жилом комплексе
Жилой комплекс "Парковый город" продолжает строительство новых домов в комплексе в Подольском районе по адресу: улица Вышгородская, 45. К уже построенным 27 домам бизнес-класса компания девелопер достраивает еще четыре 26-этажных "свечи" – дома с одним подъездом и 1-5-комнатными квартирами.
Новостройка находится недалеко от станции метро "Оболонь", в 25 минутах езды на маршрутном такси. "Парковый город" имеет самодостаточную инфраструктуру: фитнес-клубы, магазины, салоны красоты, аптеки и отделения банков. Парк внутри жилого комплекса создает баланс – город и природа.
Застройщиком выступает компания UDP, сдавшая в эксплуатацию предыдущие 8 очередей домов. Компания имеет в своем портфолио 20 успешных проектов, к которым в ближайшие годы добавят еще четыре новостройки. Заявленная сдача 9-й секции – IV квартал 2023 года.
Инфраструктура ЖК "Парковый город"
Локация и инфраструктурные объекты возле ЖК заслуживают особого внимания. Прежде всего локация: Подольский район, микрорайон Кристерова Горка. Такое же название носит и парк, который находится в жилом комплексе. Новостройка расположена среди относительно старых жилых массивов – Ветряных гор, Минского и Мостицкого.
Располагается "Парковый город" сравнительно недалеко от станций метро, в частности за 25 минут автобусом можно доехать до станции "Оболонь", столько же до станции "Минская", чуть дольше – до 35 минут до станции метро "Героев Днепра". По меркам Киева такое расстояние от метро считается небольшим, тем более что застройщик напоминает о скором строительстве метро на Виноградарь, станция которого будет расположена в 10 минутах ходьбы. Кроме близкого расположения подземного транспорта еще больше вариантов передвижения наземным. От остановок возле новостройки следуют почти 10 маршрутных такси в разные районы города, 3 автобуса и 7 троллейбусов.
Социальная инфраструктура рядом еще лучше, чем транспортная. Семьи с детьми имеют широкий выбор детских садов и школ, в которых могут учиться дети. В пределах 1-2 км от жилого комплекса находятся специализированные школы № 16, 14, 271 и общеобразовательные № 236, 262, 156, 5, лицей туризма, а чуть дальше – гимназия № 34 "Лыбидь". Также есть детские садики № 321 "Цветочек", № 436, № 598 "Светлячок" и садик "Веночек". Напротив новостройки находится шахматный клуб, а через дорогу – школа боевого искусства.
Если говорить о собственной инфраструктуре "Паркового города", то первые этажи оборудованы под магазины. Уже работают салоны красоты, фитнес-клубы, разные группы для детей, аптеки, магазины и отделения банков. Если магазинов, расположенных на территории массива, недостаточно, можно пройтись к супермаркетам. В радиусе 1 км также находятся Макдоналдс, пиццерия, кондитерская, бар, кафе, кальян-бар, рестораны и кинотеатр.
Достаточно и медицинских учреждений. На территории новостройки есть частная детская поликлиника, за пределами ЖК несколько частных клиник. Ближайшая государственная поликлиника – Центральная районная находится в 1,5 км от комплекса.
Однако одна из наиболее привлекательных особенностей ЖК "Парковый город" – это парк, расположенный на территории комплекса, с каскадом озер, возле которых можно отдохнуть качественно и комфортно. В озерах и возле них живут черепашки, лебеди, утки. Для отдыха у воды расположены шезлонги. Сама новостройка имеет закрытую территорию в 4 га, которая находится под круглосуточной охраной. На территорию ЖК "Парковый город" пускают посетителей, но с 10 утра до 18 вечера.
Для тех, кто предпочитает активный отдых и ищет связь с природой, в 15 минутах пешком есть небольшой лес Кристеров, в котором можно отдохнуть рядом с водоемами. Чуть дальше – парк Кинь-Грусть.
Сырецкий парк и Кирилловская роща находятся в 15 минутах езды на машине. Также неподалеку от комплекса "Парковый город" находится Пуща-Водица. Там можно и устроить пикник у озера, и покормить животных, и просто отдохнуть от городского шума. Выбор мест рекреации в комплексе на любой вкус.
С парковкой тоже особых проблем нет. Хотя за прошлые годы были построены дома на 3 355 квартир, на которые приходится всего 2 500 парковочных мест, жители могут свободно припарковать свои автомобили независимо от времени.
Следует обратить внимание, что первая очередь была сдана в эксплуатацию еще в 2009 году, а шестая, последняя перед большим перерывом строительства, была заселена в 2015 году. За это время жильцы получили окончательные впечатления от жизни в новостройке, поэтому делятся соответствующими отзывами. На предмет расположения и инфраструктуры у жителей дома одно мнение: все рядом и все доступно. По желанию можно не выходить за территорию комплекса, однако доступность основных видов развлечений и транспортной инфраструктуры делает "Парковый город" идеальным местом для жизни.
Планировки и условия приобретения
По плану застройщика квартиры будут расположены со 2-го до 26-й этаж, а два последних этажа будут отведены под двухуровневые апартаменты. Известно, что в проекте предусмотрен технический этаж.
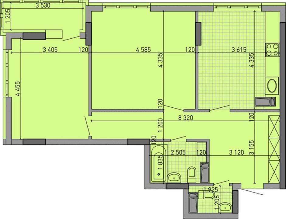
Нетипичность новых домов заключается в изменении количества квартир в зависимости от этажа: чем выше этаж дома, тем меньше квартир на нем. Так, со 2-го по 10-й этаж предусмотрено по 9-11 квартир на этаже. Это будут восемь 1-комнатных квартир 43-58 м2, две 2-комнатные квартиры 72-76 м2 и одна 3-комнатная квартира площадью 92 м2. Этажами выше, на 11-м и 12-м будут расположены 10 квартир, из которых шесть 1-комнатных, две 2-3-комнатные. Квартиры с 4 комнатами начнутся с 21-го этажа. Всего их будет по одной на этаж. Рядом по плану расположены четыре 1-комнатных квартиры, столько же 2-комнатных.
Расположение комнат в новопостроенных домах не будет отличаться разнообразием, как в домах рядом. Не будет скошенных стен, закругленных углов и многоугловых помещений. Планирование обещают практичным и функциональным.
Планировку квартир и ход строительства можно посмотреть на официальном сайте застройщика или на странице ЖК "Парковый город" на сайте DOM.RIA и выбрать именно то размещение комнат, которое нравится больше всего. Разработчик подготовил для покупателей широкий выбор планировок. Всего планируется 19 однокомнатных квартир, которые можно выбрать в 10 разных конфигурациях. Двухкомнатных квартир будет 27, однако планировок для выбора доступно только 6. Трехкомнатные квартиры будут в 2 видах планировки, всего в доме их будет 11. Четырехкомнатные квартиры будут иметь 1 планировку, а будет их 3 квартиры на весь дом. Многоуровневых квартир в новостройке будет 6, и все они будут иметь совершенно разную планировку.
Кроме того, что квартир в доме много и можно выбрать именно ту, которая понравится больше всего, помещения будут иметь нечто общее – кухня будет большой, и каждая будет иметь выход на лоджию.
Цены на квартиру в ЖК "Парковый город" стартуют от 33 225 гривен за м2. С учетом старта однокомнатных квартир от 31м2 они будут стоить от 1 141 707 гривен, двухкомнатные – от 2 657 389 гривен, трехкомнатные – от 3 025 268 гривен, четырехкомнатные – от 3 954 140 гривен, а многоуровневые стартуют от 3 791 719 гривен.
Приобрести квартиру можно несколькими способами: за 100 % стоимости, в рассрочку от 0 % до 3 лет или в кредит от 5,9 до 23,9 % на срок от 3 до 20 лет. Кроме того, от застройщика регулярно появляются скидки и акции, при действии которых можно приобрести квартиру по сниженной цене. И хотя сдать проект запланировано в IV квартале 2023 года, продажа квартир уже стартовала. Узнать о скидках можно в отделе продаж застройщика.
Преимущества и особенности
Новые дома жилого комплекса будут отличаться от предыдущих. Все 27 домов высотой от 4 до 26 этажей имеют разную конфигурацию, образовавшую каскад и напоминающую палубу корабля. На этот раз застройщик решил построить 4 дома "свечи" на 26 этажей с типовой планировкой. Дома будут расположены с разных сторон: две новостройки со стороны парка и улицы Осиповского, еще две – на стороне улицы Западынской.
Строят новые дома по монолитно-каркасной технологии с использованием керамического кирпича. Утеплять новостройки планируют минеральной ватой, а отопление в квартирах будет централизованное. В каждой квартире установят счетчики на холодную и горячую воду, а также отопление и свет. В самих домах планируется 4 лифта – два грузовых и два пассажирских. Такое количество лифтов для дома с одним подъездом предусмотрено множеством этажей и квартир на них. Всего квартир будет 735.

Территория возле домов будет обустроена в соответствии со стандартами жилищного комплекса: высадят клумбы, газоны и деревья, установят детские площадки. Кроме уже имеющегося паркинга, новые дома будут иметь собственные подземные, расположенные в пространстве между домами. Первые этажи всех четырех домов ЖК "Парковый город" будут отведены под коммерческие помещения, поэтому логично, что магазинов на территории ЖК станет еще больше.
Инфраструктура в комплексе уже полностью укомплектована и проверена временем. На форуме в теме ЖК "Парковый город" полно отзывов жильцов домов, которые делятся своим впечатлением от покупки квартиры в комплексе. Жители публикуют фото парка на территории комплекса, рассказывают о качестве квартир и с какими вопросами столкнулись при покупке.
Помимо инфраструктуры и реальных отзывов, на решение влияет расположение жилого комплекса. Большое количество наземного транспорта и близость подземного упрощает передвижение по разным районам города. Кроме того, развитая социальная инфраструктура идеально подойдет для семей с детьми всех возрастов: большое количество детских садов и школ исключает вопрос "Куда отвести ребенка учиться?".
И конечно, весомое преимущество комплекса – количество рекреационных зон на разный вкус. Можно сходить в фитнес-клуб или придумать активный отдых на природе, у воды. Сочетание парка и удобств города делает возможным идеальный баланс город – природа.
О застройщике ЖК "Парковый город"
Строительством домов занимается девелоперская компания UDP, реализовавшая жилые комплексы "Новопечерские липки", "Бульвар Фонтанов", "Smart Plaza Obolon", "River stone" и ТЦ Ocean Plaza.
За 17 лет застройщик создал на карте Киева новые жилые комплексы и коммерческие здания, все они имеют разную концепцию и конфигурацию и похожие положительные отзывы.
Еще больше положительных отзывов касается отдела продаж. Покупатели отмечают, что в офисе расскажут все преимущества приобретения квартиры, проведут экскурсию и ответят на интересующие вопросы.
Итоги

Жилой комплекс "Парковый город" на улице Вышгородской, 45 в Подольском районе является отличным выбором для семей, которые ищут уют и комфорт. Инфраструктура, рекреация и месторасположение привлекают тех, кто ценит комфорт города и связь с природой.
Широкий выбор планировки позволяет выбрать квартиру по своему вкусу, а профессиональный отдел продаж сможет подобрать выгодные условия для приобретения жилья как в кредит, так и в рассрочку. К тому же компания проводит много скидок и акций для будущих собственников, чтобы покупка стала еще более комфортной. ЖК "Парковый город" станет великолепной инвестицией в счастливое будущее любой семьи.
Прокомментируйте первым