








фото · 1 из 9

Смотреть все фото
Смотреть на карте
Продажа 2к квартиры 92 кв. м на ул. Иоанна Павла II 12 • ID 33702739
ЖК Taryan Towers
Больше о новостройке
261 000 $ за объект · 11 066 400 грн · 2 837 $
за м²
Перевірена квартира
Проверено по видеозвонку
Отчет от 13 ноя.
- Новостройка
- 20 этаж из 31
- Предложение от посредника
Описание от продавца
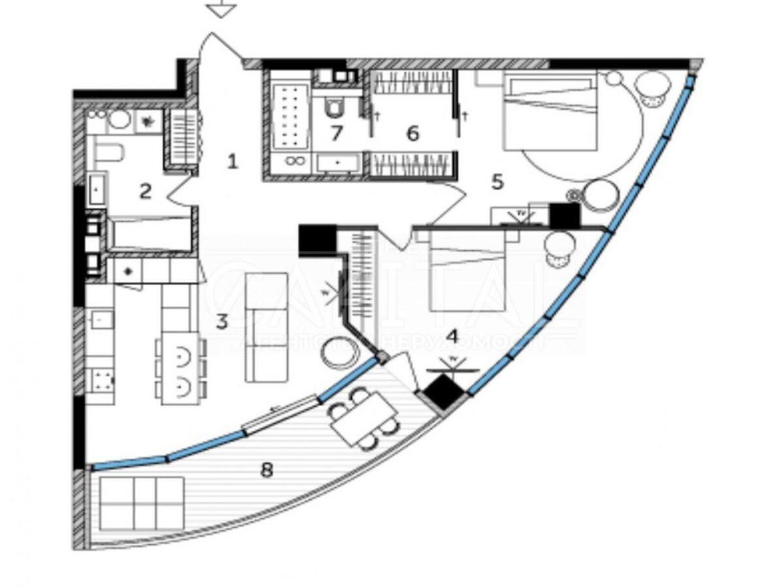
- Общая площадь 92 м² · жилая 65 м² · кухня 27 м²
- Комиссия за услуги 5 %
- Укрытие в доме
- В центре
- Выгодная цена
- К продаже предлагается чудесная видовая квартира в 3-й Башне премиум ЖК на Печерске Taryan Towers.
Квартира находится на 20-м этаже, откуда открывается потрясающий вид на Киев.
Пока дом достраивается, есть отличная возможность выгодно инвестировать.
У TARYAN TOWERS есть все, что нужно для удобства, комфорта и удовольствия: специальный формат лайфстайл-клуба TSARSKY, свой ТРЦ с зоной премиальных бутиков, супермаркет, рестораны, детская школа раннего развития, бассейны и фонтаны. Для вашего удобства мы спроектировали два бассейна! Открытый летний бассейн с террасой на крыше стилобатной части и крытый бассейн на 25 метров в фитнес-клубе TSARSKY.
Рядом с Taryan Towers расположены супермаркеты «Сильпо», большой Novus, «Велика Кишеня», «Фуршет». На улице ул. Иоанна Павла также, недалеко от Taryan Towers, открыты рестораны, кафе и магазины.
Территория с круглосуточным видеонаблюдением, посты охраны, система персональных электронных пропусков, карточный доступ к лифтам и многое другое.
На каждом этаже паркинга вы сможете зарядить свой электромобиль! В Taryan Towers запланировано обустроить специальную зону в паркинге, чтобы вы могли переждать воздушные угрозы ракетных ударов и другие непредсказуемые ситуации в безопасности и с максимально возможным комфортом.
Парковка на уровне -17, 300 м предоставляет возможность эксплуатации его как надежного укрытия.
Для резидентов Taryan Towers в укрытии запланировано обустроить следующие зоны: Lounge, Кинотеатр и кухня, Детская комната, Коворкинг, Медицинский пункт и уборные.
- Характеристика здания: тип дома (серия): новый фонд
- Характеристика помещения: состояние квартиры: без отделочных работ
- Пол (покрытие): без отделки
- Наружная отделка: декоративная штукатурка
- Отопление: автономная котельная
- Помещения: раздельный санузел • 2 санузла
- Оборудование • мебель • удобства: интернет
- Когда нет света: есть интернет • есть мобильная связь • работает лифт • есть водоснабжение • работает отопление • есть резервное питание
- Подъезд: кодовый замок • охранник • домофон • видеодомофон • сигнализация • бронированная дверь • видеонаблюдение на этаже • видеонаблюдение на территории • противопожарная система
- Мебель: нет
- Положение и окружение: тип двора: закрытого типа (вход, въезд ограничен)
- Особенности планировки: терраса
Объявление неактуально или информация неточна?
- Объявление создано 13 ноя. ·
- ID 33702739 ·
- Просмотров 0
- · Сохранений в избранное 0
Расположение ЖК Taryan Towers
ул. Иоанна Павла II(Патриса Лумумбы), 12
Дворец Украина
·
12 мин
Лыбедская
·
15 мин
Печерская
·
19 мин
Информация о ЖК
Дом
Подземный паркинг
Закрытая территория
Отсутствует внутренняя отделка, под чистовую внутреннюю отделку, чистовая внутренняя отделка
Монолитно-каркасный дом
31 этаж
Централизированное отопление
Стены из кирпича
Утепленный минеральной ватой
Договор купли-продажи облигаций
Высота потолков 3 м
Класс элитные
574 квартиры
|
5.4 Общий рейтинг | 5.2 Зоны отдыха | 6 Транспорт | 6.2 Инфраструктура | 5.6 Безопасность | 4 Экология |
| Читать все 50 отзывов о районе Саперное Поле | Добавить отзыв о районе Саперное Поле | ||||
Пользуется спросом на DIM.RIA
Вас могут заинтересовать
Квартиры в ближайших городах