























фото · 1 із 24

Дивитися всі фото
Дивитися на мапі
Оренда офісного приміщення на вул. Набережно-Хрещатицька 35В, приміщень -, поверх - 1 • ID 33639003
Набережно-Хрещатицька вулиця
·
мікрорайон Поділ
·
район Подільський
·
Київ
·
метро Контрактова площа
126 510 грн · 3 000 $
Перевірений офіс
Перевірено по відеодзвінку
Звіт від 22 жов.
- Вторинна нерухомість
- 1 поверх з 2
- Пропозиція від посередника
- Без комісії
Опис від продавця
- Приміщення (частина приміщення)
- Загальна площа 200 м²
- Торг можливий
- У центрі
- Оперативний показ
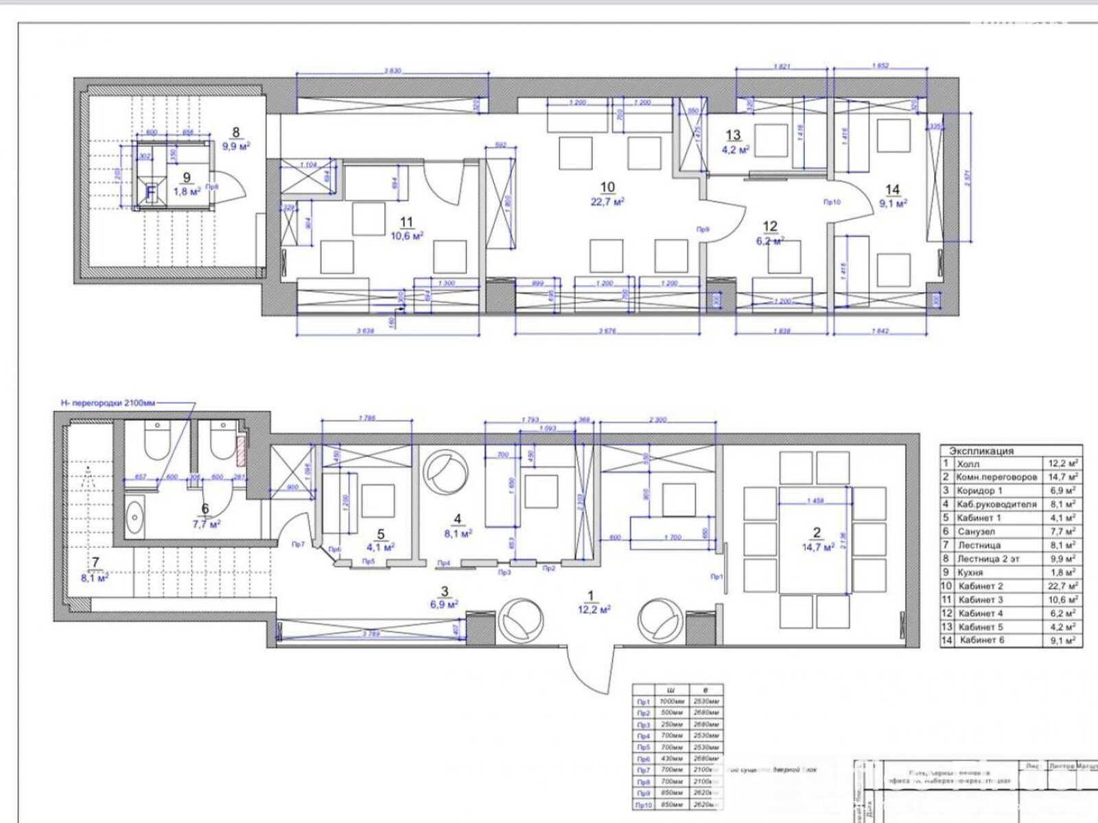
- Оренда двоповерхового приміщення з окремим входом 200 м2.
Окремо стояча будівля.
Під будь яку діяльність.
10 хвилин пішки від метро.
Адреса: вул. Набережно-Хрещатицька, 35 В.
Офіс укомплектований меблями.
Планування:
ресепшн,
переговорна кімната,
кабінет керівника,
6 окремих кабінетів,
кухня,
2 сан вузли.
Власник ФОП 3тя група.
- Характеристика будівлі: окреме приміщення • окрема будівля
- Характеристика приміщення: кабінетне
- Приміщення: санвузол: в приміщенні • кухня: в приміщенні
- Обладнання • меблі • зручності: пропускна система • кондиціонер
- Під'їзд: відеонагляд в приміщенні
- На території є: стоянка для автівок: відкрита
Оголошення неактуальне чи інформація неточна?
- Оголошення створене 22 жов. ·
- ID 33639003 ·
- Переглядів 0
- · Збережень в обране 0
Користується попитом на DIM.RIA
Вас можуть зацікавити
Інші типи нерухомості у Києві