








фото · 1 из 9

Смотреть все фото
Смотреть на карте
Продажа 2к квартиры 79.5 кв. м на ул. Князя Романа Мстиславича • ID 33763307
ЖК Новый Автограф
Больше о новостройке
125 000 $ за объект · 5 312 500 грн · 1 572 $
за м²
В процессе проверки
Сейчас DIM.RIA ждет данных от продавца
Продавец сообщил, что готов пройти проверку на DIM.RIA. Как только получим документы или видео об этом объекте – сразу все расскажем тебе.
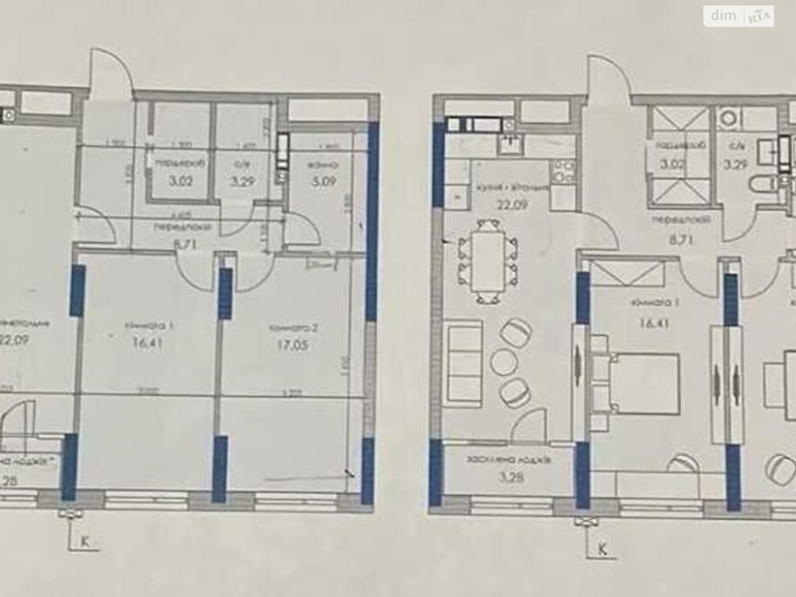
- 2 комнаты · 20 этаж из 25
- Общая площадь 79.5 м² · жилая 33.5 м² · кухня 24 м²
- Стены из кирпича
- Предложение от посредника
- Комиссия за услуги 5 %
- Вторичная недвижимость
Описание от продавца
- Красивый вид
- Тихий двор
- Спокойный район
- Просторная 2-комнатная квартира в ЖК «Новый Автограф» 79, 5 м² Панорама города 125 000 $
Продается чудесная 2-комнатная квартира в современном жилом комплексе «Новый Автограф», расположенном в одном из самых комфортных районов Киева.
Квартира находится на 20-м этаже из 26, благодаря чему открывается невероятный панорамный вид на город.
О квартире:
Площадь 79, 5 м²
Планировка позволяет удобно зонировать пространство.
Состояние после строителей, идеальная основа для реализации вашего интерьерного проекта.
Высокие потолки 2, 73 м
Качественные панорамные окна, монолитно-каркасная конструкция, утепление минеральной ватой.
О комплексе:
Закрытый двор без машин, только для жителей.
Ландшафтный дизайн, площадки для детей и зоны отдыха.
Спортивные зоны и современное оборудование.
Подземная парковка со спуском лифтом прямо из подъезда.
Круглосуточная охрана, видеонаблюдение, консьерж-сервис.
Скоростные и бесшумные лифты
Фасад навесной вентилируемый (керамогранит, клинкер)
Домовая котельная стабильное отопление
Местоположение и инфраструктура:
Через дорогу парк «Перемога»: озера, аттракционы, зеленая зона.
Метро «Дарница» 15 мин пешком или несколько минут на транспорте.
Рядом всё необходимое для жизни:
6 школ
8 детских садов
Поликлиники и больницы
Супермаркеты «Сільпо», «Varus», «Новус»
Кофейни, рестораны, спортклубы.
Цена: 125 000 $
Документы готовы к проведению сделки.
- Особенности планировки: кухня-студия
- Характеристика здания: тип дома (серия): новый фонд
- Характеристика помещения: высота потолка, м: 2.7 • состояние квартиры: требует ремонта / без ремонта / ремонт не закончен • утепление: внешнее
- Отделка потолка: без обработки
- Пол (покрытие): стяжка
- Отопление: автономная котельная
- Подогрев воды: централизованный
- Помещения: раздельный санузел
- Оборудование • мебель • удобства: счетчик на электричество • счетчик на воду • электричество
- Когда нет света: есть интернет • есть мобильная связь • есть водоснабжение
- Подъезд: кодовый замок • вахтер • домофон • бронированная дверь
- Мебель: нет
- Положение и окружение: тип двора: закрытого типа (вход, въезд ограничен)
- Особенности планировки: балкон/лоджия
- Лифт: пассажирский лифт • грузовой лифт
- Уникальные преимущества: Кухня-студия
- Внутренняя отделка: без отделки
Объект не такой, как в описании?
Расскажи нам, что не так – мы все проверим
- Объявление создано 28 ноя. ·
- ID 33763307 ·
- Просмотров 0
- · Сохранений в избранное 0
Расположение ЖК Новый Автограф
ул. Князя Романа Мстиславича(Генерала Жмаченко), 26, 26/2
Дарница
·
28 мин
Черниговская
·
19 мин
Левобережная
·
26 мин
Информация о ЖК
Дом
Подземный паркинг
Двор без машин
Черновая внутренняя отделка
Монолитно-каркасный дом
18-26 этажей
Индивидуальное отопление
Стены из кирпича
Утепленный минеральною ватою
Договор купли-продажи дериватива
Высота потолков 2.7 м
Класс комфорт
810 квартир
|
6.3 Общий рейтинг | 7.1 Зоны отдыха | 6.2 Транспорт | 5.8 Инфраструктура | 5.7 Безопасность | 6.8 Экология |
| Читать все 55 отзывов о районе Северно-Броварский Масив | Добавить отзыв о районе Северно-Броварский Масив | ||||
Пользуется спросом на DIM.RIA
Вас могут заинтересовать
Квартиры в ближайших городах