
























фото · 1 из 25

Смотреть все фото
Смотреть на карте
Продажа 3к квартиры 84.1 кв. м на ул. Срибнокильская 14 • ID 33565220
75 000 $ за объект · 3 161 250 грн · 892 $
за м²
Перевірена квартира
продавец предоставил техпаспорт
Проверено по техпаспорту
Дата последней проверки 1 жов.
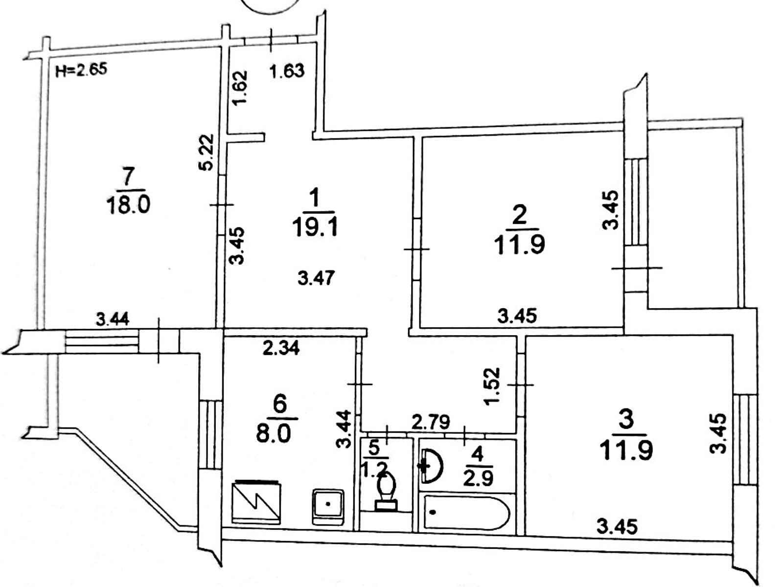
- Общая площадь 84.1 м² · жилая 41.8 м² · кухня 8 м²
- 6 этаж из 16
Описание от продавца
- 3 комнаты · 6 этаж из 16
- Общая площадь 84.1 м² · жилая 41.8 м² · кухня 8 м²
- Стены из панелей
- Построен в 1990-2000
- Предложение от посредника
- Без комиссии
- єВідновлення
- Вторичная недвижимость
- Рядом с парком
- Спокойный район
- Выгодная цена
- В продаже просторная трехкомнатная квартира по адресу: г. Киев, ул. Срібнокільська, 14, Позняки.
Дом 1995 года, проект АППС К-134, утепленная панель.
Только некоторые преимущества данной квартиры:
- невысокий 6 этаж 16-ти этажного дома, тамбур на три квартиры, просторная двусторонняя планировка;
- просторный хол, три раздельные комнаты, нормального размера кухня, раздельный санузел;
- общая площадь - 85 м2, жилая - 42 м2, кухня - 8м2;
- высота потолка - 2, 7 м, два просторных и утепленных балкона, один из которых - 6, 7 м2.
Квартира в хорошем жилом состоянии, металлопластиковые окна, все коммуникации централизованы. Без газа.
В пешей доступности две станции метро - Осокорки и Позняки.
Рядом находятся школа, детский сад, магазины, супермаркет и все, что необходимо современному украинцу в пешей доступности от двери квартиры.
При этом дом строился еще в годы, когда придомовая территория имела значение, и поэтому здесь зеленая зона вокруг дома, через дорогу каскад озер с соответствующей полосой деревьев и максимально безопасно Ваш ребенок может дойти до школы или детского сада. Все это есть в локации и будет преимуществом во все времена.
Объект предлагается без % для покупателя (комиссию АН оплачивает владелец) - выгода для Вас без скрытых платежей.
Каждая сторона платит свои налоги.
Рассмотрим продажу в безналичной форме расчёта.
Единим представником Власника є Агенція нерухомості ПІК.
Без дублювання в рекламі.
Запис на перегляд по номеру в оголошенні.
Щоб отримати відео - звертайтесь, будь ласка в телеграм або вайбер за номером в оголошенні.
написати можна на телеграм - Realt_PIK_Kiev.
- Характеристика помещения: планировка: раздельные комнаты • высота потолка, м: 2.7 • состояние квартиры: хорошее • утепление: внутреннее
- Отделка потолка: обои
- Пол (покрытие): керамическая плитка • линолеум
- Внутренняя отделка: обои • кафель
- Наружная отделка: керамическая плитка
- Двери и окна: тип окон: металопластиковые
- Отопление: централизованное
- Подогрев воды: централизованный
- Помещения: раздельный санузел
- Оборудование • мебель • удобства: телевизор • обеденная зона • стиральная машина • ванна • электрическая плита • микроволновая печь • шкаф-гардероб • диван • холодильник • электричество • письменный стол
- Положение и окружение: тип двора: внутренний
- Особенности планировки: балкон/лоджия
Объявление неактуально или информация неточна?
- Объявление создано 1 жов. ·
- ID 33565220 ·
- Просмотров 0
- · Сохранений в избранное 0
Информация о доме
ул. Срибнокильская, 14
Осокорки ·
10 мин
Дом
Наружная отделка из керамической плитки 5 подъездов Наружное утепление отсутствуетДвор
Внутренний дворДополнительные удобства
Парикмахерская/салон красоты; магазины промтоваров
Учебные заведения
|
11 мин
Медичний інститут Української асоціації народної медицини
|
11 мин
Київський університет ринкових відносин
|
43 мин
Київська Богословська Семінарія
|
|---|---|---|---|
Детский сад
|
3 мин
Дитячий садок «Осокорки»
|
8 мин
Ладушки
|
15 мин
Дитячий садок №21
|
ТЦ, рынок, магазины
|
6 мин
Аркадія
|
9 мин
Cool Beer
|
9 мин
Novus
|
Школа
|
5 мин
Школа №314
|
6 мин
Школа №62
|
7 мин
Kiev Art School
|
Больница
|
4 мин
Фармавит
|
4 мин
Крапля Роси
|
14 мин
Лікарня "Борис"
|
Парковые зоны
|
18 мин
Парк «Позняки»
|
21 мин
Сквер ім. Кошиця
|
29 мин
Парк "Берковщина"
|
Транспортная развязка
|
8 мин
Дніпровська набережна
|
9 мин
Медична амбулаторія
|
13 мин
Вулиця Гмирі
|
Наземный паркинг
|
14 мин
ГБК "Русанівський-3"
|
18 мин
Паркінг АТБ
|
28 мин
Паркінг "Патріотика"
|
6.3 Общий рейтинг | 6.2 Зоны отдыха | 6.7 Транспорт | 6.6 Инфраструктура | 6.3 Безопасность | 5.7 Экология |
| Читать все 55 отзывов о районе Позняки | Добавить отзыв о районе Позняки | ||||
Пользуется спросом на DIM.RIA
Вас могут заинтересовать
Квартиры в ближайших городах