








фото · 1 из 9

Смотреть все фото
Смотреть на карте
Продажа 2к квартиры 49.5 кв. м на ул. Набережно-Рыбальская дорога 9 • ID 33718420
Жилой район Rybalsky
Больше о новостройке
165 000 $ за объект · 6 971 250 грн · 3 333 $
за м²
В процессе проверки
Сейчас DIM.RIA ждет данных от продавца
Продавец сообщил, что готов пройти проверку на DIM.RIA. Как только получим документы или видео об этом объекте – сразу все расскажем тебе.
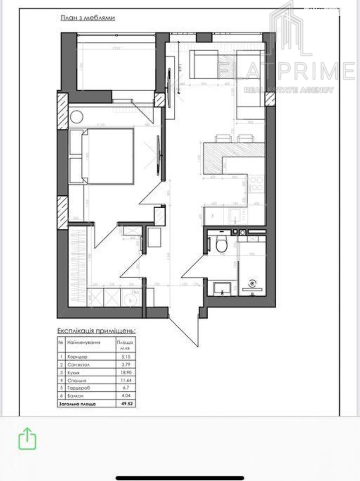
- 2 комнаты · 5 этаж из 10
- Общая площадь 49.5 м² · жилая 17 м² · кухня 19 м²
- Стены из кирпича
- Предложение от посредника
- Комиссия за услуги 5 %
- Вторичная недвижимость
Описание от продавца
- Торг уместен
- Рядом с парком
- Оперативный показ
- Продам квартиру с документами более 3 лет!
Дом 9, 5 этаж, красивый вид на канал и 11-й дом.
На фото дизайн-проект.
Ремонт на стадии завершения, можно доделать под свой вкус или по плану дизайнера.
Квартира светлая, с продуманной планировкой, идеальна для проживания или инвестиции.
Документы полностью готовы к сделке, возможно быстрое оформление.
Звоните организую просмотр!
- Особенности планировки: кухня-студия
- Характеристика здания: тип дома (серия): индивидуальный проект
- Характеристика помещения: высота потолка, м: 2.7 • состояние квартиры: без отделочных работ • утепление: внешнее
- Отделка потолка: без обработки
- Пол (покрытие): без отделки
- Наружная отделка: декоративная штукатурка
- Отопление: централизованное
- Подогрев воды: централизованный • бойлер
- Помещения: раздельный санузел
- Оборудование • мебель • удобства: счетчик на электричество • счетчик на воду • электричество • интернет
- Когда нет света: есть интернет • есть водоснабжение
- Подъезд: кодовый замок • сигнализация
- Мебель: нет
- Положение и окружение: тип двора: внутренний
- Особенности планировки: балкон/лоджия
- Уникальные преимущества: Кухня-студия
- Внутренняя отделка: без отделки
Объект не такой, как в описании?
Расскажи нам, что не так – мы все проверим
- Объявление создано 15 ноя. ·
- ID 33718420 ·
- Просмотров 0
- · Сохранений в избранное 0
Расположение Жилой район Rybalsky
ул. Набережно-Рыбальская дорога, 3,9
Тараса Шевченко
·
21 мин
Почтовая площадь
·
21 мин
Контрактовая площадь
·
27 мин
Информация о ЖК
Дом
Подземный паркинг, многоуровневый паркинг
Отсутствует внутренняя отделка
Монолитно-каркасный дом
9 этажей
Централизированное отопление
Стены из керамического красного кирпича
Утепленный минеральной ватой
Инвестиционный договор
Высота потолков 2.82 м
Класс комфорт
1151 квартира
|
6.9 Общий рейтинг | 7 Зоны отдыха | 7.1 Транспорт | 7 Инфраструктура | 6.7 Безопасность | 6.8 Экология |
| Читать все 600 отзывов о районе Подольский | Добавить отзыв о районе Подольский | ||||
Пользуется спросом на DIM.RIA
Вас могут заинтересовать
Квартиры в ближайших городах