









фото · 1 із 10

Дивитися всі фото
Дивитися на мапі
Продаж 1к квартири 41 кв. м на вул. Левка Лук’яненка 16Б • ID 33514740
ЖК Lavanda Park
Більше про новобудову
41 000 $ за об'єкт · 1 730 200 грн · 1 000 $
за м²
Перевірена квартира
Перевірено по відеодзвінку
Звіт від 23 сен.
- Вторинна нерухомість
- 1 кімната
- 9 поверх з 10
- Пропозиція від посередника
Опис від продавця
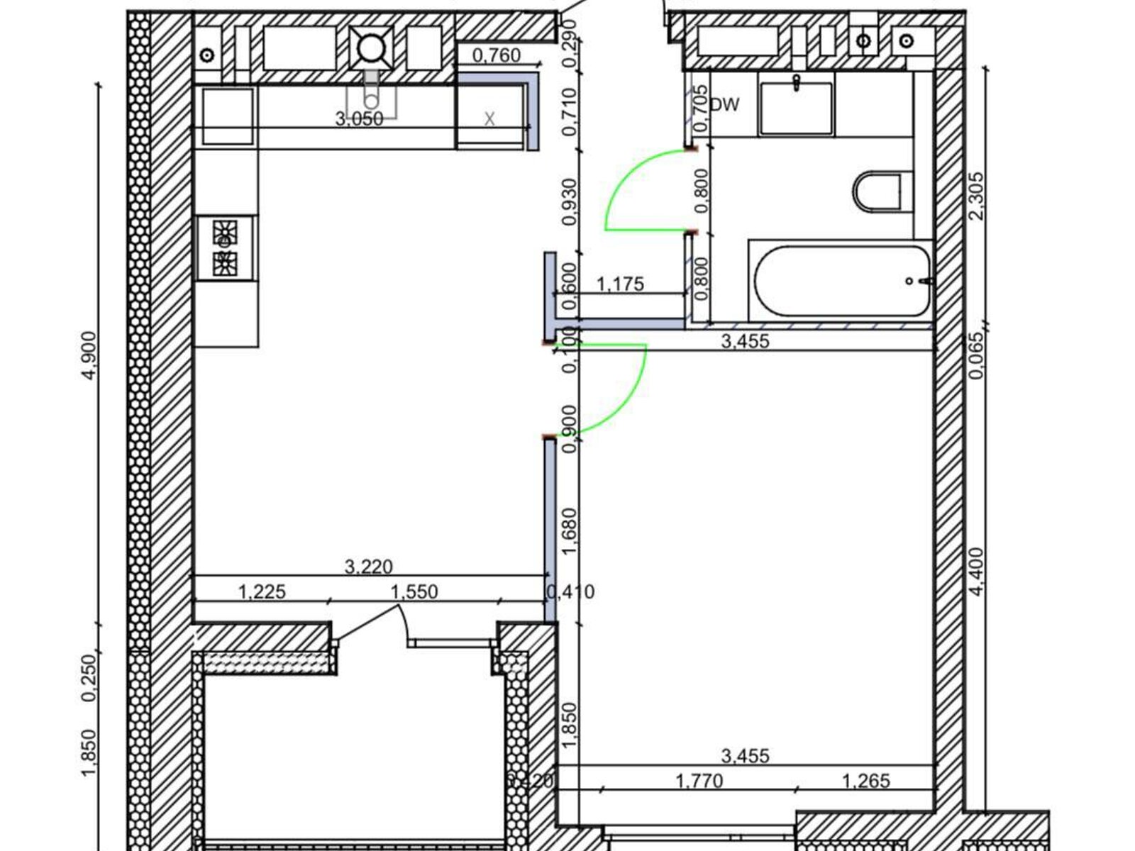
- Загальна площа 41 м² · житлова 15 м² · кухня 16 м²
- Стіни з цегли
- Здача в 2025
- Комісія за послуги 5 %
- Оперативний показ
- Терміново
- Вигідна ціна
- Продаж однокімнатної квартири в ЖК Лаванда Парк, м. Вінниця
Пропонуємо 1-кімнатну квартиру у сучасній новобудові ЖК Лаванда Парк
Друга секція, 9 поверх з 10.
Площа 41 м²
Вікна виходять у затишний двір
Квартира у чорновому стані, готова до втілення вашого дизайну. Можна придбати за переуступкою - ви станете першим власником
Ціна - 41 000 $
Ідеальний варіант для тих, хто цінує комфорт та сучасну інфраструктуру
За деталями телефонуйте
- Характеристика будівлі: тип будинку (серія): новий фонд
- Характеристика приміщення: стан квартири: чорнова штукатурка • утеплення: зовнішнє
- Оздоблення стелі: без обробки
- Підлога (покриття): без обробки
- Опалення: двоконтурний котел
- Приміщення: суміжний санвузол
- Розташування і оточення: тип двору: внутрішній
- Внутрішнє оздоблення: чорнова штукатурка
- Особливості планування: балкон/лоджія
- Обладнання • меблі • зручності: електрика • газ
Оголошення неактуальне чи інформація неточна?
- Оголошення створене 23 сен. ·
- ID 33514740 ·
- Переглядів 0
- · Збережень в обране 0
Інформація про ЖК
Будинок
Багаторівневий паркінг
700 паркомісць
Двір без машин
Чорнове внутрішнє оздоблення
Цегляний будинок
10 поверхів
Індивідуальне опалення
Стіни з керамічної червоної цегли
Утеплений мінеральною ватою
Договір про сплату пайових внесків через кооператив
Висота стелі 2.6 м
Клас комфорт
99 квартир
6.2 Загальний рейтинг | 6.4 Зони відпочинку | 6.2 Транспорт | 6.2 Інфраструктура | 5.7 Безпека | 6.7 Екологія |
| Читати всі 635 відгуків про район Тяжилів | Додати відгук про район Тяжилів | ||||
Користується попитом на DIM.RIA
Вас можуть зацікавити
Квартири у найближчих містах