


















фото · 1 із 19

Дивитися всі фото
Дивитися на мапі
Продаж 1к квартири 58 кв. м на вул. Бориса Літвака • ID 23066033
ЖК Віндзор
Більше про новобудову
95 000 $ за об'єкт · 4 011 850 грн · 1 638 $
за м²
Перевірена квартира
Перевірено по відеодзвінку
Звіт від 28 лип.
- Новобудова
- 1 кімната
- 3 поверх з 10
- Пропозиція від посередника
Опис від продавця
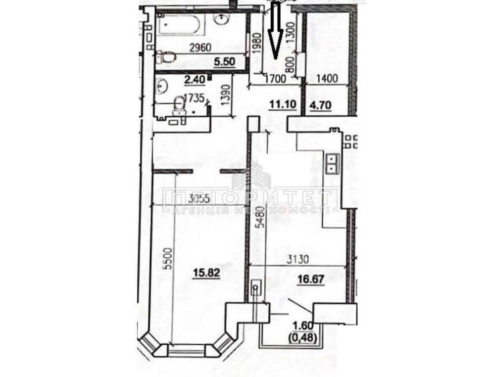
- Загальна площа 58 м² · житлова 69.4 м² · кухня 23.3 м²
- Стіни з червона цегла
- Побудовано 2023
- ID 18312 Симбіоз авангарду та класики
Простора в ЖК "Віндзор", з двома санвузлами, гардеробною та відкритою терасою об'єднує в собі все найкраще, що можна отримати від квартири в Одесі. Квартира світла. Розводка опалення по підлозі. Встановлені двоконтурні газові котли чеського виробника. Висота стель 3 метри. Локація в центрі, натуральні матеріали, європейський сервіс. Високий рівень шумоізоляції, європейська система кондиціонування, двоконтурне комбіноване опалення.
Будинок збудований у стилі класицизму і чудово вписується в картину старої Одеси. При цьому були використані сучасні технології будівництва. Сходові прольоти з керамограніту. Встановлені ліфти фірми Schindler. Є підземний паркінг.
Вид з ЖК на історичні пам'ятки міста, розташування в центрі, власний англійський двір з трояндами тут ви відчуєте себе по-справжньому вдома.
- Зовнішня обробка: обкладено цеглою
- Опалення: індивідуальне газове • двоконтурний котел
- Підігрів води: двоконтурний котел
- Приміщення: 2 санвузла
- Обладнання • меблі • зручності: лічильник на електрику • лічильник на газ • електрика • газ
- Коли немає світла: є мобільний зв'язок • є водопостачання • є газ
- Розташування і оточення: тип двору: закритого типу (вхід, в'їзд обмежений)
- Особливості планування: панорамні / вітринні вікна • балкон/лоджія
Оголошення неактуальне чи інформація неточна?
- Оголошення створене 28 жов. ·
- ID 23066033 ·
- Переглядів 0
- · Збережень в обране 0
Інформація про ЖК
Будинок
Підземний паркінг
20 паркомісць
Закрита територія
Чорнове внутрішнє оздоблення
Цегляний будинок
9 поверхів
Індивідуальне опалення
Стіни з цегли
Утеплений без утеплення
Договір про сплату пайових внесків через кооператив
Висота стелі 3 м
Клас елітні
29 квартир
8.3 Загальний рейтинг | 8.4 Зони відпочинку | 8.6 Транспорт | 8.5 Інфраструктура | 8 Безпека | 7.9 Екологія |
| Читати всі 555 відгуків про район Приморський | Додати відгук про район Приморський | ||||
Користується попитом на DIM.RIA
Вас можуть зацікавити
Квартири у найближчих містах