









фото · 1 із 10

Дивитися всі фото
Дивитися на мапі
Продаж 1к квартири 45.25 кв. м на вул. Персенківка 2 • ID 33665128
ЖК Big Ben
Більше про новобудову
61 404 $ за об'єкт · 2 588 179 грн · 1 357 $
за м²
У процесі перевірки
Наразі DIM.RIA чекає даних від продавця
Продавець вказав, що готовий пройти перевірку на DIM.RIA. Щойно отримаємо документи або відео про цей об'єкт — відразу все розкажем тобі.
- 1 кімната · 5 поверх з 18
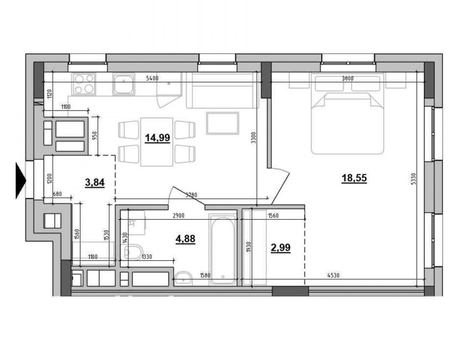
- Загальна площа 45.25 м² · житлова 18.55 м² · кухня 14.55 м²
- Стіни з газоблоку
- Здача в 2027
- Пропозиція від посередника
- Без комісії
- Вторинна нерухомість
Опис від продавця
- Укриття в будинку
- Престижний район
- Вигідна ціна
- ПРОДАЖ АПАРТАМЕНТІВ В 0-ЦИКЛІ
БЕЗ КОМІСІЇ ДЛЯ ПОКУПЦЯ
Адреса місто Львів, вулиця Персенківка, 2.
Кількість кімнат одна.
Поверх 5 з 7.
Апартаменти в 0-циклі, тобто ще без ремонту.
Загальна площа 45.25 м², житлова 18.55 м², кухня 14.99 м².
Опалення центральне з квартирним лічильником.
Санвузол один, суміжний.
Будинок вводиться в експлуатацію в 3 кварталі 2027 року.
Особливості даних апартаментів територія комплексу є закритою та знаходиться під цілодобовим відеоспостереженням, що забезпечує постійний контроль та безпеку мешканців. Комплекс реалізує концепцію "дворів без машин", що створює повністю пішохідні простори. Усі апартаменти мають двосторонню орієнтацію, де кухня виходить на галерею, а спальні на вулицю або внутрішній двір, забезпечуючи оптимальне освітлення та вентиляцію. Галереї, зелені зони з фонтанчиками, дитячі майданчики та місця для бадмінтону все для того, щоб кожен день feels like Friday, а сусіди ставали друзями вже з другого дня знайомства.
Поруч з будинком: університети, школи, дитячі садочки, Країна Мрій Львів Дитячий Розважальний Центр, ТРЦ Fabric, ТРЦ Вікторія Ґарденс, Аквапарк «Пляж», ресторани, продуктові магазини, спортзали, медичні центри, нова пошта, озеро «Цигольня», Стрийський парк, парк «Залізна вода», парк «Горіховий гай», парк «Богданівка».
Ми надаємо повний цикл: девелопмент, дизайн проект, ремонт та подальший продаж, або професійне управління нерухомістю для задачі в оренду.
Код обʼєкта: 3943 (2)
- Особливості планування: кухня-студія
- Характеристика приміщення: стан квартири: потребує ремонту/ без ремонту / ремонт не завершений • утеплення: зовнішнє
- Оздоблення стелі: без обробки
- Підлога (покриття): стяжка
- Опалення: централізоване • автономна котельня
- Приміщення: суміжний санвузол
- Меблі: немає
- Розташування і оточення: тип двору: закритого типу (вхід, в'їзд обмежений)
- Внутрішнє оздоблення: чорнова штукатурка
- Унікальні переваги: Кухня-студія
- Обладнання • меблі • зручності: електрика
Об'єкт не такий, як в описі?
Розкажи нам, що не так - ми все перевіримо
- Оголошення створене 30 жов. ·
- ID 33665128 ·
- Переглядів 0
- · Збережень в обране 0
Інформація про ЖК
Будинок
Підземний паркінг, наземний паркінг
328 паркомісць
Закрита територія
Каркасний будинок
7-18 поверхів
Централізоване опалення
Стіни з газобетону
Утеплений мінеральною ватою
Висота стелі 2.7 м
Клас комфорт
242 квартири
Користується попитом на DIM.RIA
Вас можуть зацікавити
Квартири у найближчих містах