Може вас зацікавити













фото · 1 із 13

Дивитися всі фото
Продаж 4к квартири 140 кв. м на вул. Ковпака 17 • ID 33641440
Французький квартал
265 000 $ за об'єкт · 11 148 550 грн · 1 893 $
за м²
Без перевірки
Опис від продавця
Продавець не підтвердив інформацію про цей об'єкт (не замовляв перевірку з представником DIM.RIA, не надсилав відео або документи)
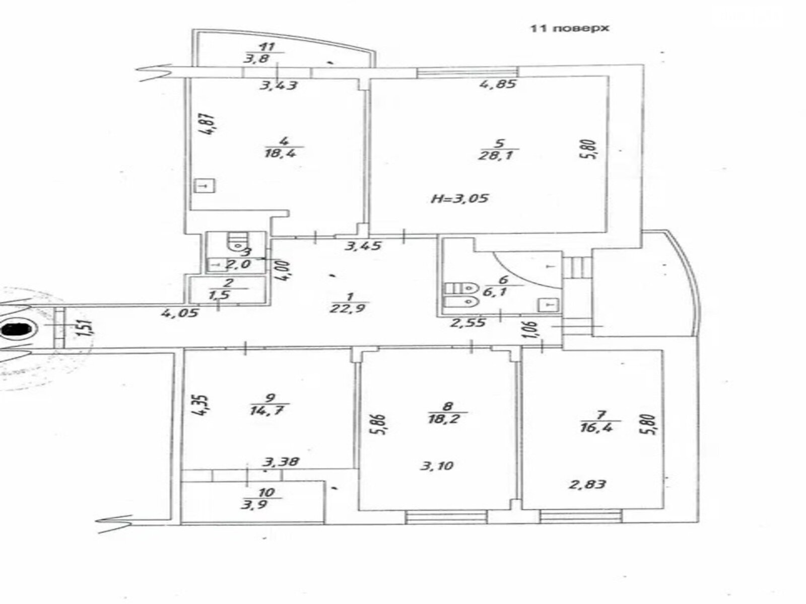
- 4 кімнати · 11 поверх з 20
- Загальна площа 140 м² · житлова 100 м² · кухня 19 м²
- Стіни з цегли
- Побудовано 2001-2010
- Пропозиція від посередника
- Вторинна нерухомість
- Престижний район
- Поруч з парком
- У центрі
- Продаж 4 кімнатної видової квартири на Печерську .
Пропонується простора світла велика 4 кімнатна (+столова) видова квартира площею 140 кв.м з евроремонтом, меблями та теникою за адресою вулиця Ковпака 17 на 11 поверсі 18 поверхового цегляного будинку у самому центрі столиці. Виконано якісний ремонт, . По плануванню - 3 великі окремі спальні, вітальня та велика кухня 19кв.м з обідньою зоною, хол, 2 санвузла один з котрих з ванною та вікном, 3 лоджіі ( одна із кухні), гарний краєвід, Кондиціонування кожної зони, посудомийна та пральна машини.В будинку цілодобова охорона, пішки 5хв станція метро Палац Україна або Либідська. Поруч магазини супермаркет «Сільпо», кафе, ресторани, школа та дитячий садок, ЖК Французький квартал та Бульвар Фонтанів. За окрему плату є паркомісце у підземному паркінгу.
- Особливості планування: кухня-студія
- Характеристика будівлі: тип будинку (серія): новий фонд
- Характеристика приміщення: висота стелі, м: 3 • стан квартири: євроремонт • утеплення: зовнішнє
- Оздоблення стелі: підвісна стеля
- Підлога (покриття): керамічна плитка • паркетна дошка
- Внутрішнє оздоблення: шпалери
- Зовнішня обробка: обкладено цеглою
- Опалення: централізоване
- Підігрів води: централізований • бойлер
- Приміщення: вітальня • 2 санвузла
- Обладнання • меблі • зручності: обідня зона • пральна машина • посудомийна машина • ванна • електрична плита • шафа-гардероб • Вбудована кухня • диван • холодильник • лічильник на електрику • лічильник на воду • кондиціонер • електрика • витяжка • інтернет • двоспальне ліжко
- Коли немає світла: є інтернет • працює ліфт • є резервне живлення
- Під'їзд: консьєрж • домофон • відеоспостереження на території • протипожежна система
- Розташування і оточення: тип двору: внутрішній
- Ліфт: пасажирський ліфт • вантажний ліфт
- Особливості планування: підігрів підлоги • балкон/лоджія
- Унікальні переваги: Кухня-студія
- Оголошення створене 23 жов. ·
- ID 33641440 ·
- Переглядів 0
5.4 Загальний рейтинг | 5.2 Зони відпочинку | 6 Транспорт | 6.2 Інфраструктура | 5.6 Безпека | 4 Екологія |
| Читати всі 50 відгуків про район Саперне Поле | Додати відгук про район Саперне Поле | ||||
Користується попитом на DIM.RIA
Вас можуть зацікавити
Квартири у найближчих містах