























фото · 1 із 24

Дивитися всі фото
Дивитися на мапі
Продаж 2к квартири 84.8 кв. м на вул. Микільсько-Слобідська 10 • ID 33778407
ЖК Русанівська Гавань
Більше про новобудову
123 000 $ за об'єкт · 5 215 200 грн · 1 450 $
за м²
Перевірена квартира
продавець надав техпаспорт
Перевірено по техпаспорту
Дата останньої перевірки 7 гру.
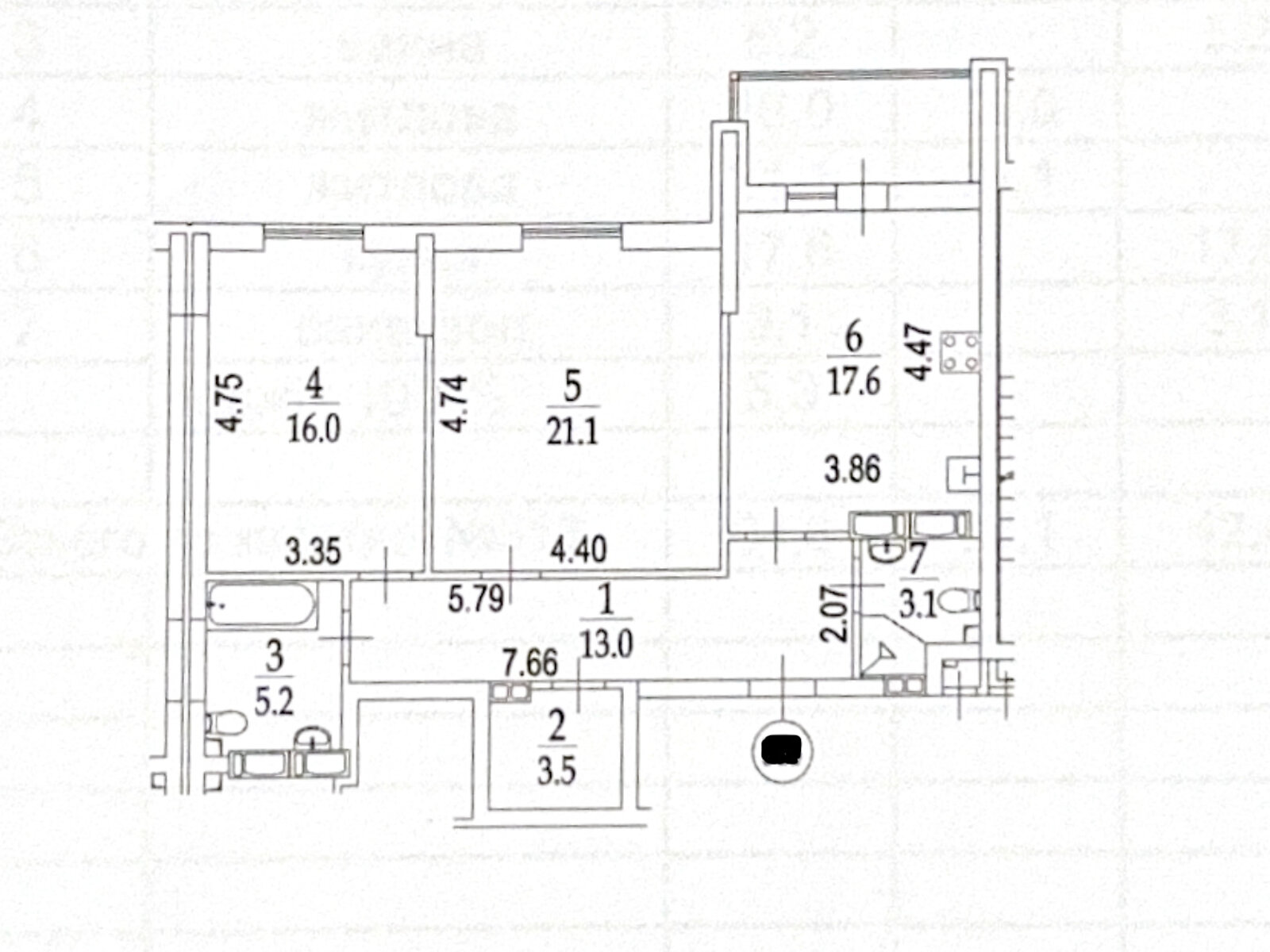
- Загальна площа 84.8 м² · житлова 37.1 м² · кухня 17.6 м²
- 2 кімнати
- 24 поверх з 26
Опис від продавця
- 2 кімнати · 24 поверх з 26
- Загальна площа 84.8 м² · житлова 37.1 м² · кухня 17.6 м²
- Стіни з моноліту
- Побудовано 2021
- Пропозиція від посередника
- Комісія за послуги 5 %
- Вторинна нерухомість
- Укриття в будинку
- Територія під охороною
- Житло не використовувалось з моменту побудови
- #31395
Пропонується квартира у одному з найкомфортніших комплексів на Русанівці Русанівська Гавань.
Формат: 2 окремі кімнати + простора кухня-вітальня.
Переваги квартири:
Площа 85 м², продумане планування.
Стан після будівельників, виконано початкові ремонтні роботи.
Розведена електрика та сантехніка мінус частина витрат і часу на старт ремонту.
Конвектори у підлозі сучасне та ефективне рішення для обігріву.
Високі стелі, великі вікна, багато світла.
Ідеально для створення індивідуального дизайну.
Про комплекс:
Сучасна набережна, зона прогулянок та велодоріжки.
Закрита територія, охорона, відеонагляд.
Поруч дитячі садки, школа, магазини, кафе, швидкий доступ до центру.
Ідеальна пропозиція для тих, хто шукає квартиру з можливістю реалізувати власний дизайн у престижному районі.
- Помешкання: Двері шириною понад 90 см
- Вхід в будинок: Пандус • Вхід шириною понад 90 см
- Двір: Паркувальне місце для людей з інвалідністю
- Характеристика будівлі: тип будинку (серія): індивідуальний проект
- Характеристика приміщення: висота стелі, м: 2.7 • стан квартири: потребує ремонту/ без ремонту / ремонт не завершений • утеплення: зовнішнє
- Оздоблення стелі: без обробки
- Підлога (покриття): стяжка
- Зовнішня обробка: декоративна штукатурка
- Опалення: автономна котельня
- Підігрів води: централізований
- Приміщення: вітальня • 2 санвузла
- Обладнання • меблі • зручності: лічильник на електрику • лічильник на воду • відеонагляд • електрика • інтернет
- Коли немає світла: є інтернет • є мобільний зв'язок • працює ліфт • є водопостачання • працює опалення
- Під'їзд: охоронець • консьєрж • домофон • броньовані двері • відеоспостереження на території • протипожежна система • Простір під'їзду не вужче 135 см • Двері ліфта понад 90 см • Ліфт зі звуковим супроводом
- Меблі: немає
- Розташування і оточення: тип двору: закритого типу (вхід, в'їзд обмежений)
- Ліфт: пасажирський ліфт • вантажний ліфт
- Особливості планування: панорамні / вітринні вікна • балкон/лоджія
- Внутрішнє оздоблення: без оздоблення
Оголошення неактуальне чи інформація неточна?
- Оголошення створене 7 гру. ·
- ID 33778407 ·
- Переглядів 0
- · Збережень в обране 0
Розташування ЖК Русанівська Гавань
вул. Євгена Маланюка(Сагайдака), 101
Лівобережна
·
17 хв
Дарниця
·
19 хв
Гідропарк
·
20 хв
Інформація про ЖК
Будинок
Підземний паркінг, наземний паркінг
Двір без машин
Відсутнє внутрішнє оздоблення
Монолітно-каркасний будинок
26 поверхів
Автономне опалення
Стіни з керамзитобетону
Утеплений мінеральною ватою
Інвестиційний договір
Висота стелі 2.7 м
Клас комфорт
2026 квартир
|
6.9 Загальний рейтинг | 6.8 Зони відпочинку | 7.1 Транспорт | 6.9 Інфраструктура | 6.4 Безпека | 7.2 Екологія |
| Читати всі 70 відгуків про район Микільська Слобідка | Додати відгук про район Микільська Слобідка | ||||
Користується попитом на DIM.RIA
Вас можуть зацікавити
Квартири у найближчих містах