
















фото · 1 із 17

Дивитися всі фото
Дивитися на мапі
Продаж 1к квартири 40.9 кв. м на вул. Нагірна 16 • ID 33005591
ЖК Henesi-house
Більше про новобудову
81 000 $ за об'єкт · 3 419 820 грн · 1 980 $
за м²
Перевірена квартира
продавець надав техпаспорт
Перевірено по техпаспорту
Дата останньої перевірки 17 кві.
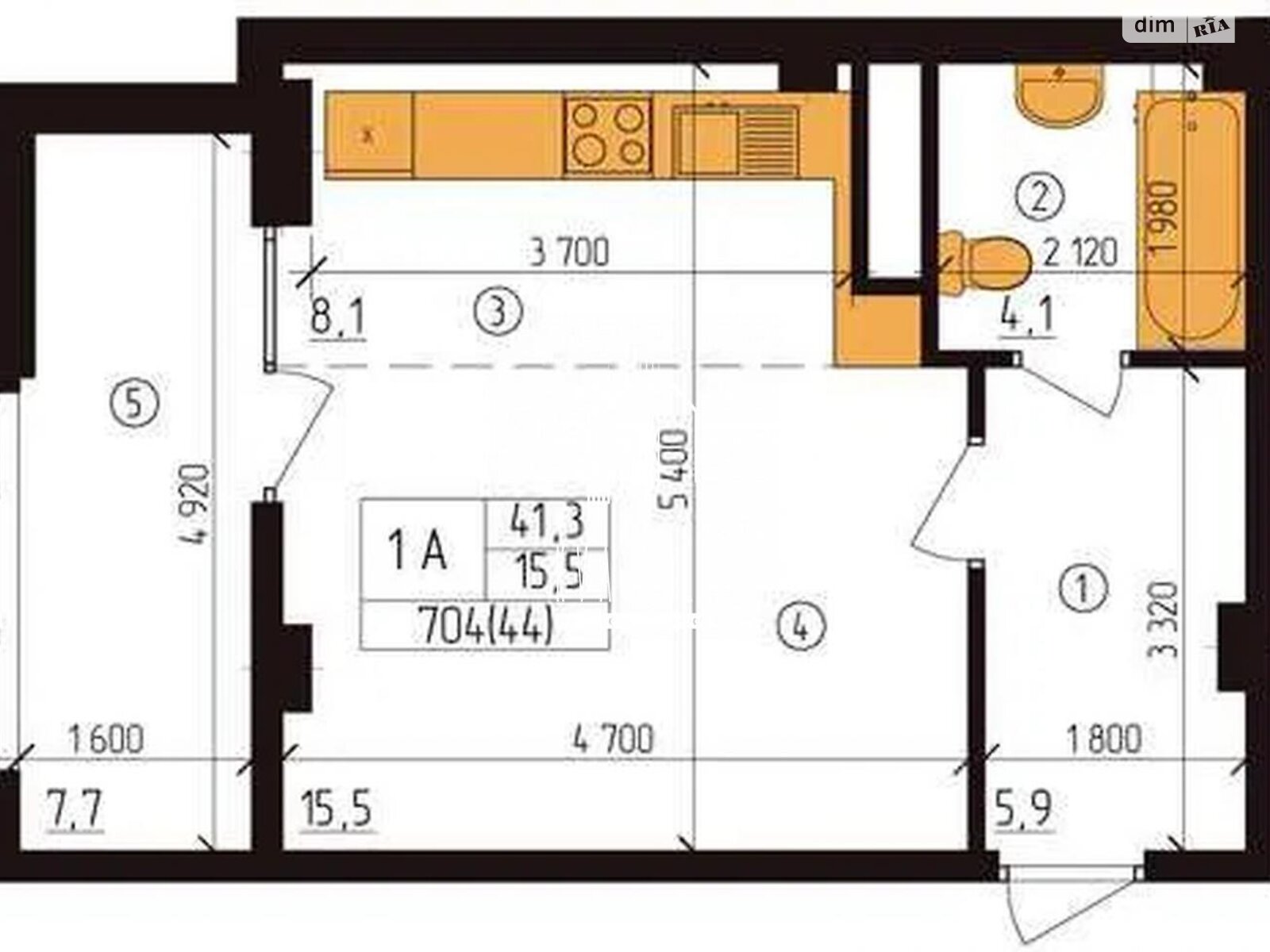
- Загальна площа 40.9 м² · житлова 26 м² · кухня 5 м²
- 1 кімната
- 7 поверх з 25
Опис від продавця
- 1 кімната · 7 поверх з 25
- Загальна площа 40.9 м² · житлова 26 м² · кухня 5 м²
- Стіни монолітно-каркасні
- Побудовано 2021
- Пропозиція від посередника
- Комісія за послуги 4 %
- Вторинна нерухомість
- Територія під охороною
- Оперативний показ
- #116016
До вашої уваги пропонується 1 кімнатна квартира на продаж за адресою: вул. Нагірна, 16/18 , яка розташована на 7 поверсі 26 поверхового будинку.
Чудова інфраструктура.
У пішій доступності супермаркети, торгові центри, ресторани, велика кількість магазинів, школи, дитячі садки, поліклініка, та інше.
Тихий та затишний двір, дружелюбні сусіди, поруч місця для відпочинку та паркування.
Зручна транспортна розв'язка 20 хвилин до центру міста, метро, громадський транспорт.
Агенство нерухомості "Квартали"
Працюючи з нами, ви отримуєте лише перевірене житло за адекватною ціною.Підтримка на всіх етапах угоди.
Ми гарантуємо, що ви залишитеся задоволені співпрацею!
Комісія 4% за фактом підписання договору.
- Характеристика будівлі: тип будинку (серія): новий фонд
- Характеристика приміщення: висота стелі, м: 3 • стан квартири: євроремонт • утеплення: зовнішнє
- Оздоблення стелі: натяжна стеля • фарбування
- Підлога (покриття): керамічна плитка • ламінат
- Внутрішнє оздоблення: фарбування • шпалери • керамічна плитка
- Зовнішня обробка: декоративна штукатурка
- Вода: центральний водопровід
- Опалення: централізоване
- Підігрів води: централізований • бойлер • комбінований
- Приміщення: суміжний санвузол
- Обладнання • меблі • зручності: телевізор • плазмовий телевізор • обідня зона • пральна машина • сушарка для білизни • ванна • електрична плита • духова шафа • шафа-гардероб • Вбудована кухня • диван • холодильник • лічильник на електрику • лічильник на воду • кондиціонер • електрика • інтернет
- Коли немає світла: є інтернет • є мобільний зв'язок • працює ліфт • є водопостачання • працює опалення
- Під'їзд: охоронець • домофон • відеодомофон
- Розташування і оточення: тип двору: закритого типу (вхід, в'їзд обмежений)
- Особливості планування: балкон/лоджія
Оголошення неактуальне чи інформація неточна?
- Оголошення створене 17 кві. ·
- ID 33005591 ·
- Переглядів 0
- · Збережень в обране 0
Розташування ЖК Henesi-house
вул. Нагірна, 18/16
Лук'янівська
·
23 хв
Тараса Шевченка
·
29 хв
Почайна(Петрівка)
·
46 хв
Інформація про ЖК
Будинок
Підземний паркінг
Закрита територія
Відсутнє внутрішнє оздоблення
Монолітно-каркасний будинок
23 поверхи
Індивідуальне опалення
Стіни з газоблоку
Попередній договір купівлі-продажу квартири
Висота стелі 3 м
Клас комфорт
311 квартир
8.2 Загальний рейтинг | 7.9 Зони відпочинку | 9.1 Транспорт | 8.7 Інфраструктура | 7.9 Безпека | 7.4 Екологія |
| Читати всі 95 відгуків про район Лук'янівка | Додати відгук про район Лук'янівка | ||||
Користується попитом на DIM.RIA
Вас можуть зацікавити
Квартири у найближчих містах