











фото · 1 із 12

Дивитися всі фото
Дивитися на мапі
Продаж 2к квартири 75 кв. м на вул. Нагірна 16 • ID 27643516
ЖК Henesi-house
Більше про новобудову
108 000 $ за об'єкт · 4 552 200 грн · 1 612 $
за м²
Перевірена квартира
Перевірено по відеодзвінку
Звіт від 14 дек. 2024
- Новобудова
- 2 кімнати
- 4 поверх з 16
- Пропозиція від посередника
Опис від продавця
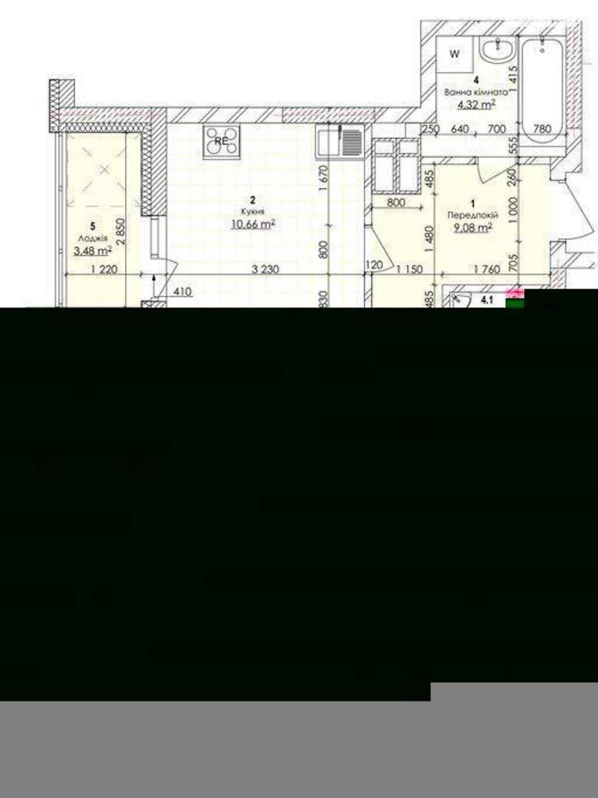
- Загальна площа 75 м² · житлова 40 м² · кухня 14 м²
- Стіни монолітно-каркасні
- Побудовано 2020
- Гарний краєвид
- 1-комнатная отличная квартира от ЖК комфорт-класса "Henesi House" по ул. Нагорная, 18/16 (Татарка-Шевченковский р-н, Киев). Секция 3, окна на Променаду. Квартира Общей площадью 67 кв.м., жилая 13, 7 кв.м. с выходом на лоджию (5 кв.м.), Полноценная кухня-студия 34 кв.м.
Квартира расположена на 15 этаже 16 этажного новостроя. Состояние от строителей (без отделочных работ).
Дом сдан.
ЖК "Henesi House" находится в микрорайоне по соседству с Киевским институтом международных отношений. Рядом спортивный центр с теннисным кортом, магазины, торговый центр и крупный сетевой супермаркет. В радиусе 600 м почта, аптеки, банковские и медицинские учреждения, две школы, детские сады. Неподалеку «Кирилловский гай» природный ландшафтный парк.
Подземный паркинг.
До ближайшего метро "Лукьяновская" - 20 минут пешком.
Продажа по переуступке.
Неподалік вулиці Тропініна, Татарська, Половецька, Кирилівська.
Номер оголошення на сайті компанії: SF-1-511-241-DR.
- Характеристика приміщення: стан квартири: без оздоблювальних робіт • утеплення: без утеплення
- Зовнішня обробка: обкладено цеглою
- Опалення: централізоване
- Підігрів води: централізований
- Приміщення: суміжний санвузол
- Обладнання • меблі • зручності: лічильник на воду • інтернет
- Під'їзд: кодовий замок • консьєрж • домофон
- Меблі: немає
- Розташування і оточення: тип двору: закритого типу (вхід, в'їзд обмежений)
- Особливості планування: балкон/лоджія
Оголошення неактуальне чи інформація неточна?
- Оголошення створене 14 дек. 2024 ·
- ID 27643516 ·
- Переглядів 0
- · Збережень в обране 0
Розташування ЖК Henesi-house
вул. Нагірна, 18/16
Лук'янівська
·
23 хв
Тараса Шевченка
·
29 хв
Почайна(Петрівка)
·
46 хв
Інформація про ЖК
Будинок
Підземний паркінг
Закрита територія
Відсутнє внутрішнє оздоблення
Монолітно-каркасний будинок
23 поверхи
Індивідуальне опалення
Стіни з газоблоку
Попередній договір купівлі-продажу квартири
Висота стелі 3 м
Клас комфорт
311 квартир
8.2 Загальний рейтинг | 7.9 Зони відпочинку | 9.1 Транспорт | 8.7 Інфраструктура | 7.9 Безпека | 7.4 Екологія |
| Читати всі 95 відгуків про район Лук'янівка | Додати відгук про район Лук'янівка | ||||
Користується попитом на DIM.RIA
Вас можуть зацікавити
Квартири у найближчих містах