











 Перевірене  фото  ·  1 із 12
    
 
  
                        Дивитися всі фото
                        
  
                        Дивитися на мапі
                        
Продаж 3к квартири 123.7 кв. м на вул. Микільсько-Слобідська 11 • ID 33599010
            ЖК вул. Євгена Маланюка (Сагайдака), 101
        
 
            Більше про новобудову
           173 444 $  за об'єкт   ·  7 319 337 грн   ·  1 402 $
        за м²
 
                    Перевірена новобудова
                
 Перевірено експертом DIM.RIA
 Звіт від 31 жов.
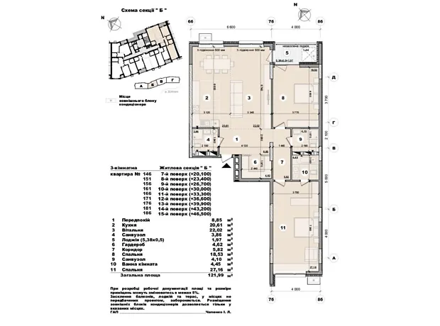
  -  3 кімнати · 7 поверх з 17
 -  Загальна площа 123.7 м²
 -  Стіни монолітно-каркасні
 -  Побудовано 2021
 -  Пропозиція від забудовника
 -  єВідновлення
 -  Новобудова
 
            Оголошення неактуальне чи інформація неточна?
        
  - Берег Русанівської протоки
 - Краєвиди на Дніпро
 - Підземний паркінг
 - Дитячі майданчики
 - Розвинена інфраструктура
 - Фітнес-центр на території
 
- Продається 3-кімнатна квартира безпосередньо від забудовника - Міськбудінвест. Функціональне планування 3-кімнатної квартири відмінно підійде для вашого затишку і дозвілля.
Площа 3-кімнатної квартири - 123.7 м². Квартира розташована на 7 поверсі 17-и поверхового будинку.
Новобудова знаходиться в районі з розвиненою інфраструктурою за адресою: Київ, рн Дніпровський, Микільсько-Слобідська, 11.
Найближчі станції метро: Лівобережна - 16 хвилин пішки, Гідропарк - 17 хвилин громадським транспортом, Дарниця - 17 хвилин громадським транспортом.
ЖК вул. Євгена Маланюка (Сагайдака), 101 відрізняється зручним розташуванням, оскільки в безпосередній близькості від нього є: навчальні заклади, школа, дитячий садок, лікарня, тц, ринок, магазини, паркові зони, транспортна розв'язка, наземний паркінг.
На даний момент в цьому об'єкті вже побудовано - 6 секцій. 
-  Характеристика приміщення: висота стелі, м: 2.7
 -  Опалення: без опалення
 
- Оголошення створене 9 жов. ·
 - ID 33599010 ·
 - Переглядів 0
 - · Збережень в обране 0
 
Квартири цього планування
        Вільно 1 квартира
    
 
                7 поверх
            
 
                173 180 $
                ·
                1 400 $ за м²
            
 
                Площа 123.7 м²
            
 Розташування ЖК вул. Євгена Маланюка (Сагайдака), 101
        вул. Євгена Маланюка(Сагайдака), 101
    
   Лівобережна
          ·  
        17 хв
            
  Гідропарк
          ·  
        18 хв
            
  Дарниця
          ·  
        18 хв
            
                        Інформація про ЖК
                    
 Будинок
  Підземний паркінг, наземний паркінг
 Відсутнє внутрішнє оздоблення
 Монолітно-каркасний будинок
 17-26 поверхів
 Автономне опалення: газова котельня
 Стіни з керамічної червоної цегли
 Утеплений мінеральною ватою
 Договір купівлі-продажу майнового права
 Висота стелі до 3 м
 Клас бізнес
 654 квартири
 
 
 
 
 
 
 
  | 
 7.2  Загальний рейтинг  |   7.4  Зони відпочинку  |  7.3  Транспорт  |  7.5  Інфраструктура  |  6.8  Безпека  |  7  Екологія  | 
| Читати всі 960 відгуків про район Дніпровський | Додати відгук про район Дніпровський | ||||
Користується попитом на DIM.RIA
 Вас можуть зацікавити
 Квартири у найближчих містах