










фото · 1 із 11

Дивитися всі фото
Дивитися на мапі
Продаж 1к квартири 44.4 кв. м на вул. Івана Дяченко 20В • ID 33532397
ЖК вул. Івана Дяченка (Бортничі), 20, 20а, 20б, 20в
Більше про новобудову
60 000 $ за об'єкт · 2 529 000 грн · 1 333 $
за м²
Перевірена квартира
продавець надав техпаспорт
Перевірено по техпаспорту
Дата останньої перевірки 24 вер.
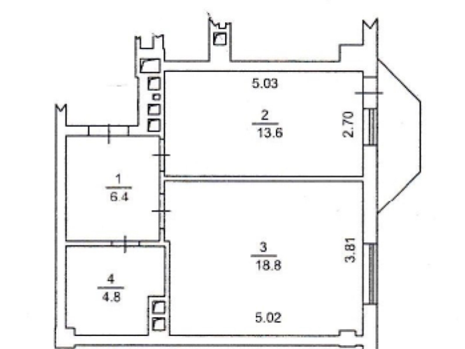
- Загальна площа 44.4 м² · житлова 18.8 м² · кухня 13.6 м²
- 1 кімната
- 5 поверх з 9
Опис від продавця
- 1 кімната · 5 поверх з 9
- Загальна площа 44.4 м² · житлова 18.8 м² · кухня 13.6 м²
- Стіни з цегли
- Побудовано 2011-2015
- Пропозиція від посередника
- Без комісії
- єВідновлення
- Вторинна нерухомість
- єОселя
- Укриття в будинку
- Спокійний район
- Вигідна ціна
- Без комісії!
Продаж 1-кімнатної квартири в Бортничах, вул. Дяченко 20в
Будинок 2009 року, 5/9 поверх
Загальна площа 45 м²
кімната 19 м²
кухня 13.5 м²
Квартира в чудовому стані:
металопластикові вікна
на підлозі ламінат
санвузол облицьований кахелем
пральна машина, бойлер
вбудована кухня з технікою
Можливе придбання за банківськими програмами:
ЄОселя, ЄВідновлення
Ціна: 60 000 $
Телефон: XXX XXX XX XX Дмитро
Без комісії для покупця!
- Вхід в будинок: Пандус
- Характеристика приміщення: висота стелі, м: 50 • стан квартири: хороший • утеплення: зовнішнє
- Оздоблення стелі: фарбування
- Підлога (покриття): керамічна плитка • ламінат
- Внутрішнє оздоблення: шпалери • кахель
- Зовнішня обробка: декоративна штукатурка
- Двері та вікна: тип вікон: металопластикові
- Опалення: централізоване
- Підігрів води: централізований • бойлер
- Приміщення: суміжний санвузол
- Обладнання • меблі • зручності: пральна машина • ванна • газова плита • шафа-гардероб • Вбудована кухня • диван • холодильник • лічильник на електрику • лічильник на воду • електрика • газ • інтернет • письмовий стіл
- Коли немає світла: є інтернет • є мобільний зв'язок • є водопостачання • працює опалення • є газ
- Розташування і оточення: тип двору: внутрішній
- Особливості планування: балкон/лоджія
- Ліфт: пасажирський ліфт
Оголошення неактуальне чи інформація неточна?
- Оголошення створене 24 вер. ·
- ID 33532397 ·
- Переглядів 0
- · Збережень в обране 0
Інформація про ЖК
Будинок
Підземний паркінг
Монолітно-каркасний будинок
6-7 поверхів
Централізоване опалення
Висота стелі 2.7 м
Клас економ
4.9 Загальний рейтинг | 5 Зони відпочинку | 5.2 Транспорт | 4.9 Інфраструктура | 4.8 Безпека | 4.5 Екологія |
| Читати всі 140 відгуків про район Бортничі | Додати відгук про район Бортничі | ||||
Користується попитом на DIM.RIA
Вас можуть зацікавити
Квартири у найближчих містах