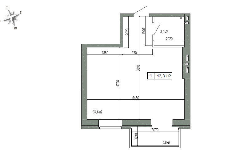
Пропонується на продаж 1-кімн. квартира в новобудові за адресою пр. Газети Правда 17а, загальною площею 42,3 кв.м.
Житловий комплекс розташований на закритій, облагородженої території.
ЖК Дніпра будується із цегли, утеплений базальтовою плитою і облицьований керамічною цеглою, опалення від дахової котельні, введення комунікацій до квартири з установкою лічильників гар. хол. води, тепло і електро- 380 В (день, ніч), металопластикові вікна REHAU 5 ти камерний профіль 2-х камерний енергозберігаючий склопакет, встановлені металеві двері. Є балкон, з вітражним склінням і установкою внутрішнім.

На першому поверсі розміщені паркінг, комори для мешканців та комерційні об'єкти, в яких будуть розташовуватися магазини, аптека та ін.
Вартість квартири 507 600 грн.
Приходьте або дзвоніть до нас в центр продажів, розташований за адресою:
Пр. Газети Правда (пр.Слобожанський), б. 13.
Тел. (068) 375-25-75, (050) 377-25-75
Прокоментуйте першим