





















фото · 1 из 22

Смотреть все фото
Смотреть на карте
Продажа 3к квартиры 141 кв. м на ул. Бориса Литвака 9, кв. 4 • ID 33667070
ЖК Виндзор
Больше о новостройке
175 000 $ за объект · 7 362 250 грн · 1 241 $
за м²
Описание от продавца
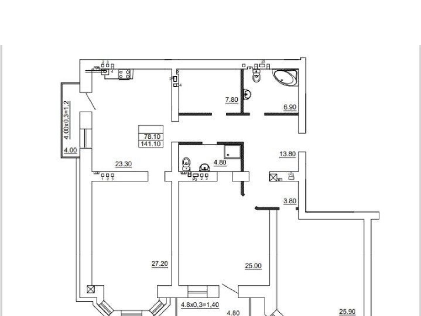
- Общая площадь 141 м² · жилая 78.1 м² · кухня 23.3 м²
- Стены из красный кирпич
- ДОМ СДАН!!!
Специальное предложение ЖК «ВИНДЗОР»!!!
Продается 3х комнатная квартира на 4м этаже 10ти этажного ДОМА ПРЕМИУМ СЕГМЕНТА.
ПЛОЩАДЬ квартиры 141, 10 кв.м., высота потолка 3 метра.
В квартире установлен индивидуальный двухконтурный газовый котел.
Оконные профиля немецкого производителя. Входные бронированные двери Итальянского производителя.
Дом построен из эффективного красного кирпича, толщина внешних стен 70 сантиметров, горизонтальная разводка труб, ДВЕ ЛИНИИ ЗАПИТКИ ДОМА ЭЛЕКТРИЧЕСТВОМ (ОТСУТСТВИЯ СВЕТА НЕТ), лифт SHINDLER (Австрия), баки с запасом воды на 2-3 суток.
Дом малоквартирный, на этаже по 4 квартиры.
Пол и лестницы в парадных выполнен из гранита. Европейская система кондиционирования. Ведется видеонаблюдение и охрана 24 часа в сутки!
Сам дом расположен в центральной тихой исторической части города, не далеко от центра - до Дерибасовской 15 минут.
Территориально рядом с домом находятся: Старобазарный, им. Витте, Прохоровский, Тираспольский, Преображенский скверы.
Продажа осуществляется без комиссии!
- Вход в дому: Пандус
- Характеристика здания: тип дома (серия): новый фонд
- Характеристика помещения: высота потолка, м: 3
- Пол (покрытие): стяжка
- Наружная отделка: обложено кирпичем
- Двери и окна: входная дверь: бронированная
- Отопление: индивидуальное газовое • двухконтурный котел
- Подогрев воды: двухконтурный котел
- Оборудование • мебель • удобства: счетчик на электричество • счетчик на газ • счетчик на воду • видеонаблюдение • электричество • газ • интернет
- Когда нет света: есть газ
- Подъезд: охранник • бронированная дверь • видеонаблюдение на территории • противопожарная система
- Мебель: нет
- Положение и окружение: тип двора: закрытого типа (вход, въезд ограничен)
- Лифт: пассажирский лифт
Объявление неактуально или информация неточна?
- Объявление создано 31 окт. ·
- ID 33667070 ·
- Просмотров 0
- · Сохранений в избранное 0
Информация о ЖК
Дом
Подземный паркинг
20 паркомест
Закрытая территория
Черновая внутренняя отделка
Кирпичный дом
9 этажей
Индивидуальное отопление
Стены из кирпича
Утепленный без утепления
Договор об уплате паевых взносов через кооператив
Высота потолков 3 м
Класс элитные
29 квартир
8.3 Общий рейтинг | 8.4 Зоны отдыха | 8.6 Транспорт | 8.5 Инфраструктура | 8 Безопасность | 7.9 Экология |
| Читать все 555 отзывов о районе Приморский | Добавить отзыв о районе Приморский | ||||
Пользуется спросом на DIM.RIA
Вас могут заинтересовать
Квартиры в ближайших городах