








  фото  ·  1 из 9
     
  
 Смотреть все фото Смотреть все фото
 Смотреть на карте Смотреть на карте
Продажа 2к квартиры 82.09 кв. м на ул. Андрея Верхогляда 1-20А • ID 33624823
   280 000 $  за объект   ·  11 779 600 грн   ·  3 411 $
        за м²
 
            Информация неточна?
        
        Продавец не подтвердил данные об этой недвижимости. Расскажите, что не так, и мы проверим
    
            Без проверки
        
Описание от продавца
 Продавец не подтвердил информацию об этом объекте (не заказывал проверку с представителем DIM.RIA, не отправлял видео или документы)
-  2 комнаты · 14 этаж из 26
-  Общая площадь 82.09 м² · жилая 35 м² · кухня 23.23 м²
-  Стены из монолита
-  Предложение от посредника
-  Комиссия за услуги 5 %
-  Вторичная недвижимость
- Оперативный показ
- Продажа квартир
 Светлая и просторная двухкомнатная квартира в современном ЖК "Новопечерские Липки".
 Жилой дом введен в эксплуатацию и подключены все коммуникации.
 Дом 4, 7-я очередь строительства.
 Большим преимуществом квартиры является свободное пространство, которое дает возможность сделать ремонт и распределить планировку квартиры по наилучшему собственному дизайнерскому проекту.
 Из окон квартиры открывается невероятный вид на город.
 Готовый дизайнерский проект
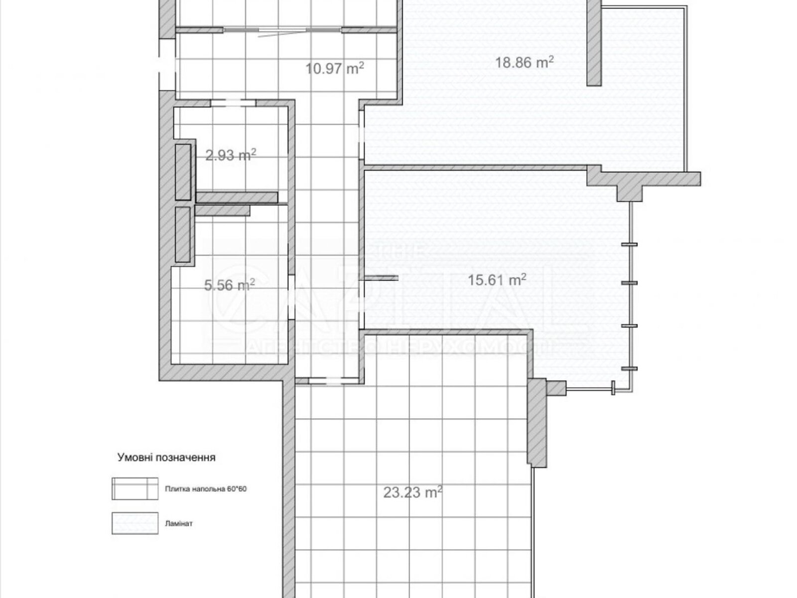
 Планировка квартиры:
 Общая площадь - 82.09 квадратных метров.
 Кухня - 23.23 квадратных метров.
 Спальня - 18.86 квадратных метров.
 Спальня - 15.61 квадратный метр.
 Гардеробная комната - 4.93 квадратных метров.
 Коридор - 10.97 квадратных метров.
 Ванная комната - 5.56 квадратных метров.
 Санузел - 2.93 квадратных метров
 Большие панорамные окна квартиры дают много солнечного света в любое время года.
 Новопечерские Липки жилой комплекс класса бизнес с постоянной охраной, имеющий собственную очень развитую инфраструктуру, а именно:
 Большое количество парков и скверов.
 SPA фитнес-центр с бассейном.
 Спортивный комплекс для футбола, баскетбола и большого тенниса.
 Британская школа.
 Подземная парковка
 Рестораны, салоны красоты и отделения банков.
 Приглашаем на просмотр!
 # A 2 2 4 8 4
-  Особенности планировки: кухня-студия
-  Характеристика помещения: высота потолка, м: 3 • состояние квартиры: без отделочных работ • утепление: внешнее
-  Отделка потолка: без обработки
-  Пол (покрытие): без отделки
-  Отопление: централизованное
-  Подогрев воды: централизованный
-  Помещения: гардероб • 2 санузла
-  Оборудование • мебель • удобства: ванна • счетчик на электричество • счетчик на воду • электричество
-  Когда нет света: есть мобильная связь
-  Подъезд: домофон
-  Мебель: нет
-  Положение и окружение: тип двора: закрытого типа (вход, въезд ограничен)
-  Особенности планировки: панорамные / витринные окна
-  Уникальные преимущества: Кухня-студия
-  Внутренняя отделка: без отделки
- Объявление создано 17 окт. ·
- ID 33624823 ·
- Просмотров 0
- · Сохранений в избранное 0
Пользуется спросом на DIM.RIA
 Вас могут заинтересовать
 Квартиры в ближайших городах
 