






























  фото  ·  1 из 31
    
 
  
                        Смотреть все фото
                        
  
                        Смотреть на карте
                        
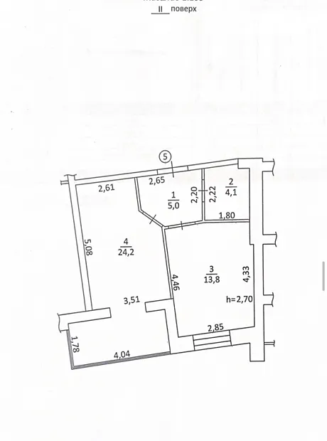
Продажа 1к квартиры 47.1 кв. м на ул. Тетеревский Бульвар 18 • ID 33662896
            ЖК Тетеревский Бульвар
        
 
            Больше о новостройке
           42 300 $  за объект   ·  1 785 060 грн   ·  898 $
        за м²
 Описание от продавца
 -  Общая площадь 47.1 м² · жилая 24.2 м² · кухня 14 м²
 -  Стены из кирпича
 
- Рядом с парком
 - Оперативный показ
 - Выгодная цена
 
- Жизнь в гармонии с природой это
ЖК «Тетеревский бульвар»
Продам квартиру, где просыпаешься под пение птиц и запах соснового леса.
Дом ЗДАНИЙ в Эксплуатацию в 2020 году.
Преимущества квартиры:
Площадь: 47 м²
Этаж: 2-й (комфортный)
Удобная, продуманная планировка
Автономное отопление двухконтурный газовый котел (тепло тогда, когда нужно именно вам)
Дом из красного кирпича тёплый зимой и прохладный летом.
Окна выходят во двор на детскую площадку.
Панорамные окна - закат солнца прямо из окна.
«Тетеринский бульвар» это не просто жилье, это стиль жизни:
идеальное место для пробежки, прогулок с детьми и собакой на свежем воздухе.
Рядом лес, река, а до центра города лишь несколько минут.
Дизайн-проект в ПОДАРОК!
Право собственности более 3 лет.
Свободная продажа
Звоните для записи на просмотр.
Предложение от агентства недвижимости. 
-  Вход в дому: Пандус
 -  Вход в дом: Вход без порогов • Вход шириной более 90 см
 -  Характеристика здания: тип дома (серия): индивидуальный проект
 -  Характеристика помещения: высота потолка, м: 2.8 • утепление: внешнее
 -  Наружная отделка: декоративная штукатурка
 -  Отопление: индивидуальное газовое
 -  Подогрев воды: двухконтурный котел
 -  Оборудование • мебель • удобства: счетчик на электричество • счетчик на газ • счетчик на воду
 -  Положение и окружение: тип двора: закрытого типа (вход, въезд ограничен)
 -  Особенности планировки: панорамные / витринные окна • балкон/лоджия
 
            Объявление неактуально или информация неточна?
        
  - Объявление создано 30 окт. ·
 - ID 33662896 ·
 - Просмотров 0
 - · Сохранений в избранное 0
 
                        Информация о ЖК
                    
 Дом
  Автостоянка
 Отсутствует внутренняя отделка
 Кирпичный дом
 12 этажей
 Автономное отопление
 Стены из керамического красного кирпича
 Предварительный договор купли-продажи квартиры
 Высота потолков 2.78 м
 Класс комфорт
 168 квартир
 
 
 
 
 
 
  | 
 8.3  Общий рейтинг  |   9  Зоны отдыха  |  7.3  Транспорт  |  7.2  Инфраструктура  |  8.5  Безопасность  |  9.4  Экология  | 
| Читать все 120 отзывов о районе Корбутовка | Добавить отзыв о районе Корбутовка | ||||
Пользуется спросом на DIM.RIA
 Вас могут заинтересовать
 Квартиры в ближайших городах