










фото · 1 из 11

Смотреть все фото
Смотреть на карте
Продажа 2к квартиры 67 кв. м на ул. Княгинин 44 • ID 33570526
Жилой район Княгинин
Больше о новостройке
51 900 $ за объект · 2 192 775 грн · 775 $
за м²
Перевірена квартира
Проверено по видеозвонку
Отчет от 22 жов.
- Новостройка
- 9 этаж из 12
- Предложение от посредника
- Без комиссии
Описание от продавца
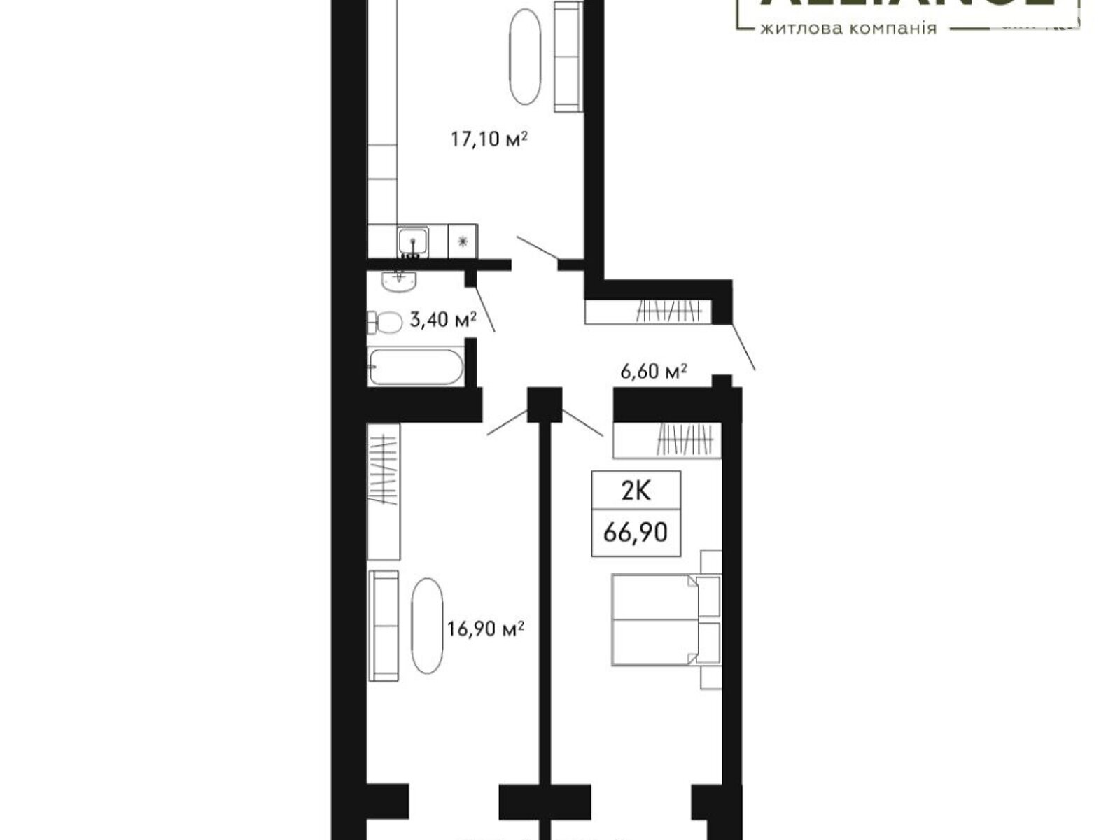
- Общая площадь 67 м² · жилая 37 м² · кухня 17 м²
- Стены из кирпича
- Красивый вид
- В центре
- Выгодная цена
- Продается большая 2 км квартира в готовой секции в центральной части города.
Квартира площадью 67м2 имеет хорошую планировку, двусторонняя и полностью внутренняя.
Кухня имеет площадь 17м2 и французский балкончик с видом во внутренний двор. Комнаты большие и просторные с лоджиями.
Квартира имеет невероятный вид на Вовчинецкие горы и город. Индивидуальное газовое отопление. Можно приступать к черновой ремонтной работе.
Жилой комплекс расположен рядом с Пионерским парком, всего в 5 минутах от центра города.
Для вашего удобства и безопасности:
- Закрытый двор
- Подземная парковка
- Видеонаблюдение территории
Идеальный вариант для тех, кто ищет современное и комфортное жилье рядом с центром.
За подробной информацией и обзором - звоните.
- Характеристика здания: тип дома (серия): новый фонд
- Характеристика помещения: высота потолка, м: 2.75 • состояние квартиры: черновая штукатурка • утепление: внешнее
- Отделка потолка: без обработки
- Пол (покрытие): без отделки
- Коммуникации: газ: есть • Телевидение: кабельное • интернет: проводной • вентиляция / кондиционирование: нет (природная)
- Вода: центральный водопровод
- Двери и окна: входная дверь: бронированная • количество камер стеклопакета: 4 • защита окон: нет • фасадных окон: 2
- Отопление: индивидуальное газовое • двухконтурный котел
- Подогрев воды: двухконтурный котел
- Помещения: санузел: совмещенный • лоджия: 1 • балкон(ы): нет • совмещенный санузел
- Оборудование • мебель • удобства: плазменный телевизор • сушилка для белья • счетчик на электричество • счетчик на газ • счетчик на воду • охранная сигнализация • видеонаблюдение • электричество • газ • интернет
- Когда нет света: есть мобильная связь • есть водоснабжение • есть газ
- Подъезд: кодовый замок • охранник • домофон • видеонаблюдение • бронированная дверь • видеонаблюдение на территории
- Мебель: нет
- Положение и окружение: тип двора: внутренний • охраняемый район
- Внутренняя отделка: черновая штукатурка
- Особенности планировки: панорамные / витринные окна • балкон/лоджия
- Уникальные преимущества: Кухня-студия
Объявление неактуально или информация неточна?
- Объявление создано 22 жов. ·
- ID 33570526 ·
- Просмотров 0
- · Сохранений в избранное 0
Информация о ЖК
Дом
Подземный паркинг
130 паркомест
Двор без машин
Черновая внутренняя отделка
Кирпичный дом
14 этажей
Индивидуальное газовое отопление
Стены из керамического красного кирпича
Утепленный пенополистиролом
Договор об уплате паевых взносов через кооператив
Высота потолков 2.75 м
Класс комфорт
631 квартира
|
6.2 Общий рейтинг | 6 Зоны отдыха | 6.8 Транспорт | 5.5 Инфраструктура | 7 Безопасность | 5.5 Экология |
| Читать все 40 отзывов о районе Княгинин | Добавить отзыв о районе Княгинин | ||||
Пользуется спросом на DIM.RIA
Вас могут заинтересовать
Квартиры в ближайших городах