

























  фото  ·  1 из 26
    
 
  
                        Смотреть все фото
                        
  
                        Смотреть на карте
                        
Продажа 1 этажного дома с участком на 4.5 сотки, 100 кв. м, 3 комнаты, на ул. Успешная • ID 33660306
   90 000 $  за объект   ·  3 798 000 грн   ·  900 $
        за м²
 
            В процессе проверки
        
Сейчас DIM.RIA ждет данных от продавца
 Продавец сообщил, что готов пройти проверку на DIM.RIA. Как только получим документы или видео об этом объекте – сразу все расскажем тебе.
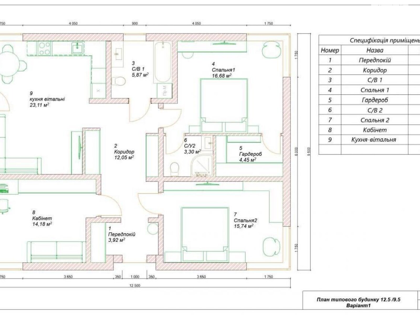
-  3 комнаты · 1 этаж
 -  Общая площадь 100 м² · жилая 45 м² · кухня 30 м²
 -  Участок 4.5 сотки
 -  Стены из кирпича
 -  Построен в 2024
 -  Кадастровый номер 3222485200:06:xx4:0xxx
 -  Предложение от посредника
 -  Без комиссии
 -  Новостройка
 
Описание от продавца
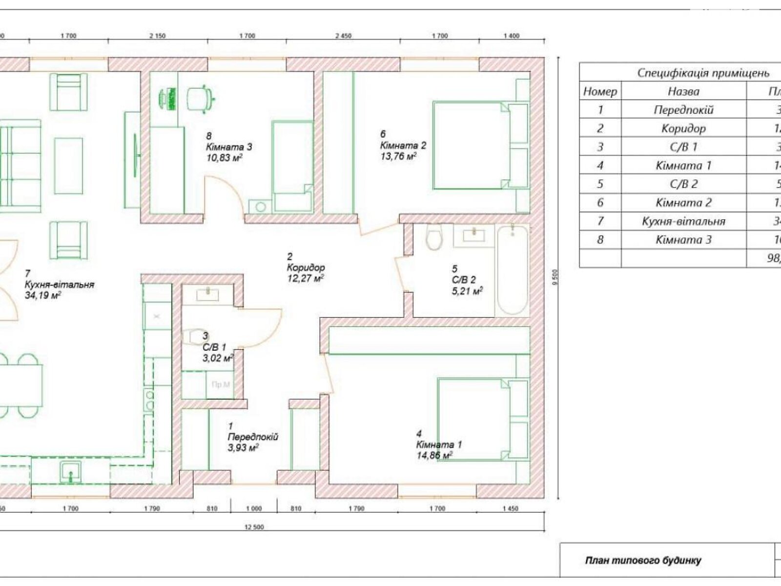
  - Одноэтажные дома!
пгт.Ворзель, ул.Успешная
100 кв.м. 3 комнаты, кухня-студия с выходом на задний двор, 2 с/в, гардеробная. Черновая стяжка. 5 ТИПОВ ПЛАНИРОВКИ,
Материал строительства газоблок, утепленный пенопластом. Крыша металлочерепица, утепление кровли мин. вата.
Отопление газ, электроэнергия 13 кВт.
Скважина, септик.
Участок 4.5 сотки (вымощенная парковка для 2-3 авто). Рассматриваем все гос. программы.
Оформление возможно на первого владельца.
Лесная часть Ворзеля. Рядом (800м.) детский садик, школа, продуктовые магазины, озеро, железнодорожный вокзал.
Перед показом фиксируем клиентов.
90000 (на этапе строительства) и 97000 долл. готовы. 
-  Характеристика здания: состояние дома: без отделочных работ
 -  Характеристика помещения: утепление: внешнее
 -  Отопление: электрическое
 -  Подогрев воды: нет
 -  Помещения: 2 санузла
 -  Оборудование • мебель • удобства: электричество • газ
 
            Объект не такой, как в описании?
        
        Расскажи нам, что не так – мы все проверим
    - Объявление создано 29 жов. ·
 - ID 33660306 ·
 - Просмотров 0
 - · Сохранений в избранное 0