
















































фото · 1 из 49

Смотреть все фото
Смотреть на карте
Продажа 2 этажного дома с участком на 10 соток, 232 кв. м, 5 комнат, на ул. Майская • ID 33576626
КГ ProЦвіт Village
Больше о новостройке
487 200 $ за объект · 20 681 640 грн · 2 100 $
за м²
Перевірений будинок
Проверено по видеозвонку
Отчет от 3 окт.
- Новостройка
- 5 комнат
- Участок 10 соток
- Предложение от посредника
- С бассейном
Описание от продавца
- Общая площадь 232 м² · жилая 113.7 м² · кухня 32.9 м²
- Стены из кирпича
- Возле леса
- Выгодная цена
- Предлагается в продаже дом в КМ PROцвіт Village всего в 20 минутах от Киева - элитный коттеджный городок на въезде в живописное село Процвит! (Бориспольский район)
Общая площадь дома: 232м2
Стены:
Облицовка HPL-панелями - 10мм
теплоизоляция из минераловатных плит-100мм
Кирпичная стена-380мм
Есть вся проектная документация, по запросу отправим.
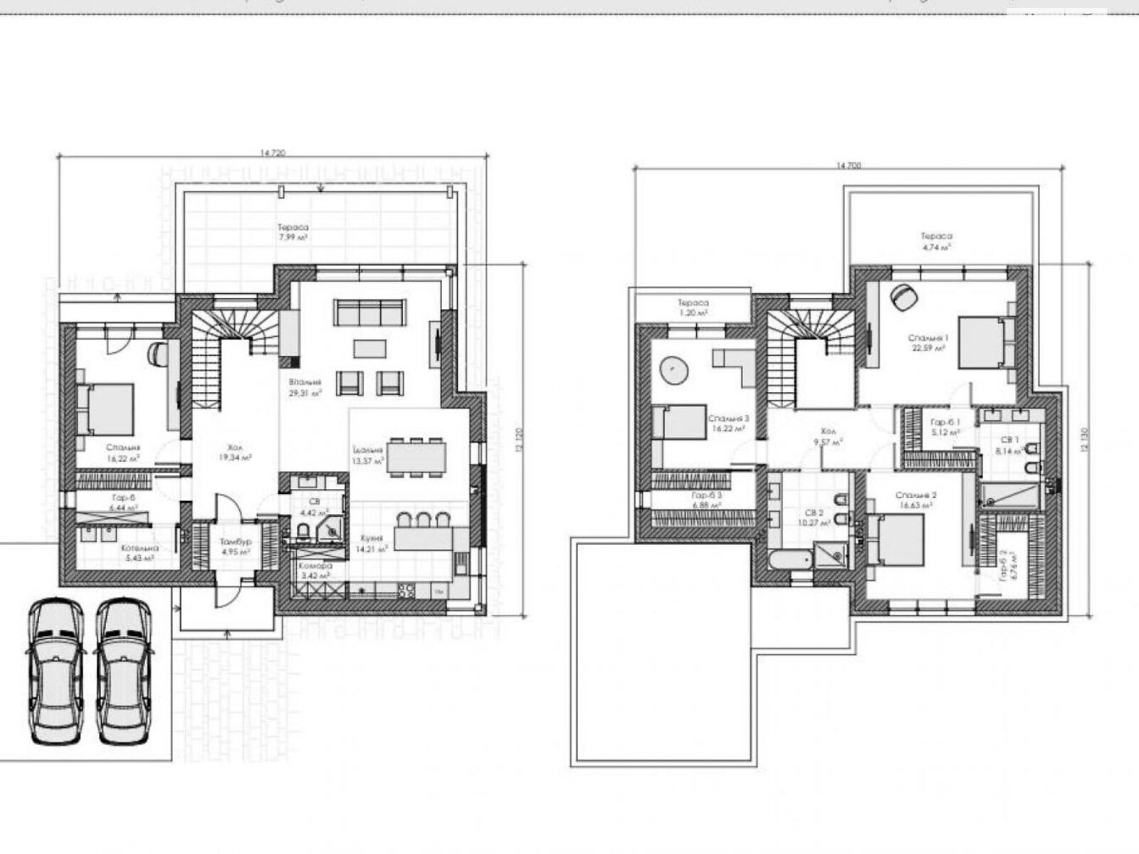
Планирование:
1 этаж 123.5м2:
Тамбур - 5.0 м2
гар-б - 7, 0 м2
Кладовая - 3.4м2
Котельная - 5.0
Холл - 19.1 м2
Кухня 14, 2м2
Столовая 17.7 м2
Гостиная 23.6м2
Санузел 4, 4м2
Спальня 16, 0 м2
Терраса 2, 4м2
Терраса2 - 4.7м2
2 этаж 108.5м2:
Холл - 9, 6м2
Спальня1 - 22.6
Гардероб1 - 6.8
С/в1 - 8, 1м2
Спальня 2 16, 6м2
Гар-б2 6.8м2
С/в2 - 10.3
Спальня 3 16, 2м2
Гар-б3 6, 7м2
Терраса 1, 8м3
Терраса2 4, 7м3
Коммуникации:
Вода централизованная
Канализация централизованная.
Газ установленный на участке.
К дому подключено электроснабжение 15кВк, канализация/вода, интернет.
На территории 38 домов, где каждый коттедж это произведение искусства, воплощающее в себе стиль и изысканность. 200 гектаров леса окружают этот городок, создавая атмосферу уединения и покоя.
Вас ждут чудесные развлечения прямо на территории городка: роскошный бассейн для утренних освежающих плаваний, ресторан высокой кухни, теннисные корты для любителей спорта, детские площадки для малышей и тренажерный зал, чтобы поддерживать свою форму прямо здесь.
Территория, которая охраняется, гарантирует ваше спокойствие и безопасность. Здесь вы сможете наслаждаться свободой и приватностью, зная, что ваш дом ежедневно наполнен радостью и гармонией.
Не пропустите возможность стать частью этого модного города PRОцвіт Village. Ваш дом ждет вас здесь, в окружении природы и роскоши. Здесь ваша жизнь будет насыщена умиротворением природы и роскошью современных удобств.
Возможна рассрочка на год без %.
#3159.1735.2373
- Характеристика здания: состояние дома: без отделочных работ
- Характеристика помещения: утепление: внешнее
- Вода: центральный водопровод
- Отопление: централизованное
- Подогрев воды: централизованный
- Когда нет света: есть интернет • есть мобильная связь
- Подъезд: бронированная дверь
- На территории есть: персональный водоем: бассейн
- Мебель: нет
- Особенности планировки: панорамные / витринные окна • терраса
- Оборудование • мебель • удобства: электричество • газ • центральная канализация
Объявление неактуально или информация неточна?
- Объявление создано 3 окт. ·
- ID 33576626 ·
- Просмотров 0
- · Сохранений в избранное 0
Информация о ЖК
Дом
Наземный паркинг
Закрытая территория
Черновая внутренняя отделка
Монолитно-каркасный дом
2 этажа
Индивидуальное газовое отопление
Стены из керамоблока
Утепленный вентиляционной фасадной системой
Договор об уплате паевых взносов через кооператив
Высота потолков 3 м
Класс бизнес
38 домов
|