














фото · 1 из 15

Смотреть все фото
Смотреть на карте
Продажа 1 этажного дома с участком на 5 соток, 101 кв. м, 4 комнаты, на ул. Довженко • ID 33776284
85 000 $ за объект · 3 604 000 грн · 842 $
за м²
Перевірений будинок
Проверено по видеозвонку
Отчет от 3 дек.
- Вторичная недвижимость
- 4 комнаты
- Участок 5 соток
- Предложение от посредника
Описание от продавца
- Общая площадь 101 м²
- Стены из кирпича
- Сдача в 2025
- Комиссия за услуги 5 %
- єВідновлення
- єОселя
- Возле леса
- Продается дом возле Киева.
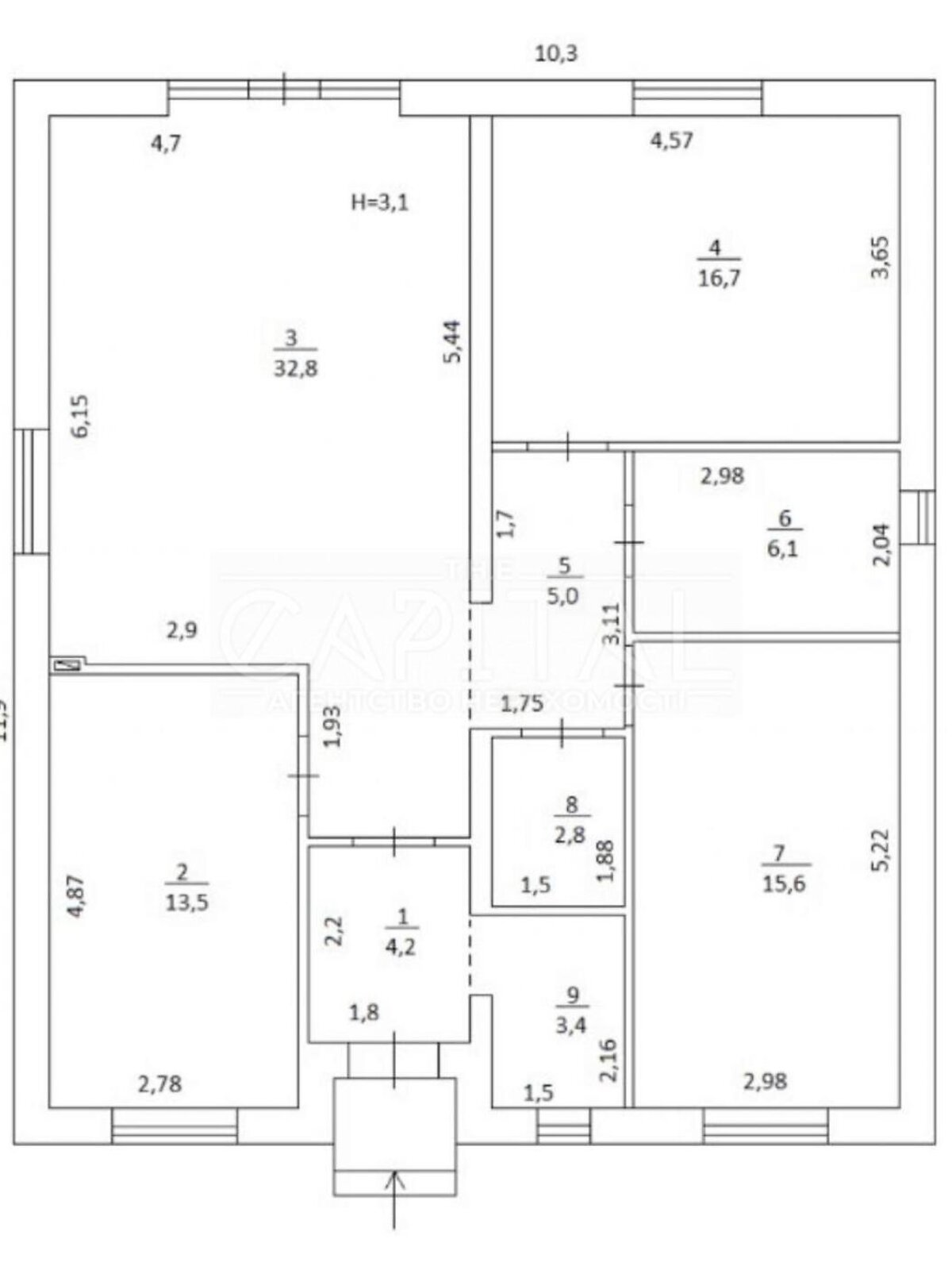
Площадь дома: 101 м²
Участок: 4.7 сотки
Дом из керамоблока и утепление пенопластом 10 см.
Коммуникации:
Септик 10 м³
Собственная скважина 35-40 м
Электричество 10 кВт
Газ по улице, по желанию можно подключить.
Планирование:
3 жилые комнаты: 14 м², 16 м², 17 м²
Просторная кухня-гостиная 33 м²
2 санузла
Техническая комната
Преимущества локации:
Тихая, зеленая улица вблизи леса.
Очень удобный и быстрый выезд на трассу в г. Киеве
Государственные программы ДА!
- Характеристика здания: состояние дома: без отделочных работ
- Коммуникации: канализация: септик
- Вода: скважина
- Помещения: количество спален: 2 • гостиная
Объявление неактуально или информация неточна?
- Объявление создано 3 дек. ·
- ID 33776284 ·
- Просмотров 0
- · Сохранений в избранное 0