






фото · 1 из 7

Смотреть все фото
Смотреть на карте
Продажа 2 этажного дома с участком на 6.55 сотки, 230 кв. м, 6 комнат, на Нова Олександрівка • ID 33700035
99 500 $ за объект · 4 208 850 грн · 433 $
за м²
В процессе проверки
Сейчас DIM.RIA ждет данных от продавца
Продавец сообщил, что готов пройти проверку на DIM.RIA. Как только получим документы или видео об этом объекте – сразу все расскажем тебе.
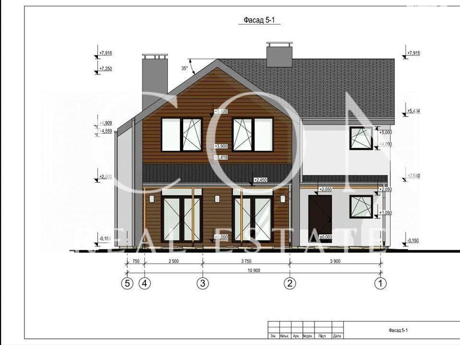
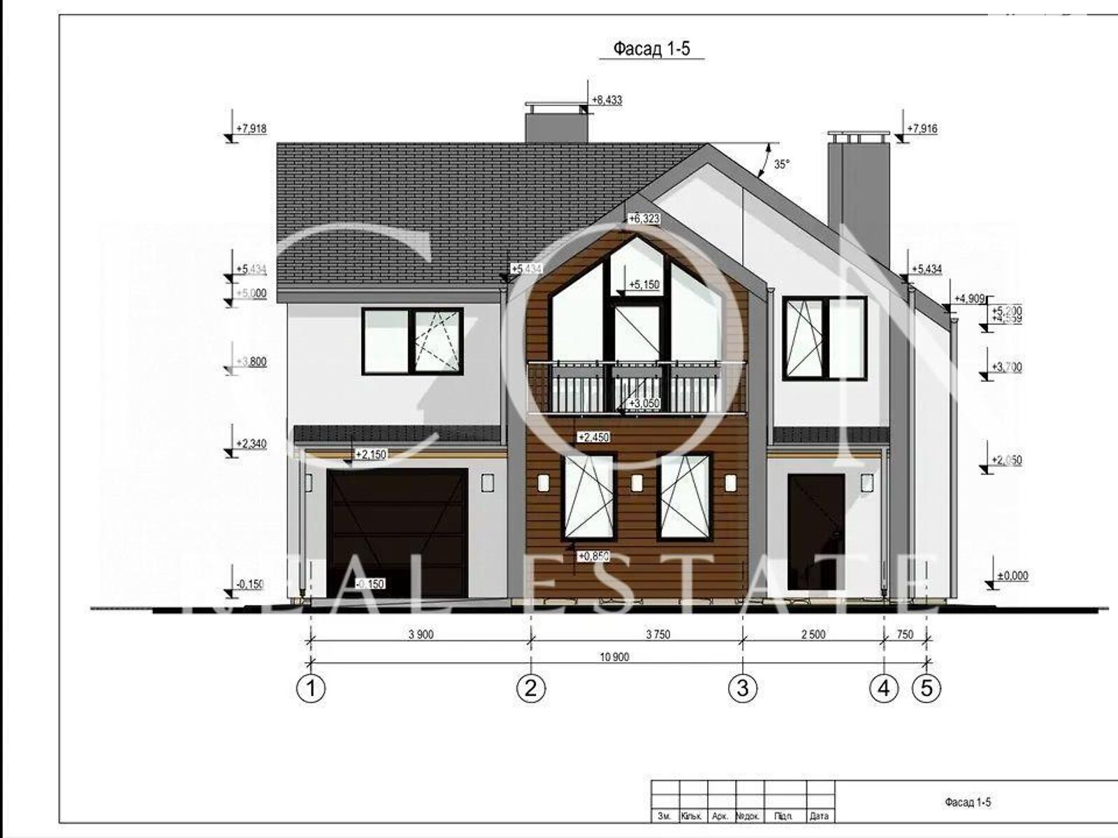
- 6 комнат · 2 этажа
- Общая площадь 230 м²
- Участок 6.55 сотки
- Стены из кирпича
- Предложение от посредника
- Вторичная недвижимость
Описание от продавца
- Продается дом 230 кв.м. в коттеджном городке "Нова Олександрівка". Закрытая территория (шлагбаум, стационарный пункт охраны), охрана и видеонаблюдение по всему городку, асфальтированные дороги, детские и спортивные площадки, почтомат Новой пошты, остановка автобуса, продуктовые магазины. Рядом, озеро и лес.
14 км. (10 мин.) до метро Бориспольская по Бориспольской трассе.
Дом расположен на участке 6, 55 соток.
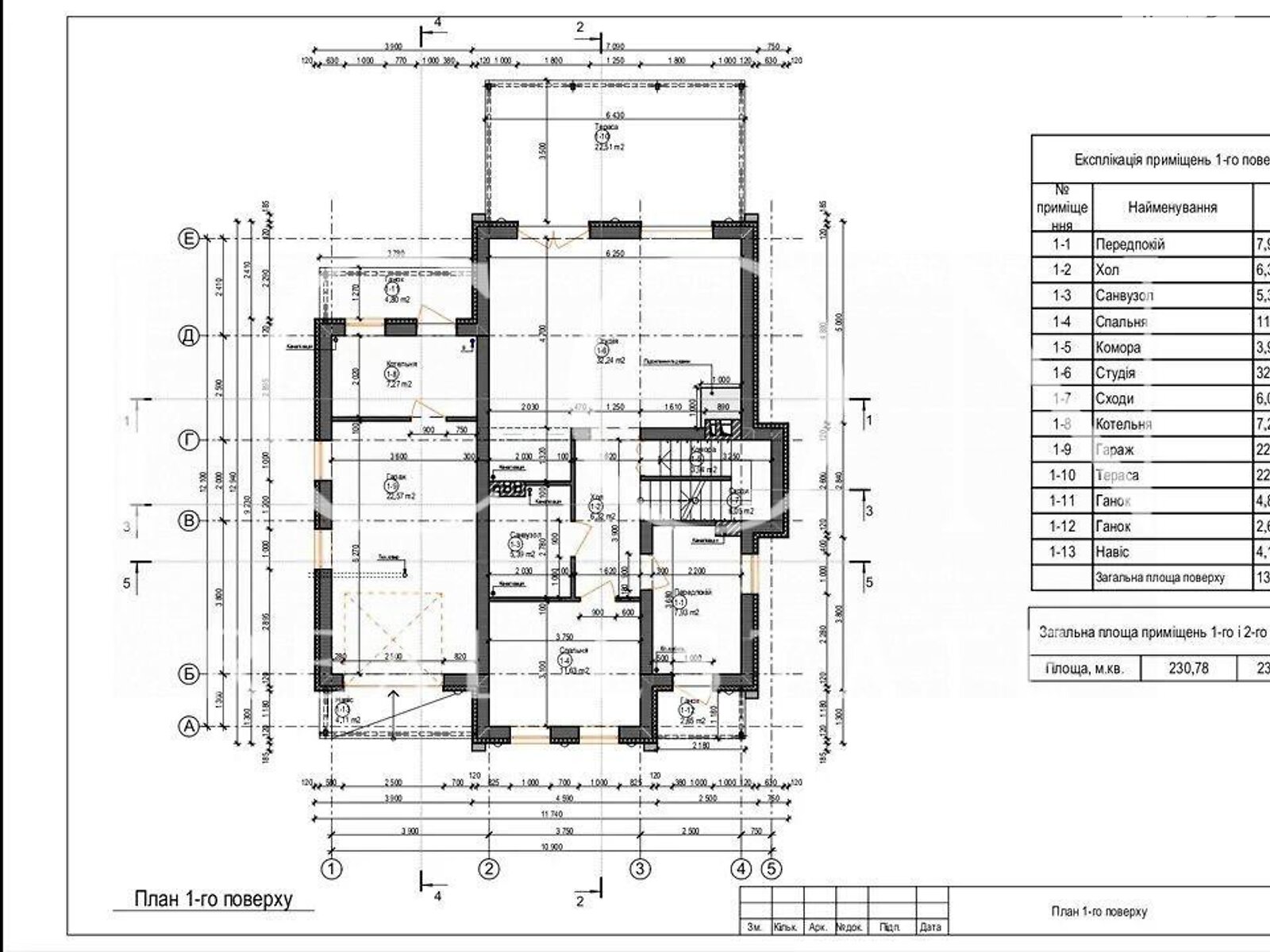
Дом имеет кухню-гостиную, кабинет/гостевую спальню, 4 спальни, 3 санузла, 2 гардеробные, кладовую, гараж, котельную и большую террасу.
Первый этаж:
Кухня-гостиная - 32, 24 кв.м.
Санузел - 5, 39 кв.м.
Кабинет - 11, 63 кв.м.
Прихожая - 7.93 кв.м.
Холл - 6, 32 кв.м.
Кладовая - 3, 24 кв.м.
Гараж - 22, 57 кв.м.
Котельная - 7, 27 кв.м.
Терраса - 22, 51 кв.м.
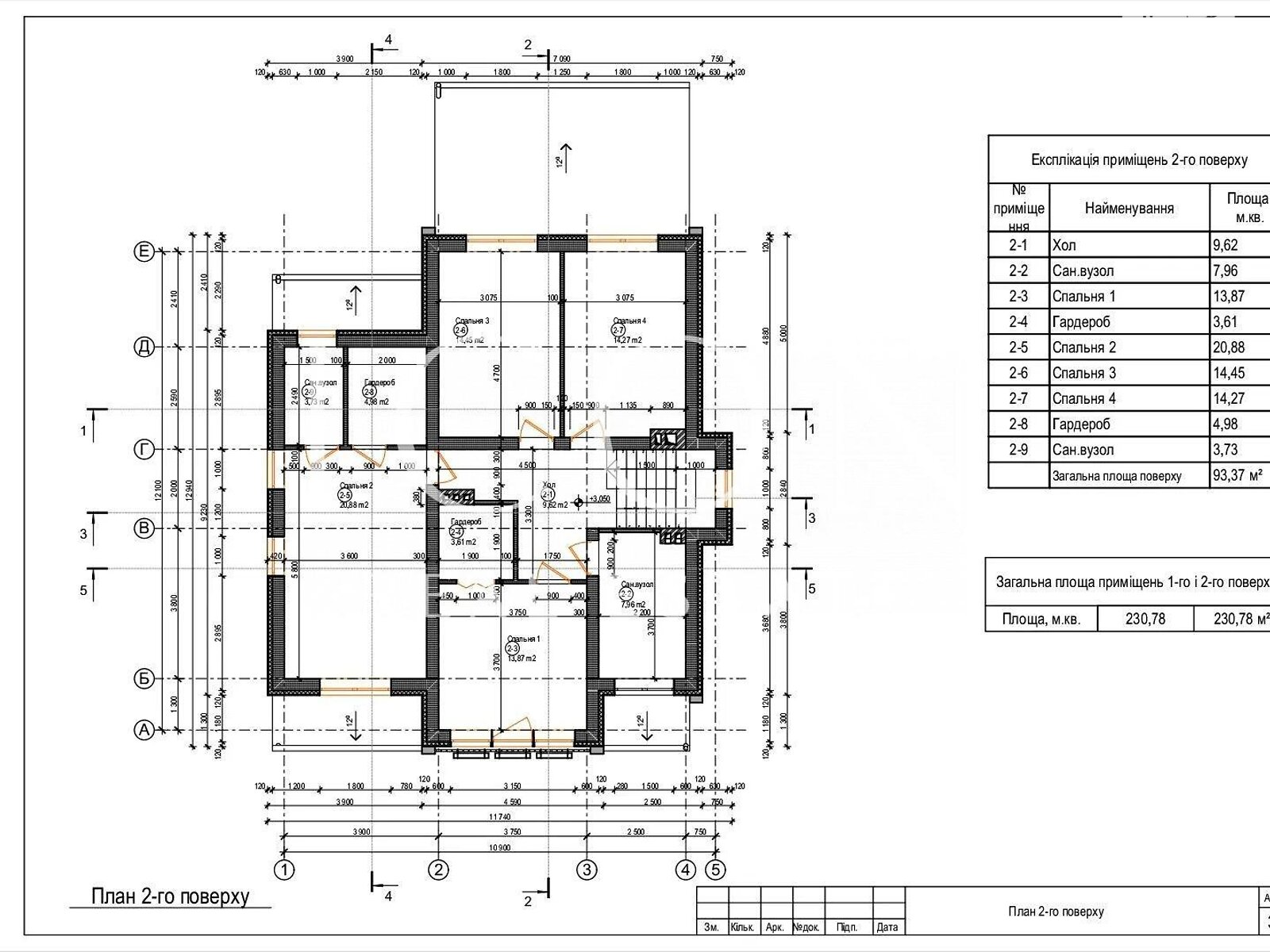
На втором этаже:
Спальня 1 - 13, 87 кв.м.
Спальня 2 - 14, 27 кв.м.
Спальня 3 - 14, 45 кв.м.
Санузел - 7, 96 кв.м.
Гардеробная - 3, 61 кв.м.
Холл - 9, 62 кв.м.
Спальня 4 - 20.88 кв.м.
Санузел - 5, 73 кв.м.
Гардеробная - 2, 98 кв.м.
В дом подведены все коммуникации: электричество, вода, канализация, интернет.
Септик на 2 колодца (3 кольца диаметром 2 м каждое) с дренажным полем 40 кв.м. и фоновой трубой.
Бетонная лестница на 2 этаж.
Дополнительно построенный дымоход и укреплённый фундамент в котельной под твердотопливный котел.
Дождевой водоотвод (выведен в дренажное поле).
Откатные автоматические алюминиевые ворота и калитка.
Дом планировался для себя, все продумано до мелочей, строился на годы из качественных материалов. Доработанный проект (улучшено много деталей - на фото не видно).
Есть фото всех этапов строительства.
Цена за недостроенное состояние, как на фото. Продаю по себестоимости. Разрешение на строительство и строительный паспорт оформлены официально. Адрес предоставлен.
#1853
- Характеристика здания: состояние дома: без отделочных работ
- Отопление: газовое
Объект не такой, как в описании?
Расскажи нам, что не так – мы все проверим
- Объявление создано 10 ноя. ·
- ID 33700035 ·
- Просмотров 0
- · Сохранений в избранное 0