














  фото  ·  1 из 15
    
 
  
                        Смотреть все фото
                        
  
                        Смотреть на карте
                        
Продажа 1 этажного дома с отоплением и участком на 5 соток, 100 кв. м, 3 комнаты, на ул. Лекарственная • ID 33649559
   99 000 $  за объект   ·  4 177 800 грн   ·  990 $
        за м²
 
                Перевірений будинок
            
  Проверено по видеозвонку
 Отчет от 28 окт.
 -  Новостройка
 -  3 комнаты
 -  Участок 5 соток
 -  Предложение от представителя застройщика
 -  Без комиссии
 -  С отоплением
 
Описание от продавца
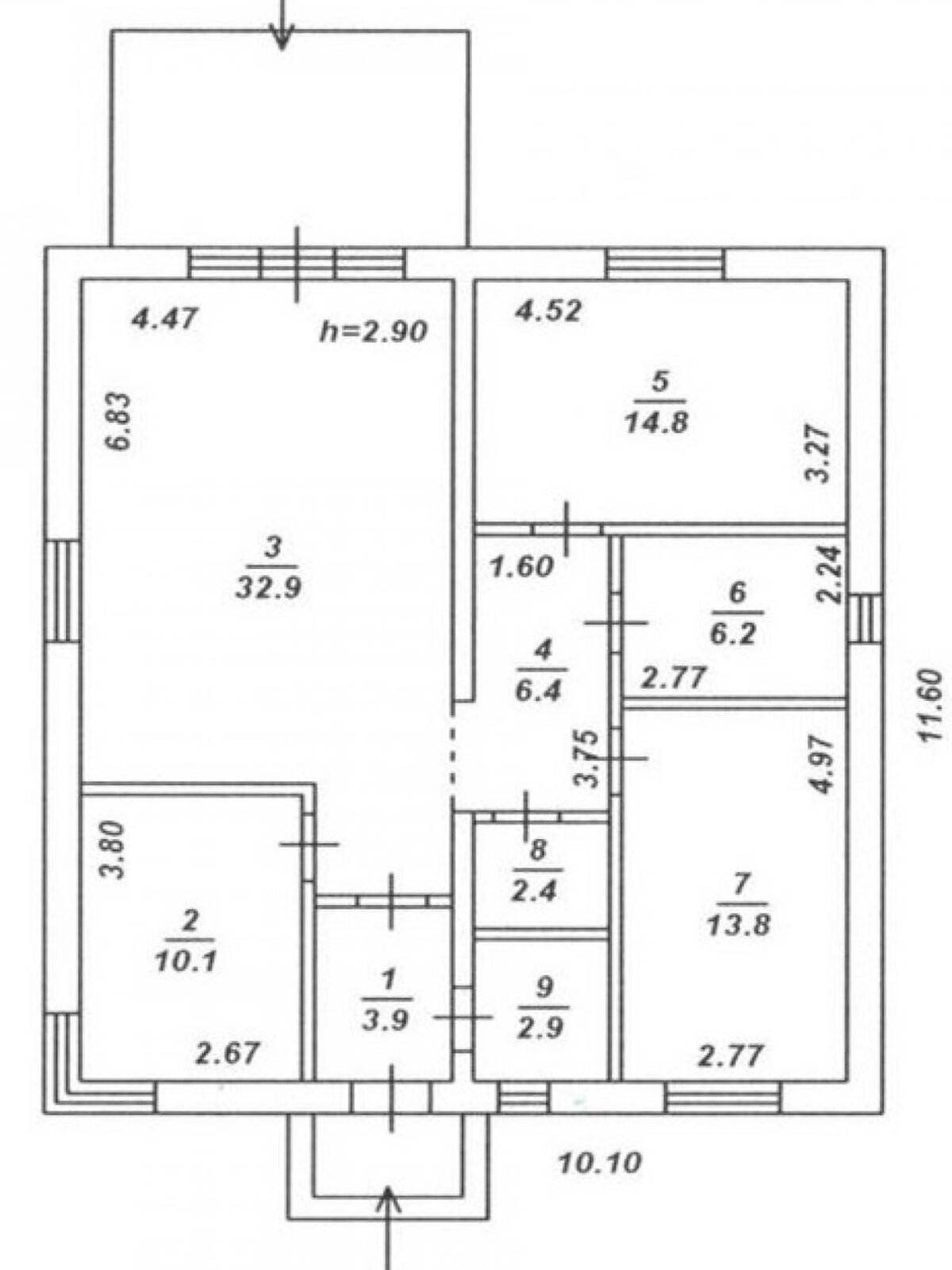
 -  Общая площадь 100 м² · жилая 41 м² · кухня 34 м²
 -  Стены из керамического блока
 -  Сдача в 2025
 
- С участком
 - Возле леса
 - Спокойный район
 
- Продам кирпичный одноэтажный дом с газом!
Дом расположен в одной из самых лучших локаций Белогородки (Шевченково). Асфальтированный заезд, рядом несколько продуктовых магазинов, быстрый выезд на Житомирскую трассу.
В доме 3 комнаты, 2 санузла, котельная. Отопление газовое.
Коммуникации: газ, электричество 7кВт, скважина, септик.
Дом расположен на участке 5 соток. Придомовая территория огорожена, отмостка и место для парковки залиты бетоном и подготовлены под укладку тротуарной плитки. 
-  Жилье: Душ без ступеней
 -  Вход в дом: Вход без порогов
 -  Двор: Автоматические ворота
 -  Характеристика здания: состояние дома: отличное • перекрытие: деревянное • крыша: металлочерепица
 -  Характеристика помещения: высота потолка, м: 2.8 • утепление: внешнее
 -  Отделка потолка: без обработки
 -  Пол (покрытие): стяжка
 -  Коммуникации: канализация: септик
 -  Вода: скважина
 -  Отопление: двухконтурный котел • газовое
 -  Подогрев воды: бойлер • двухконтурный котел
 -  Помещения: количество спален: 3 • гараж: нет • котельная / бойлерная • 2 санузла
 -  Когда нет света: есть интернет • есть мобильная связь • есть газ
 -  Подъезд: бронированная дверь
 -  На территории есть: дорожки: тротуарная плитка • забор
 -  Мебель: нет
 -  Особенности планировки: панорамные / витринные окна • терраса
 -  Уникальные преимущества: Индивидуальное отопление • С отоплением • скважина
 -  Оборудование • мебель • удобства: электричество • газ • интернет • канализация септик
 
            Объявление неактуально или информация неточна?
        
  - Объявление создано 28 окт. ·
 - ID 33649559 ·
 - Просмотров 0
 - · Сохранений в избранное 0