











фото · 1 из 12

Смотреть все фото
Смотреть на карте
Снять офисное помещение на ул. Николая Пимоненко 13, помещений - 4, этаж - 5 • ID 24152883
236 040 грн · 5 600 $
Перевірений офіс
Проверено по видеозвонку
Отчет от 27 май.
- Вторичная недвижимость
- 4 помещения
- 5 этаж из 6
- Предложение от посредника
Описание от продавца
- Бизнес-центр
- Общая площадь 380 м²
- Укрытие в доме
- В центре
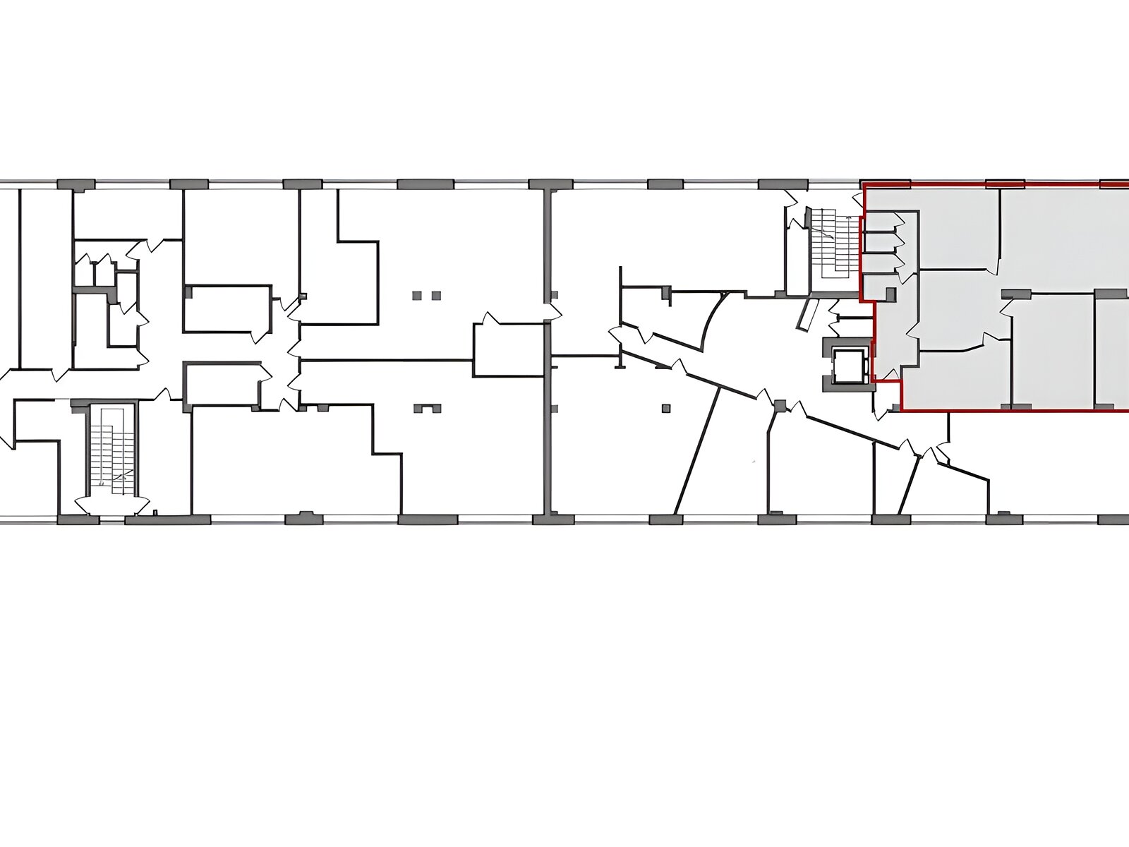
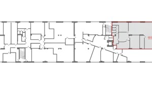
- Аренда современного офиса в центре Киева в Бизнес центре класса " В + " по адресу улица Николая Пимоненко. Этаж 5/6 этажного нежилого здания. Полезная площадь офиса 337.37 м2. Арендуемая площадь 377.85 м2 ( 12 % коэффициент BOMA ). Фотографии и планировка соответствуют реальности. Планировка - open space + кабинеты/переговорные, место для кухни, санузлы, кладовки, серверная. Состояния - хороший офисный ремонт. Офис оснащен всем необходимым для комфортной и безопасной работы. Отличная транспортная развязка, в пешей доступности остановка общественого транспорта и станция метро Лукьяновская 10 минут пешком.
Вакантность в этом БЦ - 29 м2, 84 м2, 92 м2, 100 м2, 122 м2, 123 м2, 136 м2, 228 м2, 260 м2, 293 м2, 300 м2, 330 м2, 348 м2, 355 м3, 351 м2, 366 м2, 377 м2, 406 м2, 446 м3, 645 м2, 693 м2, 741 м2, 865 м2, 1 103 м2.
Оснащения Бизнес Центра:
1. Система приточно-вытяжной вентиляции.
2. Система кондиционирования.
3. Автономная система отопления с терморегуляторами.
4. Оптоволоконные линии связи.
5. Система контроля доступа.
6. Противопожарная система
7. Круглосуточная физическая охрана.
8. Видеонаблюдение (периметр, холл, лифты, места общего пользования, парковка).
9. Лифты - 10 шт., фирмы OTIS.
10. Большая наземная парковка.
11. 2 независимых источника энергии.
12. Генератор.
Коммерческие условия:
Арендная ставка - 14.72 $/м2 с эксплуатации + НДС + коммунальные услуги.
Номер оголошення на сайті компанії: RC-128-828-DR.
- Характеристика здания: состояние: отличное • отдельное помещение
- Отопление: автономная котельная
- Подогрев воды: централизованный
- Оборудование • мебель • удобства: пропускная система • интернет
- Когда нет света: есть интернет • работает лифт • есть водоснабжение • работает отопление • есть резервное питание
- Подъезд: кодовый замок • домофон • видеодомофон • сигнализация • бронированная дверь • противопожарная система
- На территории есть: стоянка для автомобилей: открытая
Объявление неактуально или информация неточна?
- Объявление создано 27 май. ·
- ID 24152883 ·
- Просмотров 0
- · Сохранений в избранное 0
Пользуется спросом на DIM.RIA
Вас могут заинтересовать
Другие типы недвижимости в Киеве