

















  фото  ·  1 из 18
    
 
  
                        Смотреть все фото
                        
  
                        Смотреть на карте
                        
Снять офисное помещение на ул. Ушинского 40, помещений - 2, этаж - 9 • ID 33667209
    68 364 грн   ·  1 620 $ 
 
                Перевірений офіс
            
  Проверено по видеозвонку
 Отчет от 1 ноя.
 -  Вторичная недвижимость
 -  2 помещения
 -  9 этаж из 14
 -  Предложение от посредника
 
Описание от продавца
 -  Бизнес-центр
 -  Общая площадь 162 м² · полезная 155 м²
 -  Коммунальные 10000 грн зимой · 5000 грн летом
 -  Кадастровый номер 8000000000:72:475:0131
 -  Комиссия за услуги 50 %
 
- Свет 24/7
 - Укрытие в доме
 
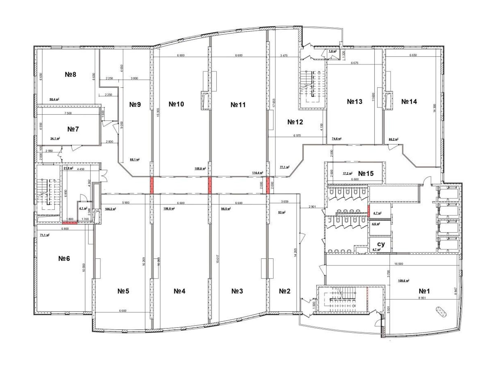
- АРЕНДА коммерческого помещения под ОФИС
ул. Ушинского, 40 - (Соломенский район)
9-й этаж с 14
ПЛОЩАДЬ - 162 м.кв.
ЦЕНА - 300 грн за м.кв. + ОПЕКС (75 грн/м.кв.) + коммунальные услуги
ДОПОЛНИТЕЛЬНО - есть возможность индивидуального подбора различного типа офисных и складских помещений от 50 м.кв. до 2000 м.кв. Офисы могут быть оформлены на заказ арендатора.
КОММУНИКАЦИИ:
- ЭЛЕКТРОСНАБЖЕНИЕ - Ведется от двух трансформаторов по 1000/04 кВт. Рассчитанная максимальная мощность напряжения 1200, 00 кВт, Высоковольтные сети 10 кВт; Низковольтные сети 380/220 В;
Силовые сети 380 В; освещение -220 В.
Предусмотрен учет потребляемой электроэнергии каждым арендатором отдельно.
- ОТОПЛЕНИЕ - Индивидуальная система отопления. Современное энерго- и тепло- сохраняющее оборудование ТЕК и Теплон;
- ВОДОСНАБЖЕНИЕ, канализация - Водоснабжение осуществляется путем подключения к городской водопроводной сети, наличие собственной скважины;
Пожарная безопасность: все помещения и места общего пользования оснащены датчиками задымленности и системой оповещения;
СЕРВИСЫ и услуги:
- безопасная закрытая территория,
- круглосуточная усиленная охрана, видеонаблюдение, доступ 24/7
- собственная парковка для большого количества авто,
- зарядные станции для электромобилей,
- зона укрытия,
- автономные инженерные системы,
- Интернет и телефонная связь - 8 провайдеров.
- офисы, склады и квартиры с ремонтом
- конференц-центр и переговорные комнаты
- коливинг
- fastcasual кафе, где каждый день новое меню и собственная выпечка,
- отделения Новой почты
- банкомат
- фитнес-студия, аренда самокатов и велосипедов.
- собственный трансфер Shuttle Bus от метро Шулявская и Демиевская. 
-  Характеристика здания: класс объекта: A • состояние: отличное • часть здания
 -  Характеристика помещения: высота потолка, м: 3 • утепление: внешнее и внутреннее • свободная (open space)
 -  Отопление: автономная котельная
 -  Подогрев воды: бойлер
 -  Помещения: санузел: 1 на этаж • кухня: нет
 -  Оборудование • мебель • удобства: Wi-Fi • видеонаблюдение • пропускная система • электричество • интернет
 -  Когда нет света: есть интернет • есть мобильная связь • работает лифт • есть водоснабжение • работает отопление
 -  Подъезд: охранник • видеонаблюдение на территории • противопожарная система
 -  На территории есть: детская площадка • стоянка для автомобилей: открытая • забор
 -  Мебель: нет
 
            Объявление неактуально или информация неточна?
        
  - Объявление создано 1 ноя. ·
 - ID 33667209 ·
 - Просмотров 0
 - · Сохранений в избранное 0
 
Пользуется спросом на DIM.RIA
 Вас могут заинтересовать
 Другие типы недвижимости в Киеве