Мы используем cookie-файлы
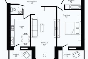
Это делается для более удобного поиска и использования наших сервисов. Подробнее — в «Политике использования файлов cookie».Двухкомнатная планировка 67.5 м² (секция 2)
ЖК Краєвид ВерховиниБольше о новостройке
от 37 125 $1 575 214 грн550 $ за м²23 337 грн за м²
Наличие квартир проверено
Проверено DIM.RIAДата последней проверки 14 ноября
| Количество комнат: 2 |
| Площадь от 67.5 м² |
| Этаж: 1 |
| Секция 2 |
| Дата сдачи 2 кв. 2017 г. |
| Застройщик Галицкий Двор |
Квартиры этой планировки
Свободно 1 квартира| 1 этаж |
| 37 125 $ · 550 $ за м² |
| Площадь 67.5 м² |

Застройщик
Галицкий Двор
Отдел продаж работает
Пн-Пт · 9:00-17:30
97%
Рейтинг застройщика от DIM.RIA| Работает с DIM.RIA больше 5 лет |
| У застройщика 23 ЖК |
Рассрочка от застройщика
Условия актуальны на 29 августа 2025Стоимость жилья
1 575 214 грн · 37 125 $
1 этаж
Сумма первого взноса
Мин. вклад 50 %
$грн
Срок выплат, месяцев
Макс. срок 6 месяцев
6 месяцев
Результаты расчета:
Ежемесячный платеж
131 268 грн · 3 094 $
Ежеквартальный платеж
393 804 грн · 9 282 $
*Наиболее точные расчеты по выплатам может предоставить только отдел продаж
Оцените удобство калькулятора рассрочки от DIM.RIA
Похожие планировки ЖК Краєвид Верховини

1 624 220 грн · 23 337 грн за м²
2-комнатная · 69.6 м²
Сдано

1 591 549 грн · 23 337 грн за м²
2-комнатная · 68.2 м²
Сдано
Условия покупки
29 августа 2025 проверено информацию по условиях рассрочки
Рассрочка от застройщика
Рассрочка 0% до 6 мес., первый взнос от 50%
Получить консультацию
єОселя на готовое жилье
На 1 - 20 лет, 1-й взнос от 10 - 20%, 3 - 7% годовых
Получить консультацию
Кредитование
єВідновлення
єОселя на готовое жильеГотовые квартирыЦентр курортного поселкаНевероятные горные пейзажиЧастная парковкаВидеонаблюдениеРядом остановка общественного транспорта
Расположение ЖК Краєвид Верховини
Верховина, ул. Жабьевская, 56Б
Рядом с ЖК Краєвид Верховини
| Учебные заведения |
|---|
11 мин Верховинська СШ №1 |
30 мин Verkhovynsʹkyy Navchalʹno-Vykhovnyy Kompleks Verkhovynsʹkoyi Rayonnoyi Rady Ivano-Frankivsʹkoyi Oblasti |
30 мин Nvk I St |
| Больница |
|---|
6 мин КОМУНАЛЬНИЙ ЗАКЛАД "ВЕРХОВИНСЬКИЙ ЦЕНТР ПЕРВИННОЇ МЕДИКО-САНІТАРНОЇ ДОПОМОГИ" |
9 мин Poliklinichne Viddilennya Verkhovynsʹkoyi Tsrl |
14 мин Likarnya |
| ТЦ, рынок, магазины |
|---|
14 мин Supermarket Rozmay |
| Парковые зоны |
|---|
2 мин Cottage Ozdoba |
15 мин Дегустаційний зал - музей штопора |
31 мин Pidvisnyy Mist |
| Транспортная развязка |
|---|
13 мин Verkhovyna 3 Hrushevskoho Street |
Дизайн-проект и стоимость ремонта

Студия дизайна интерьераДизайн студія Євгена Кваші
Эскиз-проект · от 570 грн за м²
Дизайн-проект · от 950 грн за м²

Ремонтный подрядчикBrigada
Ремонт Черновой · от 2000 грн за м²
Ремонт Косметический · от 3500 грн за м²
Ремонт Капитальный · от 4000 грн за м²
Ремонт Дизайнерский · от 5000 грн за м²
Оцените страницу предложения
Обирай солов'їну на DIM.RIA
Шукай майбутнє житло в Україні – українською
