














фото · 1 із 15

Дивитися всі фото
Дивитися на мапі
Продаж 2 поверхового таунхауса з ділянкою на 2 сотки, 117 кв. м, 4 кімнати, на вул. Пирогова • ID 33608822
125 000 $ за об'єкт · 5 275 000 грн · 1 068 $
за м²
Інформація неточна?
Продавець не підтвердив дані про цю нерухомість. Розкажіть, що не так, і ми перевіримо
Без перевірки
Опис від продавця
Продавець не підтвердив інформацію про цей об'єкт (не замовляв перевірку з представником DIM.RIA, не надсилав відео або документи)
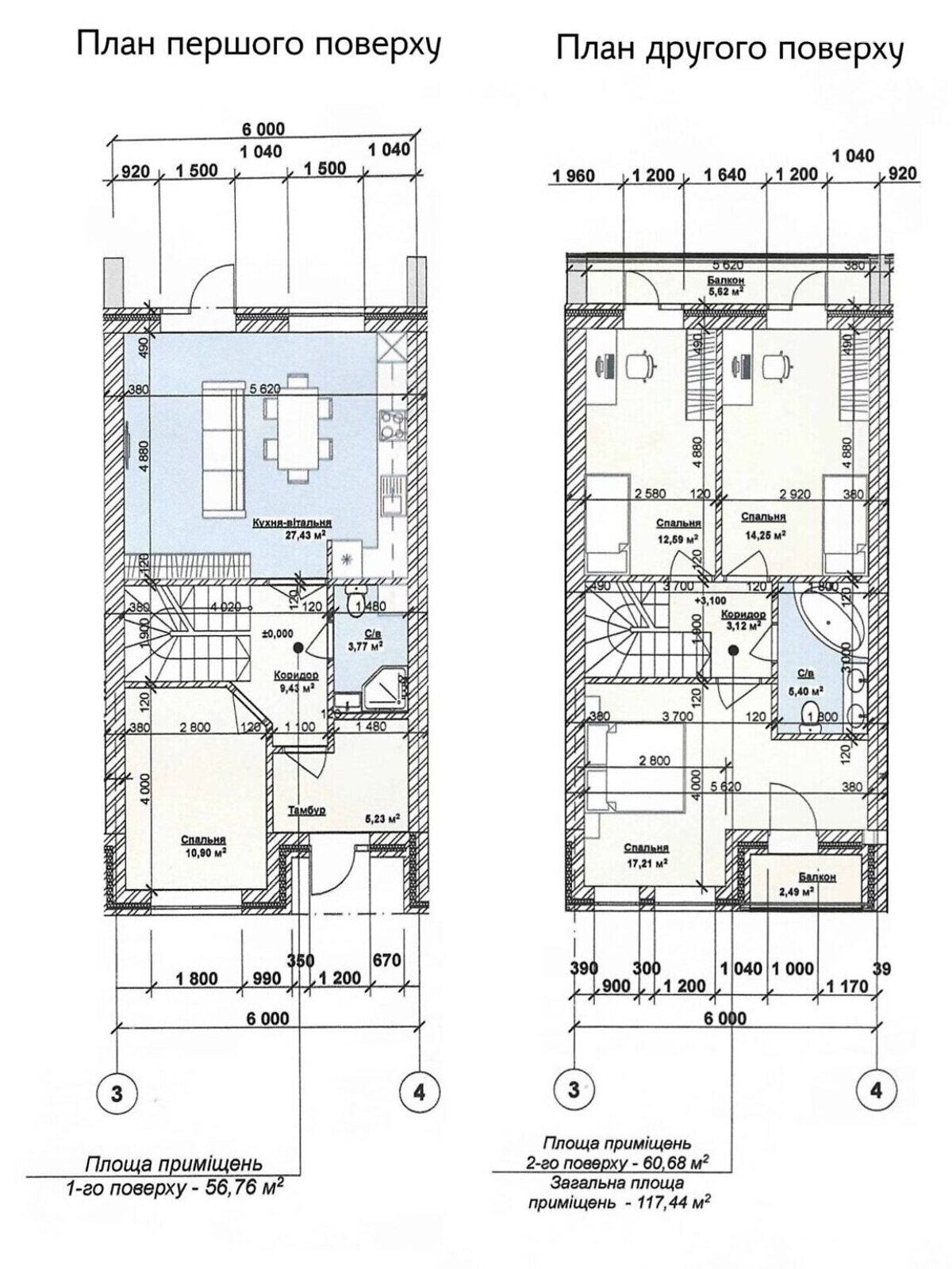
- 4 кімнати · 2 поверхи
- Загальна площа 117 м² · житлова 55 м² · кухня 30 м²
- Ділянка 2 сотки
- Стіни з цегли
- Здача в 2025
- Індивідуальне опалення
- Пропозиція від посередника
- Комісія за послуги 5 %
- Вторинна нерухомість
- Біля лісу
- Оперативний показ
- Вигідна ціна
- Продається новий таунхаус 2 поверхи простору для життя та мрій
Площа оптимальна для комфортного життя.
Розташуваний у затишному районі Вінниці з хорошою доступністю, асфальтована дорога, поруч школа, громадський транспорт.
Стан без ремонту, чорнова гіпсова штукатурка. Ви можете втілити свої дизайнерські ідеї з нуля, без зайвих витрат на демонтаж чужих рішень.
Паркомісце біля будинку зручно та безпечно для авто.
Чому варто купити саме цей таунхаус?
Повноцінні 2 поверхи житлового простору
Раціональне планування без зайвих метрів
Можливість зробити ремонт на свій смак
Зручне розташування тиша, чисте повітря, при цьому вся інфраструктура поруч
Це не просто нерухомість. Це шанс створити дім, у якому буде затишно вам і вашій родині.
Телефонуйте, щоб домовитися про перегляд!
- Характеристика будівлі: стан будинку: будівельна обробка • перекриття: залізобетонне • дах: металеві листи
- Характеристика приміщення: висота стелі, м: 2.7 • утеплення: зовнішнє і внутрішнє
- Оздоблення стелі: без обробки • штукатурка
- Підлога (покриття): стяжка
- Опалення: двоконтурний котел • газове
- Приміщення: кількість спалень: 3 • гараж: немає
- Під'їзд: броньовані двері
- Меблі: немає
- Внутрішнє оздоблення: чорнова штукатурка • чистова штукатурка
- Особливості планування: балкон/лоджія
- Обладнання • меблі • зручності: електрика • газ • центральна каналізація
- Оголошення створене 13 жов. ·
- ID 33608822 ·
- Переглядів 0
- · Збережень в обране 0