










Перевірене фото · 1 із 11

Дивитися всі фото
Дивитися на мапі
Продаж 3 поверхового таунхауса 126 кв. м, 3 кімнати, на вул. Михайла Грушевського • ID 33694249
КМ Lagom
Михайла Грушевського вулиця
·
Сокільники
163 800 $ за об'єкт · 6 907 446 грн · 1 300 $
за м²
Перевірена новобудова
Перевірено експертом DIM.RIA
Звіт від 10 лис.
Опис від продавця
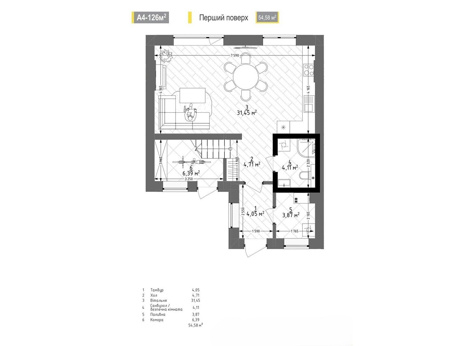
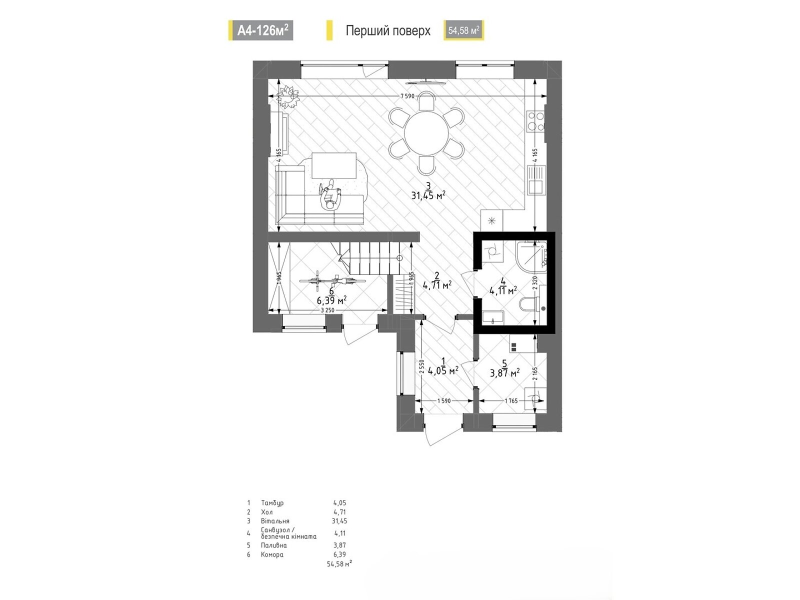
- 3 кімнати · 3 поверхи
- Загальна площа 126 м²
- Стіни з керамічного блоку
- Здача в 2027
- Пропозиція від забудовника
- Новобудова
Оголошення неактуальне чи інформація неточна?
- Продається житло на 3-кімнати безпосередньо від забудовника - Lagom Development. Функціональне планування 3-кімнатного житла відмінно підійде для вашого затишку і дозвілля.
Площа 3-кімнатного житла - 126 м².
Новобудова знаходиться в районі з розвиненою інфраструктурою за адресою: Сокільники, Михайла Грушевського.
КМ Lagom відрізняється зручним розташуванням, оскільки в безпосередній близькості від нього є: навчальні заклади, школа, лікарня, тц, ринок, магазини, паркові зони, транспортна розв'язка, дитячий садок, наземний паркінг.
Здача КМ Lagom заявлена в 3 кварталі 2027 року.
На даний момент в цьому об'єкті вже побудовано - 5 черг.
- Характеристика приміщення: висота стелі, м: 3
Оголошення неактуальне чи інформація неточна?
- Оголошення створене 10 лис. ·
- ID 33694249 ·
- Переглядів 0
- · Збережень в обране 0
Інформація про ЖК
Будинок
Наземний паркінг
Закрита територія
Чорнове внутрішнє оздоблення
Будинок з керамічного блоку, цегляний будинок
3 поверхи
Індивідуальне опалення
Стіни з керамоблоку
Утеплений пінополістиролом
Договір купівлі-продажу
Висота стелі 3 м
Клас бізнес
141 будинок
Площа ділянки від 2 сотки
Площа забудови 200 соток