

















фото · 1 із 18

Дивитися всі фото
Дивитися на мапі
Продаж офісного приміщення 958.8 кв.м. на 2 поверсі на узвіз Кловський 7, багатоповерхова будівля • ID 33627773
ЖК Кловський узвіз, 7
Більше про новобудову
2 397 500 $ за об'єкт · 101 174 500 грн · 2 501 $
за м²
Перевірений офіс
продавець надав техпаспорт
Перевірено по техпаспорту
Дата останньої перевірки 21 жов.
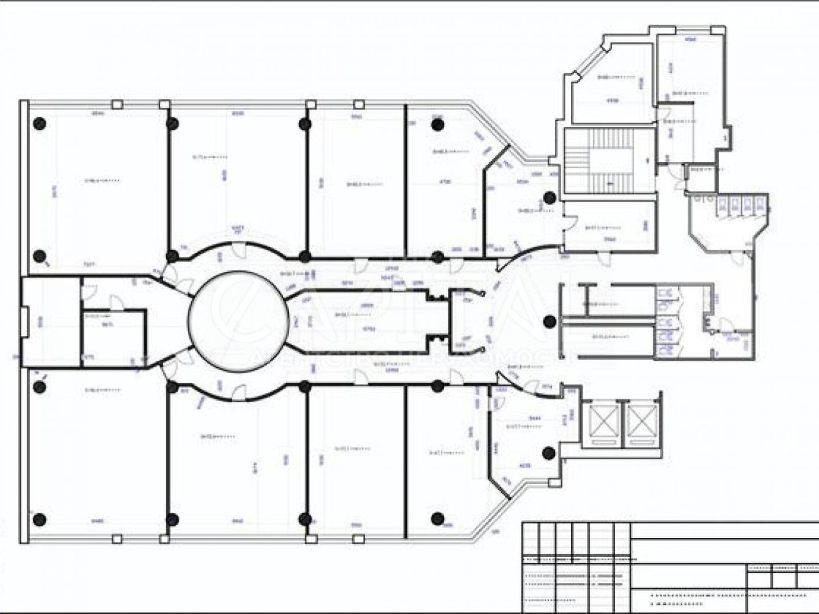
- Загальна площа 958.8 м² · корисна 843 м²
- 3 приміщення
- 2 поверх з 16
Опис від продавця
- Будівля / комплекс / павільйон
- 3 приміщення
- 2 поверх з 16
- Загальна площа 958.8 м² · корисна 843 м²
- Пропозиція від посередника
- Комісія за послуги 5 %
- Вторинна нерухомість
- Оперативний показ
- Продаж офісного приміщення в БЦ Carnegie Center (клас В)
Печерський район, Кловський Узвіз, 7
S 958, 8 кв.м,
Офісний ремонт
2/16 пов.
Нежитловий фонд
Потужність: 84 кВт
В офісі панорамні вікна в підлогу, багато світла в кожному кабінеті, два санвузли, душова кабіна, кухня.
БЦ обладнаний передовими інженерними системами:
- центральною системою керування всіма інженерними системами будівлі;
- припливно-витяжною системою вентиляції;
- Системою кондиціювання повітря;
- автономною системою опалення;
- 4 ліфтами Sigma;
- телекомунікаційною системою;
- протипожежною системою;
- Охоронною системою з відеоспостереженням.
Транспортна доступність
до станції метро Кловська 500 м
до станції метро Арсенальна 810 м
до станції метро Печерська 1, 3 км
На території БЦ Карнегі Центр знаходяться салон краси, ресторан та пекарня. Неподалік бізнес центру знаходяться супермаркет, відділення банків, кафе та ресторани.
Комунальні за лічильниками.
Власник - юридична особа
#3 1 5 9 1 7 3 5 1 6 2 2
- Характеристика будівлі: клас об'єкта: В • стан: дизайнерський ремонт • окреме приміщення
- Характеристика приміщення: висота стелі, м: 3 • утеплення: зовнішнє • блочне
- Опалення: централізоване
- Підігрів води: централізований
- Приміщення: санвузол: в приміщенні • кухня: в приміщенні
- Коли немає світла: є мобільний зв'язок
- Під'їзд: відеоспостереження на території
- На території є: стоянка для автівок: відкрита
- Меблі: немає
- Особливості планування: панорамні / вітринні вікна
- Обладнання • меблі • зручності: електрика • інтернет
Оголошення неактуальне чи інформація неточна?
- Оголошення створене 21 жов. ·
- ID 33627773 ·
- Переглядів 0
- · Збережень в обране 0
Інформація про ЖК
Будинок
Підземний паркінг
250 паркомісць
Монолітно-каркасний будинок
8-46 поверхів
Індивідуальне опалення
Стіни з цегли
Утеплений мінеральною ватою
Висота стелі до 4 м
Клас елітні
238 квартир
Користується попитом на DIM.RIA
Вас можуть зацікавити
Нерухомість у Києві за призначенням