





Перевірене фото · 1 із 6

Дивитися всі фото
Дивитися на мапі
Продаж 2к квартири 68.9 кв. м на вул. Тлехаса 89А • ID 33751888
ЖК GARDEN CITY
Більше про новобудову
72 345 $ за об'єкт · 3 089 132 грн · 1 050 $
за м²
Перевірена новобудова
Перевірено експертом DIM.RIA
Звіт від 5 січ.
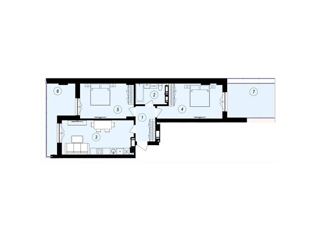
- 2 кімнати · 1-9 поверх з 9
- Загальна площа 68.9 м²
- Стіни монолітно-каркасні
- Здача в 2028
- Пропозиція від забудовника
- Новобудова
Оголошення неактуальне чи інформація неточна?
- Шумоізяляція
- Двір без авто
- Дитячі майданчики
- Спортивні майданчики
- Зони відпочинку
- Ландшафтний дизайн
- Підземний паркінг
- Закрита територія
- Теплоізоляція
- Продаж 2-кімнатної квартири від забудовника без посередників - 2-кімнатна квартира в ЖК GARDEN CITY.
Сучасне планування площею - 68.9 м² створене саме для комфорту і затишку.
Квартира розташована на типовому поверсі 9-и поверхового будинку. Адреса новобудови - Ужгород, Тлехаса, 89А.
ЖК GARDEN CITY відрізняється зручним розташуванням, оскільки в безпосередній близькості від нього є: школа, тц, ринок, магазини, паркові зони, транспортна розв'язка, кафе, кав'ярня, ресторан.
Заселитися в нове житло можна після заявленої дати здачі - 4 квартал 2028 року.
Забудовник - Комфорт Сіті Ужгород.
- Опалення: індивідуальне газове
- Оголошення створене 25 лис. 2025 ·
- ID 33751888 ·
- Переглядів 0
- · Збережень в обране 0
Інформація про ЖК
Будинок
Підземний паркінг
Закрита територія
Чорнове внутрішнє оздоблення
Монолітно-каркасний будинок
9 поверхів
Індивідуальне газове опалення
Стіни з цегли
Утеплений мінеральною ватою
Клас комфорт
143 квартири
Користується попитом на DIM.RIA
Вас можуть зацікавити
Квартири у найближчих містах