










Перевірене фото · 1 із 11

Дивитися всі фото
Дивитися на мапі
Продаж 2к квартири 64.6 кв. м на вул. Генерала Мирона Тарнавського • ID 33571354
ЖК Файне місто
Більше про новобудову
56 774 $ за об'єкт · 2 390 185 грн · 879 $
за м²
Перевірена новобудова
Перевірено експертом DIM.RIA
Звіт від 29 окт.
- 2 кімнати · 10 поверх з 10
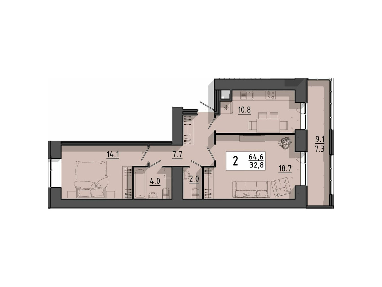
- Загальна площа 64.6 м²
- Стіни з цегли
- Здача в 2027
- Пропозиція від забудовника
- Новобудова
Оголошення неактуальне чи інформація неточна?
- Цегляний будинок
- Енергозберігаючі вікна
- Засклені лоджії та балкони
- Якісні металеві вхідні двері
- Сучасні лічильники
- Індивідуальне опалення
- Сучасний дитячий майданчик
- Розвинена інфраструктура
- Продається 2-кімнатна квартира в ЖК Файне місто. Продаж безпосередньо від забудовника - Тернопіль Будконтроль.
Площа житла даного планування 64.6 м².
Квартира розташована на 10 поверсі 10-и поверхового будинку.
ЖК Файне місто розташований за адресою: Тернопіль, Генерала Мирона Тарнавського.
ЖК Файне місто відрізняється зручним розташуванням, оскільки в безпосередній близькості від нього є: школа, дитячий садок, лікарня, тц, ринок, магазини, паркові зони, транспортна розв'язка.
Здача об'єкту заявлена в 4 кварталі 2027 року.
- Характеристика приміщення: висота стелі, м: 2.5
- Опалення: індивідуальне газове
- Оголошення створене 1 ноя. ·
- ID 33571354 ·
- Переглядів 0
- · Збережень в обране 0
Квартири цього планування
Вільно 1 квартира
10 поверх
56 783 $
·
879 $ за м²
Площа 64.6 м²
Умови купівлі
30 вересня 2025 перевірено інформацію по умовах купівліРозтермінування 0% до 1 року, перший внесок від 30%
Уточнюйте деталі у відділі продажу
Інформація про ЖК
Будинок
Підземний паркінг
Чорнове внутрішнє оздоблення
Цегляний будинок
7-10 поверхів
Індивідуальне газове опалення
Стіни з цегли
Утеплений пінополістиролом
Висота стелі до 2.7 м
Клас комфорт
363 квартири
4.7 Загальний рейтинг | 4.9 Зони відпочинку | 4.3 Транспорт | 4.6 Інфраструктура | 4.9 Безпека | 4.9 Екологія |
| Читати всі 145 відгуків про район Північний | Додати відгук про район Північний | ||||
Користується попитом на DIM.RIA
Вас можуть зацікавити
Квартири у найближчих містах