







фото · 1 із 8

Дивитися всі фото
Дивитися на мапі
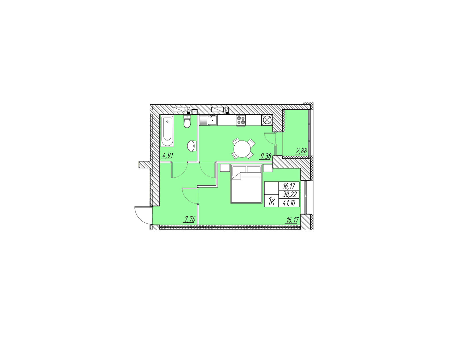
Продаж 1к квартири 42.1 кв. м на вул. Шептицького Андрія Митрополита • ID 33460021
23 997 $ за об'єкт · 1 009 554 грн · 570 $
за м²
Інформація неточна?
Продавець не підтвердив дані про цю нерухомість. Розкажіть, що не так, і ми перевіримо
Без перевірки
Опис від продавця
Продавець не підтвердив інформацію про цей об'єкт (не замовляв перевірку з представником DIM.RIA, не надсилав відео або документи)
- 1 кімната · 5 поверх з 9
- Загальна площа 42.1 м²
- Стіни з цегли
- Здача в 2026
- Пропозиція від представника забудовника
- Без комісії
- Новобудова
- Спокійний район
- Оперативний показ
- Вигідна ціна
- ВІДДІЛ ПРОДАЖІВ ВІД ЗАБУДОВНИКА
Продаж 3ї черги житлового комплексу, що знаходиться за адресою вул. Шептицького 101В.
Здача 4й квартал 2026го року.
Розтермінування до кінця 2026 року
Будинок знаходиться в тихому та затишному районі, що відзначається переважною частиною озеленення, та віддаленістю від міської метушні та шуму. Ідеальо підійде для тих хто цінує комфорт та екологічність.
ЖК відзначається якісними методами будівництва, оптимальними плануваннями та комфортми площами для кожного покупця. На території ЖК облаштовується власний дитячий майданчик та парковка для автомобілів, .
Розвинена інфраструктура району дозволяє швидко та безперешкодно дістатись до центру міста в 5ти хвилинах їзди як автомобілем так і громадським транспортом. Поряд є продуктові маркети.
На території комплексу представлена комерція, що сприяє ще більшому розвитку інфрастуктури мікрорайону.
Більш детальна інформація за вказаним номером телефону.
- Особливості планування: кухня-студія
- Характеристика будівлі: тип будинку (серія): індивідуальний проект
- Характеристика приміщення: стан квартири: чорнова штукатурка • утеплення: зовнішнє
- Опалення: індивідуальне газове • індивідуальне електричне
- Приміщення: суміжний санвузол
- Обладнання • меблі • зручності: лічильник на електрику • лічильник на газ • лічильник на воду • електрика • газ • інтернет
- Коли немає світла: є газ
- Меблі: немає
- Розташування і оточення: тип двору: внутрішній
- Особливості планування: панорамні / вітринні вікна
- Унікальні переваги: Кухня-студія
- Оголошення створене 14 жов. ·
- ID 33460021 ·
- Переглядів 0
- · Збережень в обране 0
6.4 Загальний рейтинг | 6.8 Зони відпочинку | 6.9 Транспорт | 6.6 Інфраструктура | 6.4 Безпека | 5.6 Екологія |
| Читати всі 220 відгуків про район Оболоня | Додати відгук про район Оболоня | ||||
Користується попитом на DIM.RIA
Вас можуть зацікавити
Квартири у найближчих містах