







фото · 1 із 8

Дивитися всі фото
Дивитися на мапі
Продаж 2к квартири 65.98 кв. м на вул. Шептицького Андрія Митрополита • ID 33458931
37 609 $ за об'єкт · 1 585 595 грн · 570 $
за м²
Інформація неточна?
Продавець не підтвердив дані про цю нерухомість. Розкажіть, що не так, і ми перевіримо
Без перевірки
Опис від продавця
Продавець не підтвердив інформацію про цей об'єкт (не замовляв перевірку з представником DIM.RIA, не надсилав відео або документи)
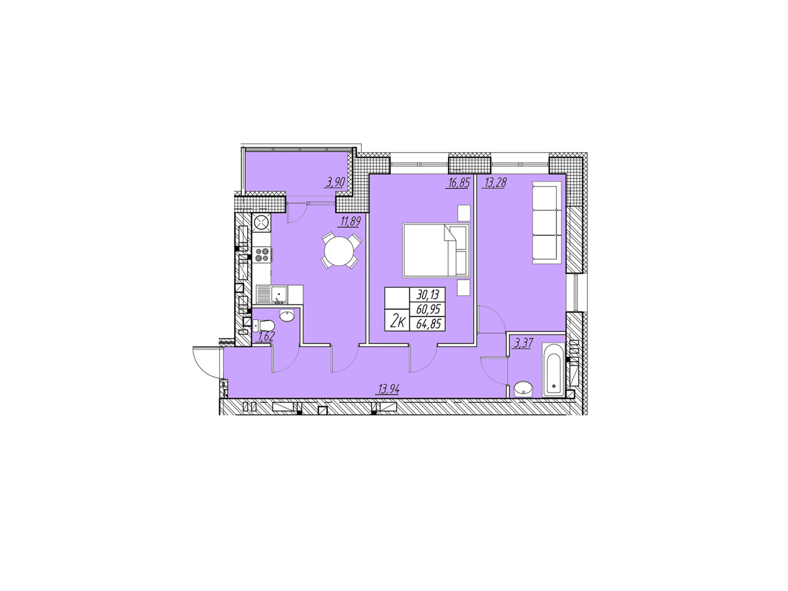
- 2 кімнати · 7 поверх з 9
- Загальна площа 65.98 м²
- Стіни з цегли
- Здача в 2026
- Пропозиція від представника забудовника
- Без комісії
- Вторинна нерухомість
- Гарний краєвид
- Спокійний район
- Вигідна ціна
- Особливості планування: кухня-студія
- Характеристика будівлі: тип будинку (серія): індивідуальний проект
- Характеристика приміщення: стан квартири: чорнова штукатурка • утеплення: зовнішнє
- Опалення: індивідуальне газове • індивідуальне електричне
- Приміщення: роздільний санвузол • суміжний санвузол
- Обладнання • меблі • зручності: лічильник на електрику • лічильник на газ • лічильник на воду • електрика • газ • інтернет
- Коли немає світла: є газ
- Меблі: немає
- Розташування і оточення: тип двору: внутрішній
- Особливості планування: панорамні / вітринні вікна • балкон/лоджія
- Унікальні переваги: Кухня-студія
- Оголошення створене 14 жов. ·
- ID 33458931 ·
- Переглядів 0
- · Збережень в обране 0
6.4 Загальний рейтинг | 6.8 Зони відпочинку | 6.9 Транспорт | 6.6 Інфраструктура | 6.4 Безпека | 5.6 Екологія |
| Читати всі 220 відгуків про район Оболоня | Додати відгук про район Оболоня | ||||
Користується попитом на DIM.RIA
Вас можуть зацікавити
Квартири у найближчих містах