













фото · 1 із 14

Дивитися всі фото
Дивитися на мапі
Продаж 1к квартири 41.97 кв. м на вулиця Будівельна • ID 20332183
30 218 $ за об'єкт · 1 275 200 грн · 720 $
за м²
Перевірена квартира
Перевірено по відеодзвінку
Звіт від 22 лют.
- Новобудова
- 1 кімната
- 1 поверх з 7
- Пропозиція від посередника
Опис від продавця
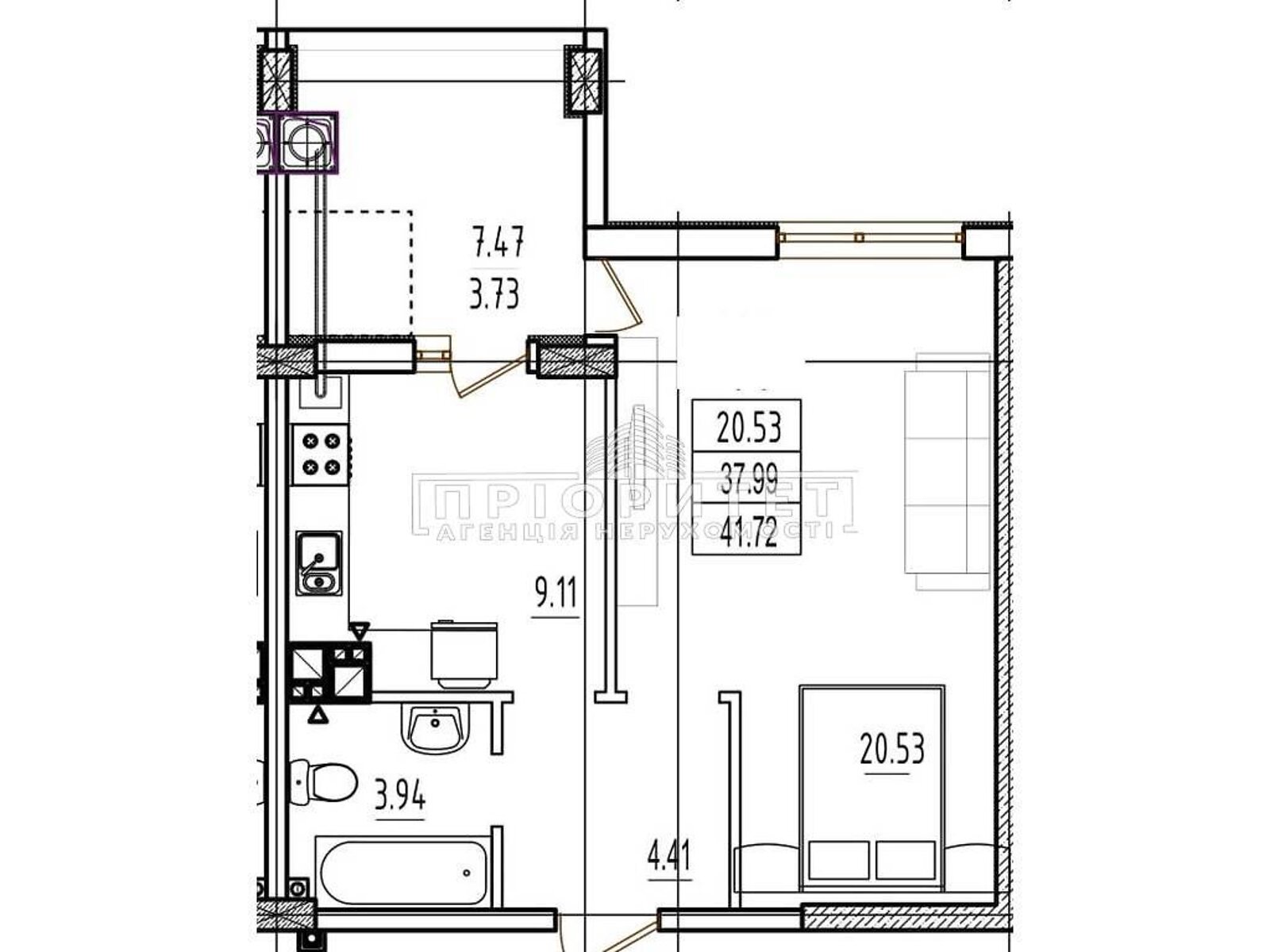
- Загальна площа 41.97 м² · житлова 20.53 м² · кухня 9.11 м²
- Стіни з газоблоку
- Побудовано 2019
- Тихий двір
- Спокійний район
- Оперативний показ
- Ідентифікатор - 9588
Квартира в новому малоповерховому комплексі. Це індивідуальний проєкт, який заслужив високу похвалу та довіру одеситів. Місце, де знаходиться комплекс, припаде до душі тим, хто бажає перебувати в тиші, проте поруч з розвиненою інфраструктурою та транспортним вузлом. Магазини, супермаркети, торгові центри, школи, дитячі садки, ринки та розважальні заклади все це в пішій доступності. Свайний фундамент будівель та монолітно-каркасна конструкція основа їх міцності. Стіни виконані з газобетону, що гарантує звукову ізоляцію та комфорт у будь-яку пору року.
Висота стель у приміщеннях оптимальна і становить 2, 80 метра. Для майбутніх мешканців створено всі комфортні умови в плануванні простору та підтриманні температури в приміщеннях. З цією метою встановлено дахову газову котельню, а додатковим джерелом енергії стануть сонячні батареї. Металопластикові вікна високої якості дозволять надійно утримувати тепло в квартирах та захистити їх від вуличного шуму. У кожній секції курсують вантажні та пасажирські ліфти. Вся територія обгороджена і знаходиться під охороною, а значить, мешканцям не доведеться переживати про збереження свого майна та безпеку.
- Зовнішня обробка: декоративна штукатурка
- Опалення: автономна котельня
- Підігрів води: немає
- Коли немає світла: є мобільний зв'язок
- Меблі: немає
- Розташування і оточення: тип двору: закритого типу (вхід, в'їзд обмежений)
- Обладнання • меблі • зручності: електрика
Оголошення неактуальне чи інформація неточна?
- Оголошення створене 28 жов. ·
- ID 20332183 ·
- Переглядів 0
- · Збережень в обране 0
Інформація про будинок
вул. Перлинна
Будинок
Збудований у 2019 Зовні оздоблений декоративною штукатуркою 1 під'їзд Утеплений зовніДвір
Закритий двір