











фото · 1 із 12

Дивитися всі фото
Дивитися на мапі
Продаж 1к квартири 69.3 кв. м на вул. Михайла Бойчука 41Б • ID 33585023
ЖК Новопечерська Вежа
Більше про новобудову
97 000 $ за об'єкт · 4 080 790 грн · 1 400 $
за м²
Перевірена квартира
продавець надав техпаспорт
Перевірено по техпаспорту
Дата останньої перевірки 7 жов.
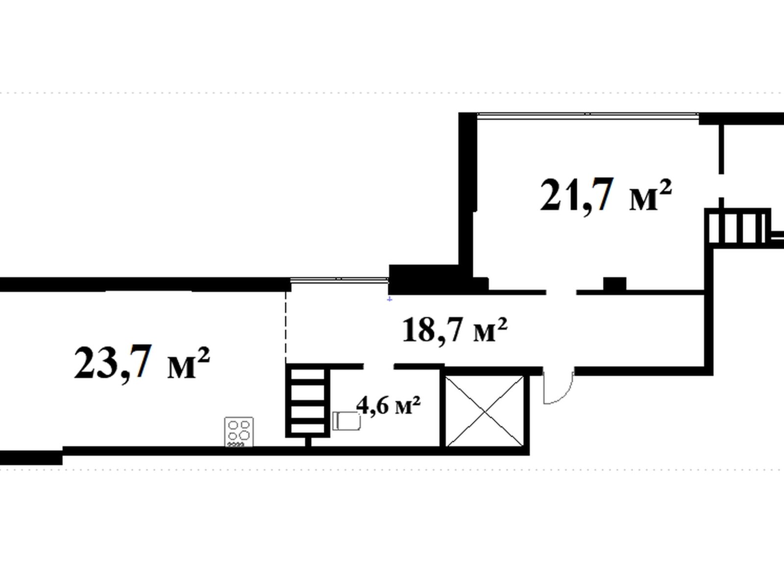
- Загальна площа 69.3 м² · житлова 21.7 м² · кухня 23.7 м²
- 1 кімната
- 26 поверх з 26
Опис від продавця
- 1 кімната · 26 поверх з 26
- Загальна площа 69.3 м² · житлова 21.7 м² · кухня 23.7 м²
- Стіни монолітно-цегляні
- Побудовано 2020
- Пропозиція від посередника
- Комісія за послуги 3 %
- Вторинна нерухомість
- Укриття в будинку
- У центрі
- Вигідна ціна
- Ексклюзивна пропозиція на Печерську! Продається простора видова квартира у престижному житловому комплексі бізнес-класу «Новопечерська Вежа».
Головна перевага розглядаємо продаж за державними програмами "єОселя", Постановою 280, а також у розстрочку!
Основні параметри:
Адреса: вул. Михайла Бойчука, 41, Печерський район, Звіринець.
ЖК: «Новопечерська Вежа» (будинок введено в експлуатацію у 2020 році).
Площа: загальна 69, 3 м² | житлова 38, 7 м² | кухня 6, 7 м².
поверх: 26-й, останній поверх (ліфт до 25-го).
Документи: Право власності на руках.
Про квартиру:
Це не стандартна квартира, а унікальний простір з величезним потенціалом. Велика загальна площа 69, 3 м² та простора кімната 38, 7 м² дозволяють реалізувати найсміливіші дизайнерські ідеї: створити розкішну студію, зонувати простір на спальню та вітальню або облаштувати творчу майстерню.
Стан після будівельників, що дає вам повну свободу для створення інтер'єру своєї мрії.
Особливість поверху:
Квартира розташована на 26-му, останньому поверсі. Ліфт піднімається до 25-го поверху, далі один проліт комфортними внутрішньобудинковими сходами. Це унікальне рішення забезпечує максимальну приватність, тишу та повну відсутність сусідів зверху.
Вигідні умови придбання:
Ми готові розглянути продаж за пільговими програмами:
єОселя (під 3% та 7%)
Постанова 280 (для військових та силовиків)
Розстрочка від власника (умови обговорюються індивідуально)
Про комплекс та локацію:
ЖК «Новопечерська Вежа» це сучасний комплекс з власною інфраструктурою, підземним паркінгом та закритою територією. Розташований в серці Печерська, поруч з Ботанічним садом ім. Гришка, престижними навчальними закладами та діловим центром столиці.
Це ідеальна пропозиція для тих, хто шукає нерухомість з характером та готовий скористатися вигідними умовами кредитування.
Телефонуйте, щоб дізнатися деталі та домовитись про перегляд!
- Особливості планування: кухня-студія
- Вхід в будинок: Вхід без порогів
- Двір: Паркувальне місце для людей з інвалідністю • Вхід в укриття безперешкодний, врівень із землею
- Характеристика будівлі: тип будинку (серія): новий фонд
- Характеристика приміщення: висота стелі, м: 3 • стан квартири: потребує ремонту/ без ремонту / ремонт не завершений • утеплення: зовнішнє
- Оздоблення стелі: без обробки
- Підлога (покриття): стяжка
- Зовнішня обробка: композитні панелі
- Опалення: централізоване
- Підігрів води: централізований
- Приміщення: суміжний санвузол
- Обладнання • меблі • зручності: лічильник на електрику • лічильник на воду • електрика
- Коли немає світла: працює ліфт
- Під'їзд: консьєрж • відеодомофон • відеоспостереження на території • Ліфт зі звуковим супроводом
- Меблі: немає
- Розташування і оточення: тип двору: закритого типу (вхід, в'їзд обмежений)
- Ліфт: пасажирський ліфт • вантажний ліфт
- Особливості планування: панорамні / вітринні вікна
- Унікальні переваги: Кухня-студія
- Внутрішнє оздоблення: без оздоблення
Оголошення неактуальне чи інформація неточна?
- Оголошення створене 7 жов. ·
- ID 33585023 ·
- Переглядів 0
- · Збережень в обране 0
Розташування ЖК Новопечерська Вежа
вул. Михайла Бойчука(Кіквідзе), 41-43
Звіринецька(Дружби народів)
·
21 хв
Видубичі
·
32 хв
Либідська
·
34 хв
Інформація про ЖК
Будинок
Підземний паркінг, багаторівневий паркінг
Закрита територія
Чорнове внутрішнє оздоблення
Монолітно-каркасний будинок
26 поверхів
Централізоване опалення
Стіни з газоблоку
Утеплений мінеральною ватою
Попередній договір купівлі-продажу квартири
Висота стелі 2.7 м
Клас бізнес
411 квартир
|
7.4 Загальний рейтинг | 7.3 Зони відпочинку | 7.6 Транспорт | 7.1 Інфраструктура | 7.8 Безпека | 7.3 Екологія |
| Читати всі 65 відгуків про район Звіринець | Додати відгук про район Звіринець | ||||
Користується попитом на DIM.RIA
Вас можуть зацікавити
Квартири у найближчих містах