

















фото · 1 із 18

Дивитися всі фото
Дивитися на мапі
Продаж 1к квартири 71.4 кв. м на вул. Андрія Верхогляда 30, кв. 95 • ID 33681863
ЖК Nordica Residence
Більше про новобудову
135 000 $ за об'єкт · 5 710 500 грн · 1 891 $
за м²
Перевірена квартира
продавець надав техпаспорт
Перевірено по техпаспорту
Дата останньої перевірки 5 лис.
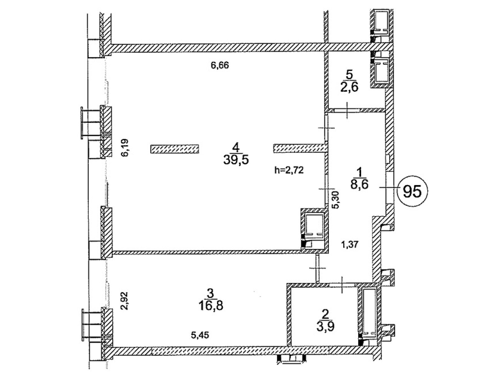
- Загальна площа 71.4 м² · житлова 16.8 м² · кухня 39.5 м²
- 1 кімната
- 11 поверх з 26
Опис від продавця
- 1 кімната · 11 поверх з 26
- Загальна площа 71.4 м² · житлова 16.8 м² · кухня 39.5 м²
- Стіни з керамічного блоку
- Здача в 2025
- Пропозиція від власника
- Без комісії
- Новобудова
- Престижний район
- Гарний краєвид
- Спокійний район
- Продаж квартири в ЖК НОРДІКА РЕЗІДЕНС
Пропонується на продаж простора 2-кімнатна квартира в сучасному житловому комплексі бізнес-класу НОРДІКА РЕЗІДЕНС, що розташований на вулиці Андрія Верхогляда(колишня Драгоманова), 30. Це ідеальний варіант для тих, хто шукає комфорт та стиль у новому житлі.
Опис та переваги
Квартира має зручне та функціональне планування загальною площею 71, 2 м², що дозволяє раціонально використати кожен квадратний метр. Вона розташована на 11-му поверсі, що забезпечує чудовий краєвид. Завдяки розташуванню кімнати наповнені природним світлом протягом дня.
Наразі квартира не укомплектована меблями, що надає вам унікальну можливість облаштувати її на свій смак та втілити власні дизайнерські ідеї. Це ідеальний простір для створення житла мрії з нуля, без необхідності підлаштовуватися під вже існуючий інтер'єр.
Переваги локації та інфраструктура
Житловий комплекс НОРДІКА РЕЗІДЕНС це сучасний квартал з власним середовищем. Тут є все для комфортного життя:
Закрита територія з відеоспостереженням та цілодобовою охороною.
Власний підземний паркінг, де ваше авто завжди буде в безпеці.
Розташування комплексу одна з його ключових переваг. Він знаходиться в безпосередній близькості до центру міста, що дозволяє швидко дістатися до всіх основних локацій Києва. Поруч є все необхідне для повсякденного життя:
Школи та дитячі садки, що є особливо важливим для сімей з дітьми.
Магазини, супермаркети та спортивні зали.
Будинок вже зданий в експлуатацію, і всі документи готові до продажу, тож угода може бути укладена швидко та без зайвих турбот.
- Вхід в будинок: Вхід без порогів
- Двір: Вхід в укриття безперешкодний, врівень із землею
- Характеристика будівлі: тип будинку (серія): новий фонд
- Характеристика приміщення: висота стелі, м: 2.7 • стан квартири: потребує ремонту/ без ремонту / ремонт не завершений • утеплення: зовнішнє
- Оздоблення стелі: без обробки
- Підлога (покриття): стяжка
- Зовнішня обробка: пофарбовано (фарбування)
- Опалення: автономна котельня
- Підігрів води: централізований
- Приміщення: 2 санвузла
- Обладнання • меблі • зручності: лічильник на електрику • лічильник на воду • електрика
- Коли немає світла: є інтернет • є мобільний зв'язок
- Меблі: немає
- Розташування і оточення: тип двору: закритого типу (вхід, в'їзд обмежений)
- Зал. вокзал: віддаленість: до 15-ти хвилин
- Ліфт: пасажирський ліфт • вантажний ліфт
- Особливості планування: панорамні / вітринні вікна
- Внутрішнє оздоблення: без оздоблення
Оголошення неактуальне чи інформація неточна?
- Оголошення створене 5 лис. ·
- ID 33681863 ·
- Переглядів 0
- · Збережень в обране 0
Розташування ЖК Nordica Residence
шосе Залізничне, 45А
Либідська
·
28 хв
Звіринецька(Дружби народів)
·
38 хв
Видубичі
·
40 хв
Інформація про ЖК
Будинок
Підземний паркінг
Двір без машин
Відсутнє внутрішнє оздоблення
Монолітно-каркасний будинок
14-26 поверхів
Централізоване опалення
Стіни з керамоблоку
Утеплений мінеральною ватою
Договір купівлі-продажу деривативу
Висота стелі 2.7 м
Клас бізнес
468 квартир
|
6.4 Загальний рейтинг | 6 Зони відпочинку | 6.7 Транспорт | 6.7 Інфраструктура | 6.7 Безпека | 6 Екологія |
| Читати всі 60 відгуків про район Чорна Гора | Додати відгук про район Чорна Гора | ||||
Користується попитом на DIM.RIA
Вас можуть зацікавити
Квартири у найближчих містах