









Перевірене фото · 1 із 10

Дивитися всі фото
Дивитися на мапі
Продаж 2к квартири 54.9 кв. м на вул. Львівська 92 • ID 33670431
ЖК Грінвуд-2
Більше про новобудову
59 292 $ за об'єкт · 2 494 414 грн · 1 080 $
за м²
Перевірена новобудова
Перевірено експертом DIM.RIA
Звіт від 1 лис.
- 2 кімнати · 1-5 поверх з 5
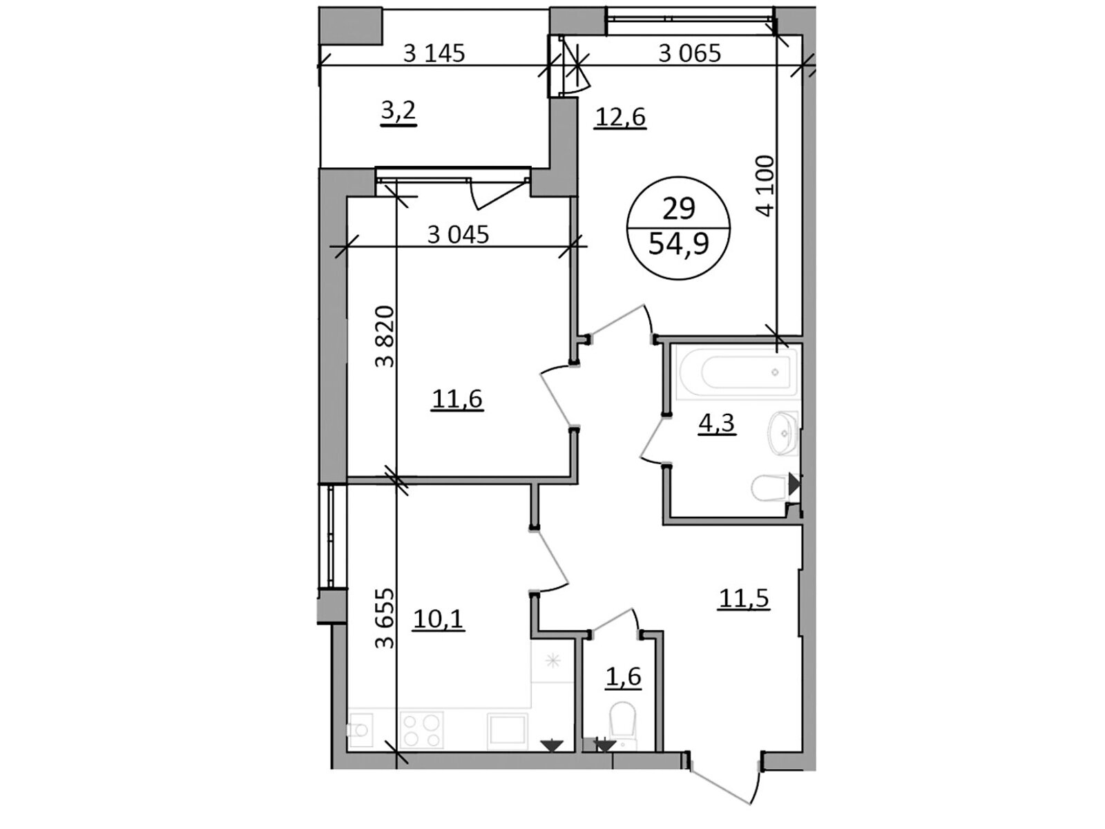
- Загальна площа 54.9 м²
- Стіни монолітно-каркасні
- Здача в 2026
- Пропозиція від забудовника
- Новобудова
Оголошення неактуальне чи інформація неточна?
- Комерційні приміщення
- 10 км від Львівської Опери
- Вбудований дитсадок
- Волейбольне поле
- Спортивний та дитячий майданчик
- Реліктові сосни
- Альтанки
- Поруч озеро
- Вікна панорамні
- Поруч з лісом
- Багаторівневий паркінг
- Продаж 2-кімнатної квартири від забудовника без посередників - 2-кімнатна квартира в ЖК Грінвуд-2.
Сучасне планування площею - 54.9 м² створене саме для комфорту і затишку.
Квартира розташована на типовому поверсі 5-и поверхового будинку. Адреса новобудови - Брюховичі (Львів), Львівська, 92.
ЖК Грінвуд-2 відрізняється зручним розташуванням, оскільки в безпосередній близькості від нього є: навчальні заклади, дитячий садок, лікарня, тц, ринок, магазини, паркові зони, транспортна розв'язка, наземний паркінг.
Заселитися в нове житло можна після заявленої дати здачі - 4 квартал 2026 року.
На даний момент в цьому об'єкті вже побудовано - 11 секцій.
Забудовник - М7 Естейт.
- Характеристика приміщення: висота стелі, м: 2.7
- Опалення: індивідуальне газове
- Оголошення створене 1 лис. ·
- ID 33670431 ·
- Переглядів 0
- · Збережень в обране 0
Умови купівлі
12 вересня 2025 перевірено інформацію по умовах купівліРозтермінування до 13 міс., перший внесок від 50%
Уточнюйте деталі у відділі продажу
Інформація про ЖК
Будинок
Підземний паркінг, наземний паркінг
Закрита територія
Відсутнє внутрішнє оздоблення
Монолітно-каркасний будинок, монолітно-блочний будинок
5 поверхів
Індивідуальне газове опалення
Стіни з керамоблоку
Утеплений мінеральною ватою, пінополістиролом
Висота стелі 2.7 м
Клас комфорт
965 квартир
|