






























фото · 1 із 31

Дивитися всі фото
Дивитися на мапі
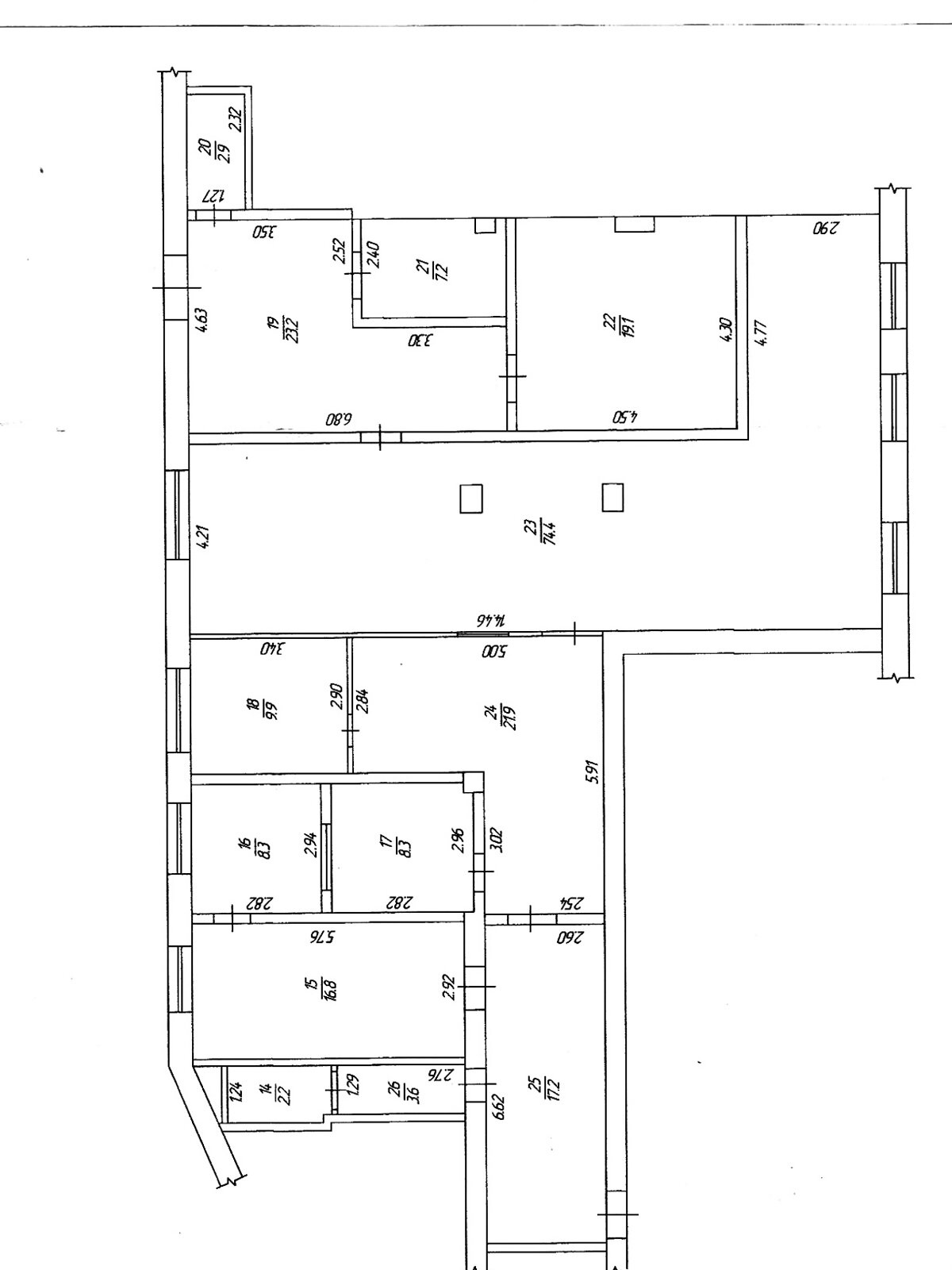
Продаж комерційного приміщення на вул. Левка Лук’яненка 23/2, площа 215 кв.м • ID 33684933
190 000 $ за об'єкт · 8 012 300 грн · 884 $
за м²
Перевірене комерційне приміщення
Перевірено по відеодзвінку
Звіт від 7 лис.
- Вторинна нерухомість
- 5 приміщень
- 1 поверх з 4
- Пропозиція від посередника
- Без комісії
Опис від продавця
- Адміністративна будівля
- Загальна площа 215 м²
- вул. Левка Лукяненка, 23/2.
Офіс на першому поверсі адміністративної будівлі.
Раніше використовувалось як відділення банку, сервісний центр.
Високі стелі, великі вікна, два входи.
Пожежна та охоронна сигналізація.
Місце для зовнішньої реклами.
Велика потужність електроенергії, 3 фази.
Електроопалення.
Вода та водовідведення від міських мереж.
На фасадній частині великий паркувальний майданчик.
Запрошую вас на перегляд.
- Характеристика приміщення: висота стелі, м: 3.2
- Двері та вікна: окремий вхід: 2 (на обидві сторони)
- Обладнання • меблі • зручності: охоронна сигналізація
- На території є: стоянка для автівок: відкрита
Оголошення неактуальне чи інформація неточна?
- Оголошення створене 7 лис. ·
- ID 33684933 ·
- Переглядів 0
- · Збережень в обране 0
Користується попитом на DIM.RIA
Вас можуть зацікавити
Нерухомість у Вінниці за призначенням