










фото · 1 із 11

Дивитися всі фото
Дивитися на мапі
Продаж комерційного приміщення на вул. Василя Тютюнника 28А, площа 113.8 кв.м • ID 33021198
ЖК Cardinal
Більше про новобудову
175 000 $ за об'єкт · 7 362 250 грн · 1 535 $
за м²
Перевірене комерційне приміщення
продавець надав техпаспорт
Перевірено по техпаспорту
Дата останньої перевірки 22 апр.
- Загальна площа 113.8 м² · корисна 108.4 м²
- 1 приміщення
- Цокольний поверх з 22
- Ділянка 1 сотка
Опис від продавця
- Будівля / комплекс / павільйон
- 1 приміщення
- Цокольний поверх з 22
- Загальна площа 113.8 м² · корисна 108.4 м²
- Ділянка 1 сотка
- Пропозиція від посередника
- Комісія за послуги 5 %
- Вторинна нерухомість
- Укриття в будинку
- Престижний район
- У центрі
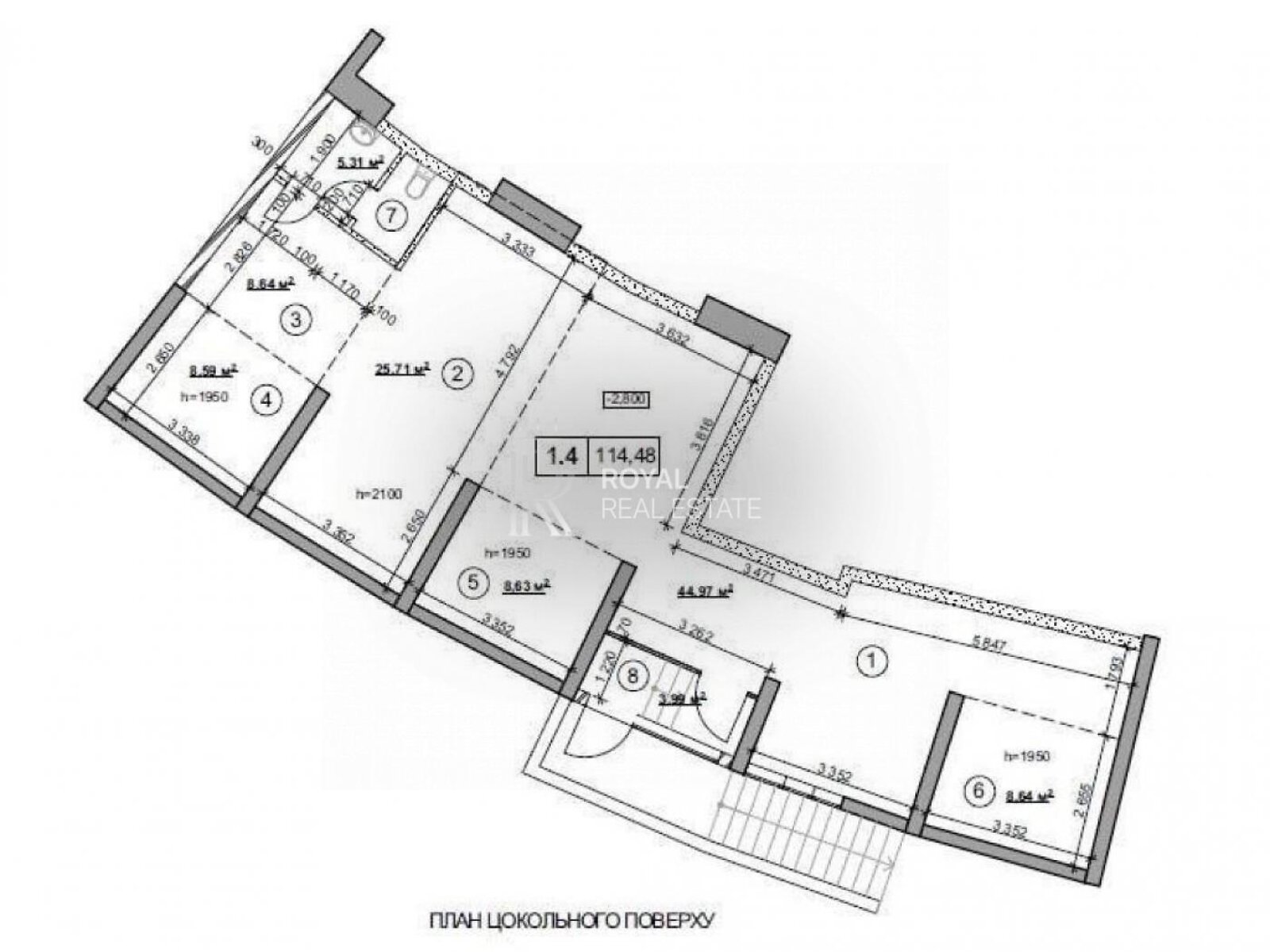
- Продаж комерційного приміщення площею 114 м2 розташованого в ЖК Cardinal.
Приміщення знаходиться на цокольному поверсі, має велике вікно та окремий вхід.
Планування приміщення: оупен-спейс, 4 кабінети, 2 санвузли.
Житловий комплекс Cardinal розташований у престижному районі Печерськ, по вул. Василя Тютюнника (Анрі Барбюса), 28а.
В оточенні інших сучасних житлових комплексів.
Зручна транспортна розв'язка. Розташування будинку дозволяє дуже швидко дістатися центру столиці, як на власному автомобілі, так і на громадському транспорті.
До найближчих станцій метро «Палац Україна» та «Олімпійська» дійти можна лише за кілька хвилин.
- Характеристика будівлі: клас об'єкта: A+ • стан: відмінний • цільове призначення: під салон краси • фасадне приміщення • частина будівлі
- Характеристика приміщення: висота стелі, м: 2.4 • утеплення: зовнішнє
- Двері та вікна: захисні ролети на дверях
- Опалення: централізоване
- Підігрів води: централізований
- Коли немає світла: є інтернет • є водопостачання
- Під'їзд: сигналізація • протипожежна система
- На території є: спортивний майданчик • стоянка для автівок: відкрита • паркан
- Обладнання • меблі • зручності: електрика
Оголошення неактуальне чи інформація неточна?
- Оголошення створене 22 апр. ·
- ID 33021198 ·
- Переглядів 0
- · Збережень в обране 0
Розташування ЖК Cardinal
вул. Василя Тютюнника(Анрі Барбюса), 28А
Палац Україна
·
7 хв
Олімпійська
·
15 хв
Либідська
·
17 хв
Інформація про ЖК
Будинок
Багаторівневий паркінг, автостоянка
Відсутнє внутрішнє оздоблення
Монолітно-каркасний будинок
5-23 поверхи
Автономне опалення
Стіни з керамоблоку
Попередній договір купівлі-продажу квартири
Висота стелі 3 м
Клас бізнес
291 квартира
|
Користується попитом на DIM.RIA
Вас можуть зацікавити
Нерухомість у Києві за призначенням