




фото · 1 із 5

Дивитися всі фото
Дивитися на мапі
Продаж 2 поверхового дуплекса з ділянкою на 2.5 сотки, 123.48 кв. м, 3 кімнати, на вул. Колоскова 93 • ID 33653146
Колоскова вулиця
·
Сторожниця
105 000 $ за об'єкт · 4 417 350 грн · 850 $
за м²
Інформація неточна?
Продавець не підтвердив дані про цю нерухомість. Розкажіть, що не так, і ми перевіримо
Без перевірки
Опис від продавця
Продавець не підтвердив інформацію про цей об'єкт (не замовляв перевірку з представником DIM.RIA, не надсилав відео або документи)
- 3 кімнати · 2 поверхи
- Загальна площа 123.48 м² · житлова 28.81 м² · кухня 35.5 м²
- Ділянка 2.5 сотки
- Стіни з цегли
- Здача в 2025
- Індивідуальне опалення
- Пропозиція від посередника
- Без комісії
- Вторинна нерухомість
- Гарний краєвид
- Спокійний район
- Вигідна ціна
- БЕЗ КОМІСІЇ Продаж 2-поверхового дуплексу на етапі будівництва, Сторожниця
Переваги:
Розташування (вул. Колоскова 93, кав'ярні, магазини, аптеки, садочки, школи, транспортні зупинки)
Індивідуальне газове опалення
Газ на ділянці
Осбб
3 камерні вікна
Дах (дерев'яне перекриття, утеплене перлітом 20см, покрівля)
Утеплення (100см пінопласт)
Комплектація:
Скважина (40м)
Септик (очисна система)
Перекриття між поверхами залізобетонне
Між будинками дві стіни з утепленням
Керапоблок (25см)
Стрічковий фундамент
Фундаментна плита
Опис:
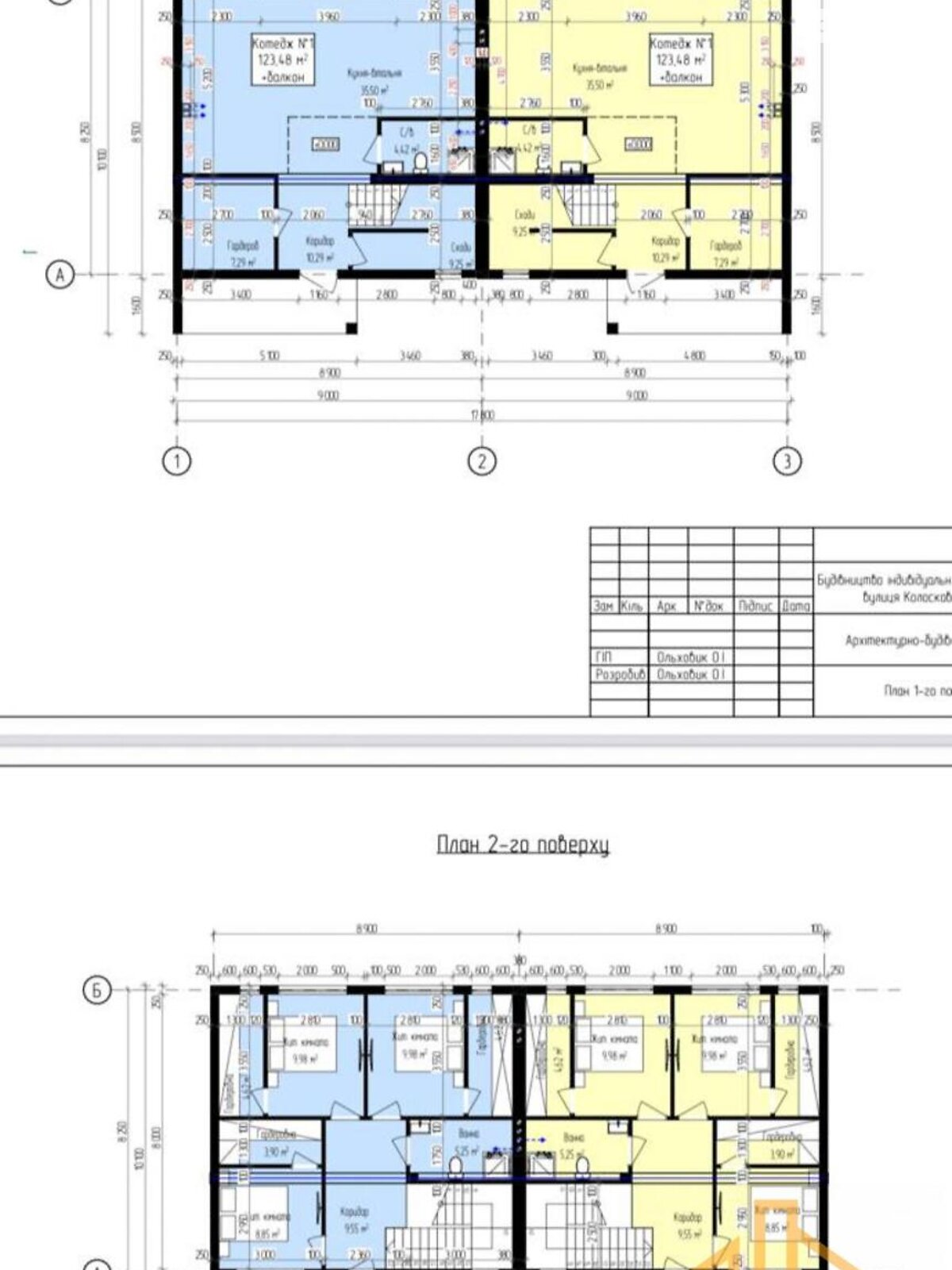
Продаж 2-поверхового таунхаусу, вул. Колоскова. В плануванні першого поверху передбачено: велика кухня-вітальня, санвузол, гардероб, вихід на терасу. В плануванні другого поверху передбачено: 3 спальні, 3 гардероби, вихід на балкон, санвузол.
Будинок розташований в зручній локації, поряд є продуктові магазини та супермаркети, освітні заклади, аптеки, відділення пошти.
Ціна буде змінюватись з зростанням будівництва.
За детальною інформацією телефонуйте
Також за номер є телеграм
#1664
- Особливості планування: з опаленням • з балконом
- Характеристика будівлі: стан будинку: будівельна обробка • перекриття: залізобетонне
- Характеристика приміщення: висота стелі, м: 3 • утеплення: зовнішнє
- Оздоблення стелі: інше
- Комунікації: каналізація: септик
- Вода: свердловина
- Опалення: індивідуальне газове • газове
- Підігрів води: немає
- Приміщення: кількість спалень: 3 • гараж: немає • котельня / бойлерна • гардероб • вітальня
- Коли немає світла: є інтернет
- Під'їзд: відеоспостереження на території
- На території є: ландшафтний дизайн • паркан
- Меблі: немає
- Особливості планування: панорамні / вітринні вікна • тераса
- Обладнання • меблі • зручності: електрика • газ • інтернет • каналізація септик
- Унікальні переваги: свердловина
- Оголошення створене 27 жов. ·
- ID 33653146 ·
- Переглядів 0
- · Збережень в обране 0