







фото · 1 із 8

Дивитися всі фото
Дивитися на мапі
Продаж 2 поверхового дуплекса з ділянкою на 3 сотки, 125 кв. м, 3 кімнати, на вул. Потічкова • ID 33655629
Потічкова вулиця
·
Підрясне
69 000 $ за об'єкт · 2 902 830 грн · 552 $
за м²
У процесі перевірки
Наразі DIM.RIA чекає даних від продавця
Продавець вказав, що готовий пройти перевірку на DIM.RIA. Щойно отримаємо документи або відео про цей об'єкт — відразу все розкажем тобі.
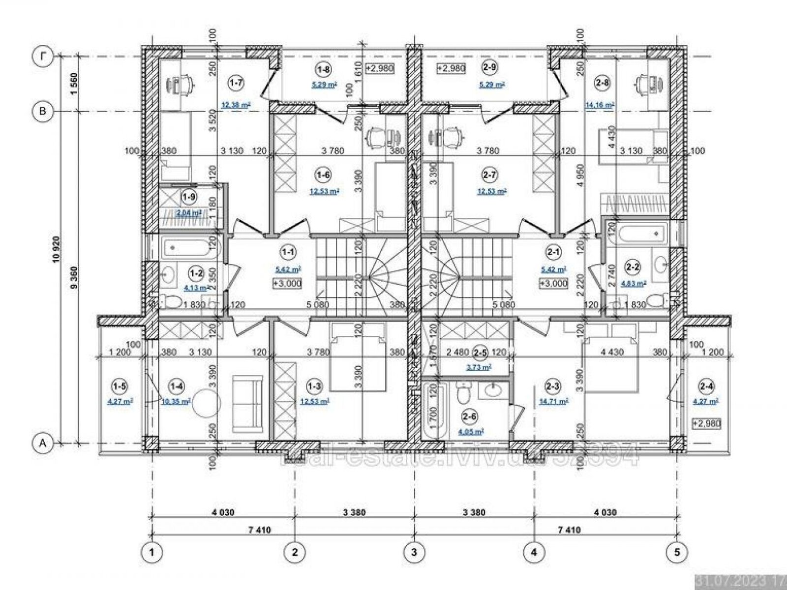
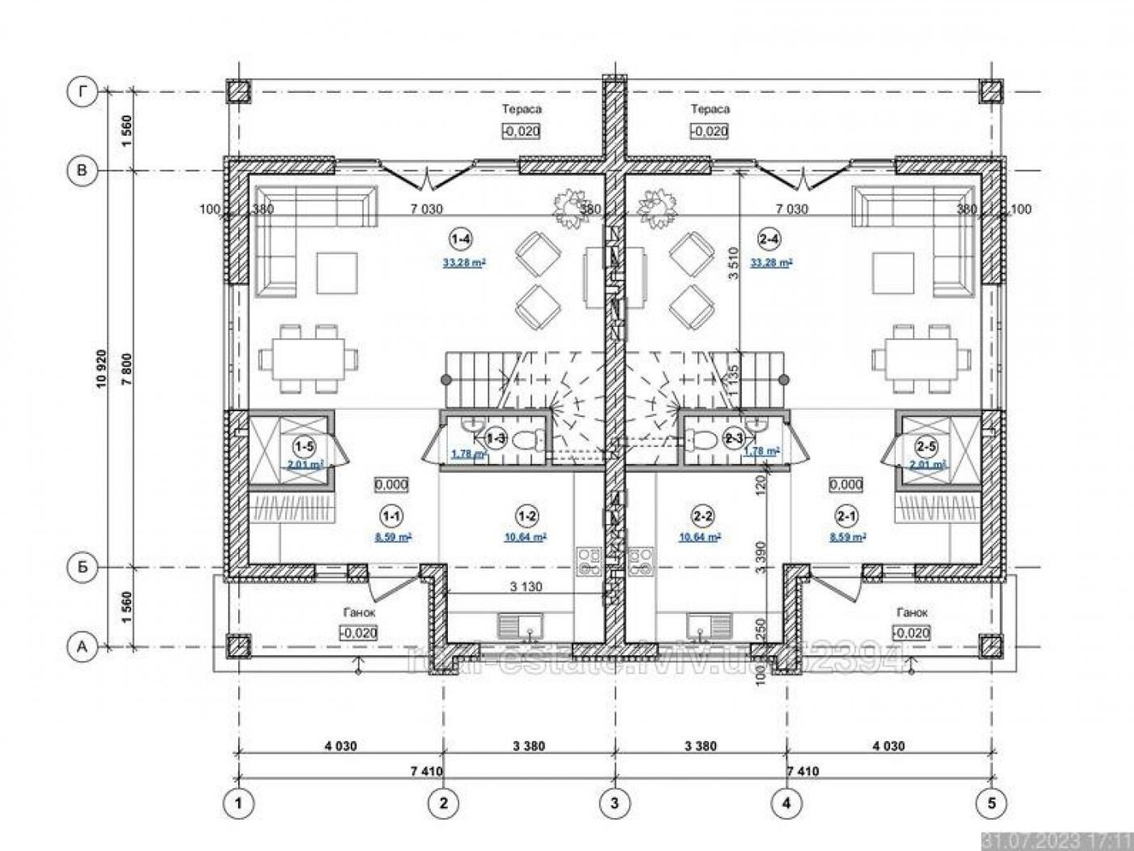
- 3 кімнати · 2 поверхи
- Загальна площа 125 м² · житлова 48 м² · кухня 34 м²
- Ділянка 3 сотки
- Стіни з цегли
- Індивідуальне опалення
- Пропозиція від посередника
- Вторинна нерухомість
Опис від продавця
- З ділянкою
- Оперативний показ
- Вигідна ціна
- ПРОДАЖ БУДИНКУ
Адреса - село Підрясне, вулиця Потічкова
Кількість кімнат - три.
Поверховість - двоповерховий.
Матеріал стін - цегла
Земельна ділянка - 3 соток, огороджена. Призначення - під садівництво.
Загальна площа будинку - 125 м2, житлова - 48 м2, кухня - 34 м2.
Опалення - газовий котел.
Балкони - два.
Санвузли - два.
Перший поверх будинку включає: простору кухню, вітальню, санвузол, пральню.
Другий поверх: три ізольовані кімнати, санвузол, гардеробна
Наявні комунікації: електрика 35 кВт / газ / свердловина / каналізація септик.
Особливості даного будинку - можливий ремонт під ключ, вдале планування, власне подвіря.
Поруч з будинком: школа, дитячий садок, супермаркет АТБ, зупинка громадського транспорту, магазин.
Код обєкта: 3071
- Особливості планування: з опаленням
- Характеристика будівлі: стан будинку: без оздоблювальних робіт
- Характеристика приміщення: утеплення: зовнішнє
- Оздоблення стелі: без обробки
- Підлога (покриття): стяжка
- Комунікації: каналізація: септик
- Вода: свердловина
- Опалення: газове
- Приміщення: кількість спалень: 3 • гардероб
- На території є: сад • паркан
- Меблі: немає
- Внутрішнє оздоблення: чорнова штукатурка
- Особливості планування: панорамні / вітринні вікна • тераса
- Обладнання • меблі • зручності: електрика • газ • каналізація септик
- Унікальні переваги: свердловина
Об'єкт не такий, як в описі?
Розкажи нам, що не так - ми все перевіримо
- Оголошення створене 28 жов. ·
- ID 33655629 ·
- Переглядів 0
- · Збережень в обране 0