








































фото · 1 із 41

Дивитися всі фото
Дивитися на мапі
Продаж 3 поверхового дуплекса з ділянкою на 3 сотки, 161.7 кв. м, 4 кімнати, на вул. Світанкова • ID 33623178
Світанкова вулиця
·
Крюківщина
114 000 $ за об'єкт · 4 805 100 грн · 705 $
за м²
Перевірений дуплекс
Перевірено по відеодзвінку
Звіт від 17 жов.
- Новобудова
- 4 кімнати
- 3 поверхи
- Ділянка 3 сотки
- Пропозиція від посередника
- Без комісії
Опис від продавця
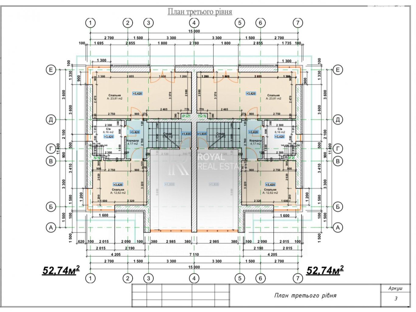
- Загальна площа 161.7 м² · житлова 110 м² · кухня 8 м²
- Стіни з цегли
- Індивідуальне опалення
- З ділянкою
- Біля лісу
- Територія під охороною
- Продаж!
Пропонується сучасний та просторий дуплекс у селі Крюківщина, розташований у мальовничому та зручному місці поблизу села Гатне в закритому котеджному містечку "Beverly Hills Residence". Загальна площа будинку становить 161, 7 м², а територія ділянки 3 сотки, що забезпечує комфортне проживання в поєднанні з власним простором для відпочинку.
Основні переваги:
Комунікації:
Власна свердловина глибиною 50 метрів з якісною водою.
Потужність електроенергії 10 кВт.
Підведено газ.
Власна центральна каналізація, що забезпечує зручність і автономність.
Інфраструктура та розташування:
Затишний район з розвиненою інфраструктурою.
Зручний доїзд до Києва (лише кілька хвилин автомобілем).
Поруч магазини, школи, дитячі садки та інші необхідні обєкти, до найближчого метро Теремки 20 хвилин пішки.
Будинок:
Раціональне планування для комфортного життя.
Нове будівництво з якісних матеріалів, побудовано з керамічної цегли і утеплений 15 см пінопласт.
Простір дозволяє організувати затишну сімейну атмосферу.
Цей дуплекс ідеально підходить для тих, хто шукає гармонійне поєднання сучасного комфорту, та близькості до столиці.
Ціна і перегляд:
Будинок готовий до огляду. Звертайтесь для додаткової інформації та організації перегляду!
RR5753
- Характеристика гаража: з підвалом
- Характеристика будівлі: стан будинку: будівельна обробка
- Характеристика приміщення: утеплення: зовнішнє
- Комунікації: каналізація: центральна
- Вода: свердловина
- Опалення: газове • електричне
- Підігрів води: бойлер
- Приміщення: кількість спалень: 3 • гараж: на першому поверсі
- Під'їзд: охоронець • відеоспостереження на території
- На території є: ландшафтний дизайн • паркан
- Меблі: немає
- Особливості планування: панорамні / вітринні вікна • тераса
- Обладнання • меблі • зручності: електрика • газ • вивіз відходів • центральна каналізація
- Унікальні переваги: свердловина
Оголошення неактуальне чи інформація неточна?
- Оголошення створене 17 жов. ·
- ID 33623178 ·
- Переглядів 0
- · Збережень в обране 0