



































фото · 1 із 36

Дивитися всі фото
Дивитися на мапі
Продаж 1 поверхового будинку з верандою і ділянкою на 8 соток, 90.1 кв. м, 4 кімнати, на вулиця Бондаренка • ID 33325308
45 000 $ за об'єкт · 1 910 250 грн · 499 $
за м²
Перевірений будинок
продавець надав техпаспорт
Перевірено по техпаспорту
Дата останньої перевірки 21 лип. 2025
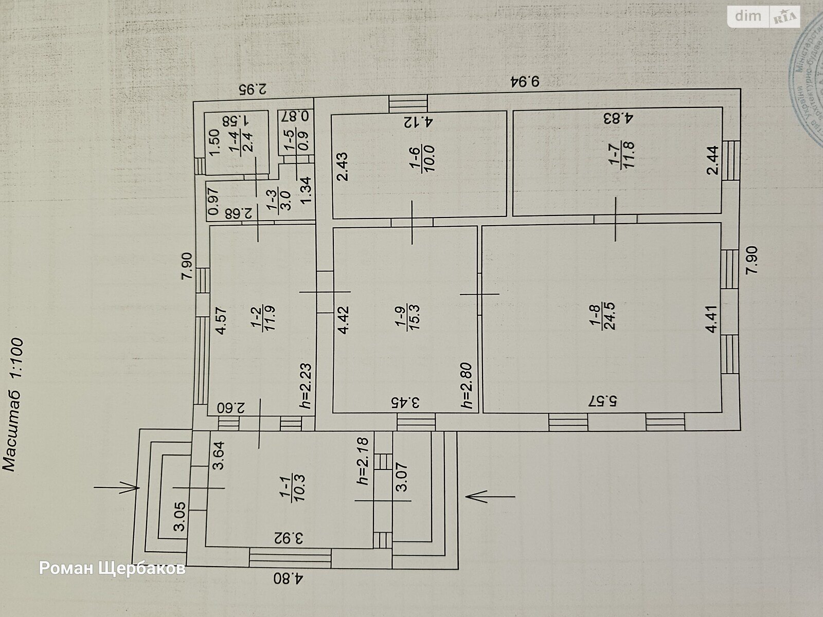
- Загальна площа 90.1 м² · житлова 61.6 м² · кухня 11.9 м²
- 4 кімнати
- 1 поверх
- Ділянка 8 соток
Опис від продавця
- 4 кімнати · 1 поверх
- Загальна площа 90.1 м² · житлова 61.6 м² · кухня 11.9 м²
- Ділянка 8 соток
- Стіни з цегли
- Побудовано 1970-1979
- Пропозиція від представника забудовника
- Без комісії
- єВідновлення
- Вторинна нерухомість
- єОселя
- Світло 24/7
- Біля річки
- Спокійний район
- Продається цегляний будинок 1978 р. загальною площею 90, 1 кв.м. газифікований, електроживлення 1 фаза, опалення індивідуальне газове, водопостачання, каналізаційна яма. Фундамент бутовий камінь, дах шифер, вимощення, відливи, вікна металопластикові. Оселя складається з холодної веранди вітальні, кухні( витяжка, холодильник, плита, газові колонка та котел), роздільного санвузла (ванна, пральна машина). та чотирьох кімнат (дві прохідні). Стіни шпалери, стеля штукатурка, підлога ДСП, радіатори нові металеві.
Також на даній території знаходиться времянка побудована зі шлаку, обкладена цеглою , газифікована, електроживлення 1 фаза. Вікна деревяні.
Господарський блок на два входи (в одному з них є погріб, витяжка). Літній душ, туалет, криниця.
Гараж цегляний , брама металева висотою приблизно 2, 6 м., дах металопрофіль, відливи, вікна- склоблоки, заїзд від дороги. Огорожа бетонний фундамент, металопрофіль.
Будинок розташований в такому місці, що видно річку Супій (100 м), до парку 200-300 метрів, поруч магазин Фора, зупинка місцевих маршруток. До авто та залізничних вокзалів пару зупинок в одну сторону, до лікарні та інших магазинів в іншу. Приблизно 20 хв. пішки до шкіл.
- Особливості планування: з опаленням • з гаражем • з верандою
- Характеристика будівлі: стан будинку: хороший • перекриття: залізобетонне • дах: шифер
- Оздоблення стелі: штукатурка • шпалери
- Внутрішнє оздоблення: шпалери
- Вода: центральний водопровід • криниця
- Підігрів води: комбинированный: колонка • бойлер
- Опалення: індивідуальне газове • газове
- Приміщення: кількість спалень: 2 • гараж: в дворі • роздільний санвузол
- Обладнання • меблі • зручності: обідня зона • ванна • газова плита • шафа-гардероб • диван • холодильник • електрика • газ • каналізація септик • письмовий стіл • односпальне ліжко
- Коли немає світла: працює опалення • є газ
- На території є: літня кухня • госп.будівлі (сарай) • погріб • паркан
- Унікальні переваги: З верандою
Оголошення неактуальне чи інформація неточна?
- Оголошення створене 21 лип. 2025 ·
- ID 33325308 ·
- Переглядів 0
- · Збережень в обране 0