






















фото · 1 із 23

Дивитися всі фото
Дивитися на мапі
Продаж 1 поверхового будинку з ділянкою на 12 соток, 198 кв. м, 4 кімнати, на вул. Садова • ID 33569711
185 000 $ за об'єкт · 7 788 500 грн · 934 $
за м²
Інформація неточна?
Продавець не підтвердив дані про цю нерухомість. Розкажіть, що не так, і ми перевіримо
Без перевірки
Опис від продавця
Продавець не підтвердив інформацію про цей об'єкт (не замовляв перевірку з представником DIM.RIA, не надсилав відео або документи)
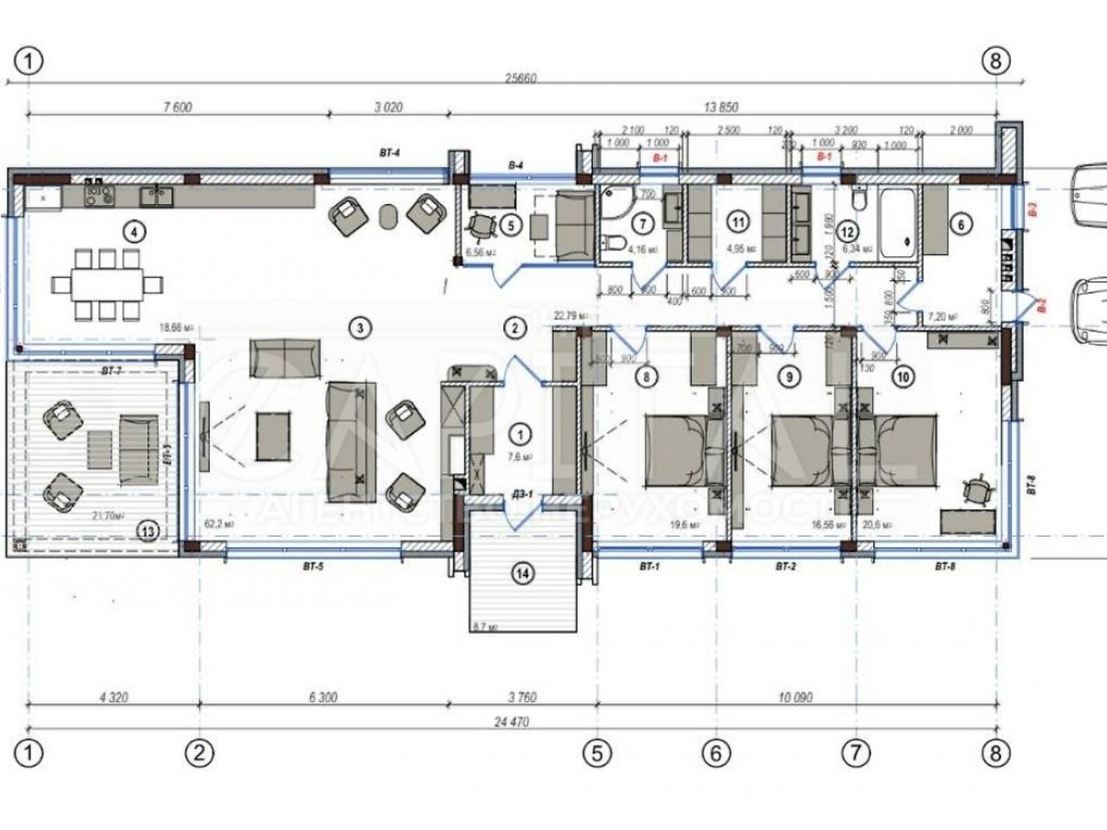
- 4 кімнати · 1 поверх
- Загальна площа 198 м² · житлова 92 м² · кухня 23 м²
- Ділянка 12 соток
- Стіни з цегли
- Пропозиція від посередника
- Комісія за послуги 5 %
- Вторинна нерухомість
- Біля лісу
- Оперативний показ
- Продається котедж у с. Віта-Поштова просторий будинок площею 198 м² тераса, з ділянкою 12 соток, усього 5 хвилин на авто до Києва.
Розташований у тихій, мальовничій місцевості в пішій доступності ліс та озеро, всі сусіди живуть, тупікова вулиця, ідеальне місце для заміського життя в Одеському напрямку.
Основні переваги:
Зручне планування в одному рівні:
3 просторі спальні
кабінет
велика вітальня-студіо з можливістю встановлення каміна
2 санвузли
гардероб, вбиральня, топкова
тераса з деревяною перголою (22 м²)
Характеристики:
Площа ділянки 12 соток
проведено топографічну зйомку, геологію та геодезію
Площа будинку 198 м²
Тераса 22 м²
Кількість кімнат 4 кабінет
Санвузлів 2
Інші приміщення гардероб, топкова
Свердловина 82 м (сеноманський горизонт)
Система каналізації автономний біосептик з дренажним полем
Потужність електропостачання 20 кВт
Технології та матеріали:
Фундамент монолітна плита (300 мм) з ребрами жорсткості
Гідроізоляція фундаменту зовнішня та внутрішня (стиродур, мастика, руберойд)
Конструкція монолітно-каркасна (бетон Б25)
Перекриття монолітні
Стіни газобетон D400 (300 мм)
Перегородки повнотіла червона цегла М100
Фасад термодерево (новозеландська сосна), декоративна штукатурка "короїд"
Утеплення фасаду мінеральна вата (100 мм, щільність 135 г/м²)
Оздоблення колон та цоколя гнучка кераміка
Вікна Salamer BlueEvolution 82 (6 камер, 3 контури ущільнення)
Склопакети енергозберігаючі, двокамерні (50 мм, аргон)
Мультифункціональне скло 6 мм
Монтаж вікон згідно ДСТУ, з використанням гідро-пароізоляційних стрічок та теплого підставочного профілю
Дах та покрівля:
Скатний дах фальцева покрівля (європейська сталь 0, 5 мм)
Утеплення скатної покрівлі мінеральна вата PAROC (250 мм, Фінляндія)
Плоский дах ПВХ-мембрана FATRAFOL (Чехія, 1, 5 мм)
️ утеплення пінопласт (200 мм, щільність 35), бетонна стяжка (200 мм)
Водостічна система металевий водостік (Польща)
A 1 7 0 3 2
- Особливості планування: ділянка
- Характеристика будівлі: стан будинку: без оздоблювальних робіт • перекриття: змішане • дах: металочерепиця
- Характеристика приміщення: висота стелі, м: 3 • утеплення: зовнішнє
- Оздоблення стелі: без обробки • штукатурка
- Підлога (покриття): без обробки • стяжка
- Вода: свердловина
- Опалення: двоконтурний котел
- Підігрів води: комбінований
- Приміщення: кількість спалень: 4 • гараж: немає • гардероб • кабінет • вітальня • 2 санвузла
- Коли немає світла: є мобільний зв'язок
- На території є: паркан
- Меблі: немає
- Внутрішнє оздоблення: чорнова штукатурка • декоративна штукатурка
- Особливості планування: панорамні / вітринні вікна • тераса
- Обладнання • меблі • зручності: електрика
- Унікальні переваги: свердловина
- Оголошення створене 1 жов. ·
- ID 33569711 ·
- Переглядів 0
- · Збережень в обране 0