Може вас зацікавити














фото · 1 із 14

Дивитися всі фото
Продаж 1 поверхового будинку з ділянкою на 3.7 сотки, 90 кв. м, 2 кімнати, на вул. Балудянського • ID 32265572
100 000 $ за об'єкт · 4 225 000 грн · 1 111 $
за м²
Без перевірки
Опис від продавця
Продавець не підтвердив інформацію про цей об'єкт (не замовляв перевірку з представником DIM.RIA, не надсилав відео або документи)
- 2 кімнати · 1 поверх
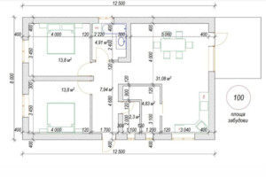
- Загальна площа 90 м² · житлова 27.6 м² · кухня 31.08 м²
- Ділянка 3.7 сотки
- Стіни з цегли
- Пропозиція від посередника
- Комісія за послуги 2 %
- Новобудова
- Біля лісу
- Престижний район
- Гарний краєвид
- Продаж одноповерхового будинку з готовим фасадом у затишному р-ні Підлипники поруч з лісом та каналом. Звідси до центру міста усього 6 хв. на авто.
Загальна площа будинку: 90 м².
Планування: кухня-вітальня, 2 спальні, суміжний санвузол, комора, гардеробна, тераса.
Ділянка: 3.7 сотки.
Будинок збудований із цегли. Утеплений пінопластом 10 см. Дах утеплений мінватою 15 см.
Усюди розведена тепла підлога.
Чорновий стан ремонту: чистова стяжка, чорнова штукатурка. Плитка на терасі.
15 кВт світла, свердловина на 16 метрів, каналізація септик.
Електрика та вода розведена.
Металопластикові енергоефективні вікна, міцні вхідні двері.
Двір викладений бруківкою.
Облаштована огорожа.
Розвинений приватний сектор, гарна природа, свіже повітря, асфальтована дорога. Неподалік є ліс та протікає канал чудові місця для прогулянок та відпочинку.
Продається від агенції з комісією.
- Характеристика будівлі: стан будинку: відмінний
- Характеристика приміщення: висота стелі, м: 2.85 • утеплення: зовнішнє
- Оздоблення стелі: без обробки • штукатурка
- Підлога (покриття): стяжка
- Комунікації: каналізація: септик
- Вода: свердловина
- Опалення: електричне
- Підігрів води: централізований
- Приміщення: кількість спалень: 2 • гараж: немає • гардероб • вітальня • суміжний санвузол
- Обладнання • меблі • зручності: вивіз відходів • каналізація септик
- На території є: паркан
- Меблі: немає
- Внутрішнє оздоблення: чорнова штукатурка
- Особливості планування: підігрів підлоги • панорамні / вітринні вікна • тераса
- Унікальні переваги: Індивідуальне опалення
- Оголошення створене 18 вер. ·
- ID 32265572 ·
- Переглядів 0