




фото · 1 із 5

Дивитися всі фото
Дивитися на мапі
Продаж 1 поверхового будинку з ділянкою на 11.5 сотки, 120 кв. м, 3 кімнати, на Миронюка • ID 33236420
115 000 $ за об'єкт · 4 899 000 грн · 958 $
за м²
Інформація неточна?
Продавець не підтвердив дані про цю нерухомість. Розкажіть, що не так, і ми перевіримо
Без перевірки
Опис від продавця
Продавець не підтвердив інформацію про цей об'єкт (не замовляв перевірку з представником DIM.RIA, не надсилав відео або документи)
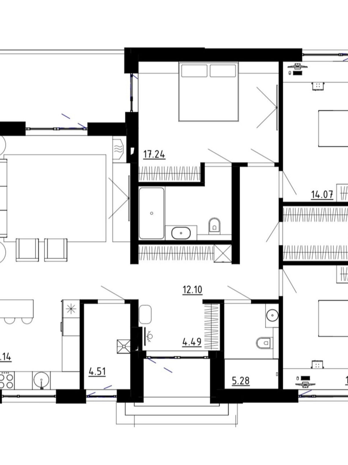
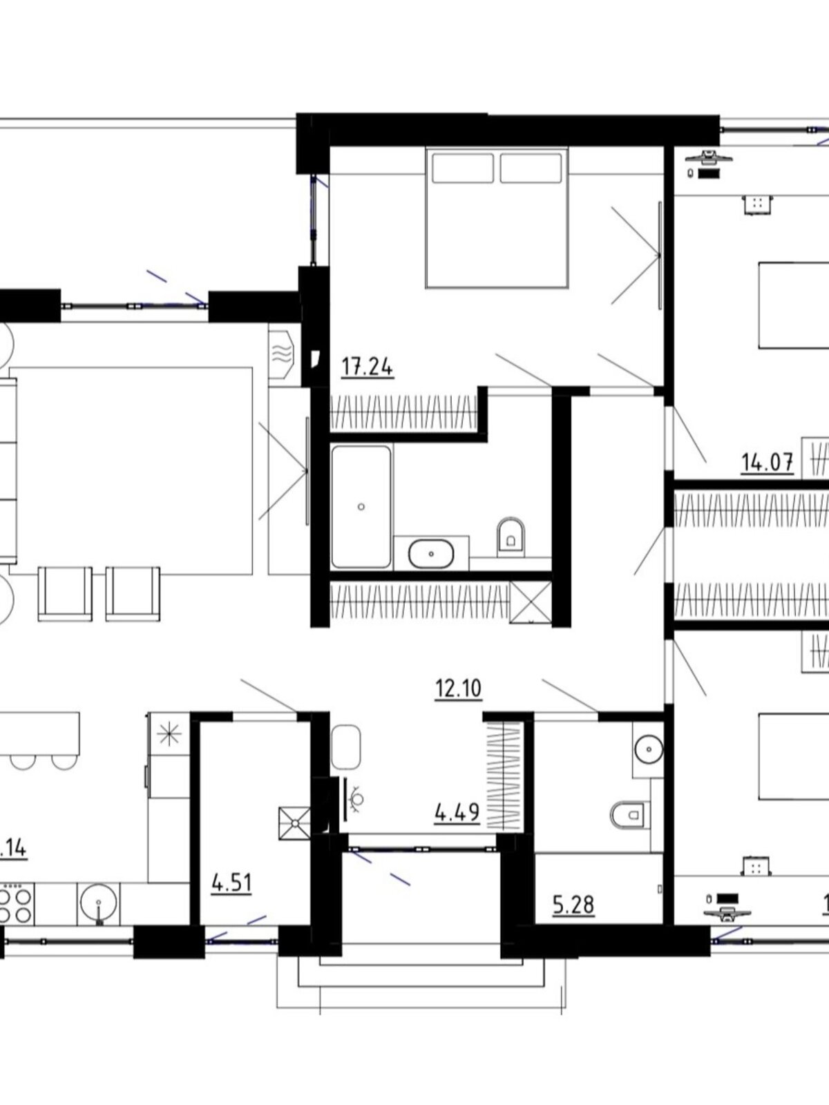
- 3 кімнати · 1 поверх
- Загальна площа 120 м² · житлова 44 м² · кухня 10.15 м²
- Ділянка 11.5 сотки
- Стіни з цегли
- Здача в 2026
- Пропозиція від посередника
- Вторинна нерухомість
- Оперативний показ
- Вигідна ціна
- Продаж житлового будинку площею 120м2 ( Американка)
- 3 кімнати ( 17.24м2, 14.07м2, 12.45м2)
- кухня - студія
- 2 санвузли
- земельна ділянка 11.5 соток
- фундамент: з/бетон
- Стіни : цегла керамічна
- Шатровий дах
- Металопластикові вікна
- Вхідні двері
- Розведена електрика по будинку
- Розведена сантехника по будинку
- Монтаж теплої підлоги
- Цементно піщана штукатурка
- Стяжка
- Фасад : пінопласт 150мм, декоративна штукатурка "бараник"
- Центрвльна каналізація
Код - # 2 4 8 0 5 5 2 3
- Характеристика будівлі: стан будинку: без оздоблювальних робіт • перекриття: невідомо
- Характеристика приміщення: утеплення: без утеплення
- Оздоблення стелі: без обробки • штукатурка
- Підлога (покриття): без обробки • стяжка
- Внутрішнє оздоблення: декоративна штукатурка
- Вода: центральний водопровід
- Опалення: електричне
- Двері та вікна: тип вікон: металопластикові
- Коли немає світла: є мобільний зв'язок
- Меблі: немає
- Унікальні переваги: Індивідуальне опалення
- Обладнання • меблі • зручності: електрика • центральна каналізація
- Оголошення створене 23 гру. 2025 ·
- ID 33236420 ·
- Переглядів 0
- · Збережень в обране 0